Spatii de birouri in Rosetti Tower - de la 50 mp

2.100 € / lună
15 € / mp / lună

Central, Bucureşti

Suprafață utilă totală:
140 mp
An construcție:
2008

Descriere spațiu comercial

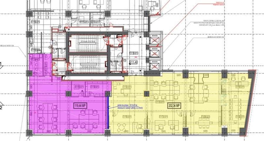
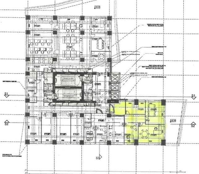
Va propunem spre inchiriere spatii de birouri premium in Maria Rosetti Tower, o cladire de clasa A cu un design modern si fatada integral vitrata, ce ofera o vizibilitate exceptionala si o imagine corporate de prestigiu. Situata intre Universitate si Piata Romana, cladirea asigura un acces facil catre toate zonele de interes major ale Bucurestiului. Conditii Comerciale: Pret inchiriere: 15 EUR mp + TVA. Service charge: 4.5 EUR mp + TVA. Parcare: Locuri disponibile in parcare sistematizata la pretul de 100 EUR loc + TVA. Disponibilitate: Imediata. Suprafete Disponibile: Etaj 5 (Integral): 784 mp – suprafata utila totala pe nivel. Etaj 3 si 5 (Divizat): Doua unitati de cate 392 mp fiecare sau mai mici in functie de nevoie incepand cu 50 mp. Etaj 7: 140 mp – spatiu compartimentat, ideal pentru echipe de dimensiuni medii. Specificatii Tehnice si Detalii Cladire: Eficienta Spatiului: Cladirea, inaugurata in 2008, dispune de o suprafata totala de 6.586 mp, fiind structurata pentru a oferi eficienta maxima pe fiecare nivel (aprox. 784 mp per etaj). Control Climatizare: Sistem de tip 4-pipe fan coil, care permite controlul individual al temperaturii in diferite zone ale biroului. Finisaje Premium: Podea flotanta (permite cablarea facila pe sub pardoseala), mocheta de trafic intens, tavan casetat si inaltime libera de 2.7 m. Lumina Naturala: Fatada de sticla asigura un aport de lumina naturala pe toata suprafata etajului, reducand consumul de energie si imbunatatind confortul angajatilor. Siguranta & Backup: Generator de urgenta pentru sistemele vitale, senzori de fum si sistem de hidranti. Servicii Disponibile: Receptie & Protocol: Lobby modern cu personal dedicat pentru intampinarea vizitatorilor. Securitate: Paza 24 7, monitorizare video (CCTV) si acces controlat prin carduri magnetice. Management: Servicii de Facility Management profesioniste care asigura mentenanta rapida si operarea continua a cladirii. Locatie si Avantaje: Amplasarea in zona C.A. Rosetti ofera o conexiune imbatabila intre Piata Universitatii si Piata Romana. Pozitia strategica asigura accesul rapid la cele mai importante artere comerciale si administrative. In plus, zona este bogata in facilitati: restaurante gourmet, cafenele de specialitate, banci si puncte de interes cultural (TNB, Ateneul Roman). ID oferta: 24R0045
Citește mai mult Citește mai puțin

Detalii spațiu comercial

ID anunț: 980989 Actualizat în: 17 Martie 2026
Suprafață utilă: 140 mp
Suprafață utilă totală: 140 mp
An construcție: 2008

Istoric preț

Facilități

Utilități
Apă Curent Gaze Canalizare

Puncte de interes

Mijloace transport
transport
Statia Batistei; Linia: 5, 16
Mijloace transport aprox. 82 m
transport
Batistei
Mijloace transport aprox. 91 m
transport
Statia Batistei; Linia:N123
Mijloace transport aprox. 143 m
transport
Batistei
Mijloace transport aprox. 154 m
Școală
education
GRADINITA DE COPII NR. 8 "LICURICI"
Învățământ aprox. 142 m
education
Grup Şcolar "Dragomir Hurmuzescu"
Învățământ aprox. 156 m
education
Scoala Ajutatoare nr. 1
Învățământ aprox. 163 m
education
SNSPA - Cladirea CIC
Învățământ aprox. 167 m
Recreere
restaurants
Piadinerie (en)
Restaurante aprox. 22 m
parks
Parc
Recreere aprox. 150 m
shopping
OK Non-stop Supermarket (en)
Supermarket/Mall aprox. 358 m
shopping
OK Non-Stop
Supermarket/Mall aprox. 358 m

Proprietăți similare

Birou, de 197 mp, în Central
2.167 € / lună
București, Central
197 mp utili
2000
Birou, de 75 mp, în Central
2.002 € / lună
București, Central
75 mp utili
8E
Birou, de 4,000 mp, în Central
1.977 € / lună
București, Central
4.000 mp utili
3E
1982
Birou, de 150 mp, în Central
2.250 € / lună
București, Central
150 mp utili
Birou, de 190 mp, în P-ța Victoriei
2.280 € / lună
București, P-ța Victoriei
190 mp utili
2003
Birou, de 205 mp, în Batistei
2.001 € / lună
București, Batistei
205 mp utili
1996
Birou, de 19,000 mp, în P-ța Victoriei
2.057 € / lună
București, P-ța Victoriei
19.000 mp utili
12E
1990
Birou, de 200 mp, în Universitate
2.200 € / lună
București, Universitate
200 mp utili
7E
2004
Birou, de 200 mp, în Universitate
2.000 € / lună
București, Universitate
200 mp utili
14E
1995

Abonează-te la newsletter să fii primul care primește cele mai noi recomandări de proprietăți și sfaturi de la experți.