Spațiu De Birouri 430 Mp De Inchiriat In Tg Mures, Centra

3.440 € / lună
8 € / mp / lună

Ultracentral, Târgu Mureş

Suprafață utilă totală:
430 mp
An construcție:
2012

Descriere spațiu comercial

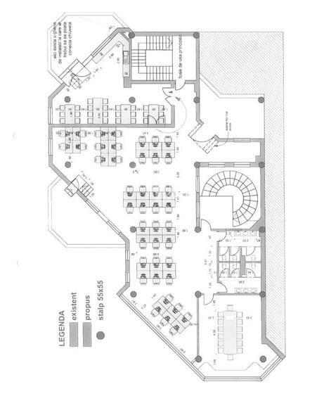
Vă oferim spre închiriere un Spațiu de Birouri situat într-o clădire modernă de birouri în Tg Mureș, în centrul orașului, la 2 minute de Piața Trandafirilor. Acesta are o suprafață utilă de 430 Mp și este situat la etajul 3 unei clădiri de trei etaje. Spațiul este parțial compartimentat. Contorizarea utilităților se face separat pentru spațiile închiriate. Spațiile se predau la stadiul actual pentru acest preț, se poate discuta separat amenajarea spațiului. Cei interesați pot închiria Spațiul de Birouri la 8 Euro/Mp+TVA. Dându-ne tot interesul în a fi de ajutor maxim clienților noștri... ne ajută să obținem rezultate mai bune și, ulterior, să ne bucurăm de recomandările clienților. Doar la Private Imobiliare proprietarii se bucură de o garanție de 6 luni la închiriere. Cel mai frumos compliment pentru noi este recomandarea ta! Crezi că această proprietate nu corespunde în totalitate nevoilor tale? Dacă dorești să găsești PROPRIETATEA PERFECTĂ pentru tine și nu ai prea mult timp la dispoziție, CERE AJUTORUL AGENTULUI. Acesta iți va oferi alte SOLUȚII AVANTAJOASE. CONTACTEAZĂ-NE ACUM, nu am dat greș cu nici un client!
Citește mai mult Citește mai puțin

Detalii spațiu comercial

ID anunț: 57742 Actualizat în: 13 Ianuarie 2026
Suprafață utilă: 430 mp
Suprafață utilă totală: 430 mp
An construcție: 2012

Istoric preț

Facilități

Utilități
Apă Canalizare

Puncte de interes

Mijloace transport
transport
Cardinal Iuliu Hossu
Mijloace transport aprox. 231 m
transport
Iuliu Maniu
Mijloace transport aprox. 242 m
transport
Savinesti
Mijloace transport aprox. 300 m
transport
Campului
Mijloace transport aprox. 376 m
Școală
education
Gimnaziul Nicolae Balcescu
Învățământ aprox. 293 m
education
Gimnaziul Europa
Învățământ aprox. 345 m
education
Universitatea de Arte
Învățământ aprox. 629 m
education
Scoala Generala nr. 2
Învățământ aprox. 663 m
Recreere
restaurants
GCafe
Restaurante aprox. 148 m
parks
Parc
Recreere aprox. 219 m
shopping
Romarta One Mall
Supermarket/Mall aprox. 386 m
shopping
Mures Mall
Supermarket/Mall aprox. 447 m

Proprietăți similare

Birou, de 180 mp, în Gheorghe Doja
3.250 € / lună
Târgu Mureș, Gheorghe Doja
180 mp utili
2E
2024

Abonează-te la newsletter să fii primul care primește cele mai noi recomandări de proprietăți și sfaturi de la experți.