Cladire multifuntionala si terasa pentru evenimente corporate in Sibiu

5.800 € / lună
9.28 € / mp / lună

Calea Poplăcii, Sibiu

Suprafață utilă totală:
625 mp
An construcție:
2022

Descriere spațiu comercial

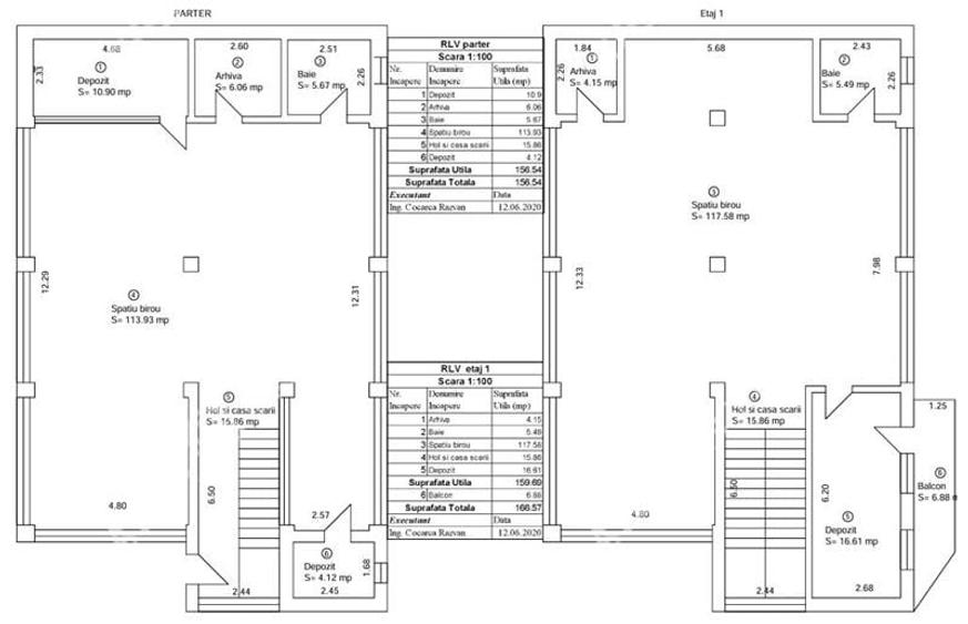
Se inchiriaza cladire multifunctionala moderna, cu o suprafata utila de 625 m², distribuita pe 4 niveluri conectate printr-o casa a scarii comuna, potrivita pentru business-uri diverse precum birouri IT, centre educationale sau servicii comerciale. Compartimentare detaliata: Cladirea este structurata pe 4 niveluri accesibile printr-o casa a scarii comuna, cu spatii flexibile ce pot fi adaptate pentru birouri open-space, sali de clasa, zone de receptie sau depozitare – fiecare etaj putand functiona independent. Include holuri spatioase, etaje bine iluminate si facilitati moderne, cu finisaje practice: ferestre termopan pentru izolare termica si fonica, usi securizate si podele rezistente la trafic intens. Orientarea sudica asigura lumina naturala abundenta, iar cladirea are echipare cu sisteme fotovoltaice, aliniindu-se trendurilor ecologice din Sibiu. Toate utilitatile sunt conectate: apa, canalizare, curent trifazic, gaz metan, internet fibra optica si cablu TV, cu contorizare individuala per etaj pentru eficienta. Proprietatea se remarca prin parcare generoasa: minim 20 de locuri interioare securizate, plus 5-8 locuri la strada, facilitand accesul pentru echipe mari sau evenimente. Terasa mare exterioara este ideala pentru pauze sau intalniri, iar zona separata inchisa, amenajata cu gratar si spatii pentru relaxare, este perfecta pentru team building, evenimente corporate sau petreceri de firma – un atu rar pentru spatii business in Sibiu. Aceasta cladire ofera un randament excelent pentru chiriasi, combinand locatia strategica cu facilitati premium, atragand clienti din IT, educatie sau servicii prin costuri operationale reduse si potential de crestere. Facilitati si extra Interior: 4 niveluri cu casa a scarii comuna; spatii flexibile pentru birouri IT educatie; finisaje moderne (termopan, izolatie); utilitati complete (gaz, fibra optica); fotovoltaice pentru energie verde (Prosumator - Consumul de curent fiind 0 in anumite cazuri); stare excelenta, adaptabila. Exterior: Parcare 20+ locuri interioare + 5-8 strada; terasa spatioasa; zona inchisa cu gratar pentru team building evenimente; acces vad comercial. Utilitati si securitate: Curent trifazic, gaz, apa; contorizare individuala; supraveghere posibila; acces transport public excelent. Alte avantaje: Flexibilitate inchiriere per etaj sau integral; ideal pentru business sustenabil; cerere mare in zona; proximitate servicii (magazine, scoli, stadion); costuri reduse prin eficienta energetica; oportunitati de extindere. Cladirea este disponibila imediat pentru inchiriere integrala la 5.800 € luna sau per etaj separat la 1.500 € luna fiecare, oferind flexibilitate maxima pentru chiriasi mici sau mari, cu potential ridicat pentru reconversie si beneficii de scalabilitate. ID intern: 3025
Citește mai mult Citește mai puțin

Detalii spațiu comercial

ID anunț: 2448302 Actualizat în: 13 Februarie 2026
Suprafață utilă: 625 mp
Suprafață utilă totală: 625 mp
An construcție: 2022

Istoric preț

Facilități

Utilități
Apă Curent Gaze Canalizare

Puncte de interes

Mijloace transport
transport
Piata Sadu 1
Mijloace transport aprox. 393 m
transport
Piata Sadu 2
Mijloace transport aprox. 406 m
transport
Th. Mihaly 1
Mijloace transport aprox. 448 m
transport
Cimitirul Eroilor 2
Mijloace transport aprox. 465 m
Școală
education
Scoala Genenerala Nr. 25
Învățământ aprox. 307 m
education
FasTracKids
Învățământ aprox. 560 m
education
Gradinita Nr. 5
Învățământ aprox. 832 m
education
Scoala Gimnaziala nr. 16
Învățământ aprox. 1085 m
Recreere
parks
Parc
Recreere aprox. 266 m
shopping
Magazin cu produse nemtesti
Supermarket/Mall aprox. 450 m
shopping
Transagape
Supermarket/Mall aprox. 461 m
restaurants
Restaurant Cesar
Restaurante aprox. 481 m

Proprietăți similare

Birou, de 600 mp, în Calea Poplăcii
5.800 € / lună
Sibiu, Calea Poplăcii
600 mp utili
2E
2010
Birou, de 477 mp, în Central
5.247 € / lună
Sibiu, Central
477 mp utili
Birou, de 380 mp, în Hipodrom 2
5.700 € / lună
Sibiu, Hipodrom 2
380 mp utili
2024
Birou, de 500 mp, în Industrial Est
6.000 € / lună
Sibiu, Industrial Est
500 mp utili
1980
Birou, de 795 mp, în Cisnădie
5.565 € / lună
Județul Sibiu, Cisnădie
795 mp utili
1E

Abonează-te la newsletter să fii primul care primește cele mai noi recomandări de proprietăți și sfaturi de la experți.