150 mp birouri de închiriat – 4 camere, Calea Dumbravii, 12 €/mp ALL INCLUSIVE

1.800 € / lună
12 € / mp / lună

Calea Dumbrăvii, Sibiu

Suprafață utilă totală:
150 mp
Nr. niveluri:
3

Descriere spațiu comercial

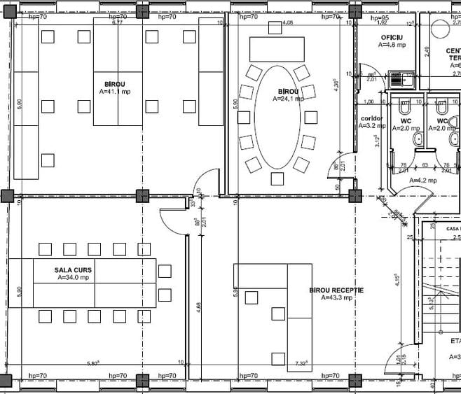
Închiriem spatiu de birouri cu o suprafață utilă de aproximativ 150 mp, situată pe Calea Dumbravii – zonă ultracentrală Sibiu. - Preț chirie: 12 € / mp / lună (include chiria + service charge + cafea gratuită) Compartimentare: - 4 birouri confortabile și luminoase (diferite suprafețe) - Hol de acces și spații de circulație - Acces la grupurile sanitare centrale (jumătate din băi) - Oficiu / bucătărie (jumătate inclusă) Ideal pentru companii mici, birouri administrative, consultanță, educație, agenții sau cabinete profesionale care doresc un spațiu separat și liniștit la etajul superior.Avantaje: - Poziționare excelentă în clădire - Locație ultracentrală pe Calea Dumbravii - Cafea gratuită inclusă în preț - Toate costurile de întreținere incluse - Mediu profesional și calm Disponibil: incepand cu 15 mai Pentru vizionare sau informații suplimentare, contactați agenția noastră.
Citește mai mult Citește mai puțin

Detalii spațiu comercial

ID anunț: 4031959 Actualizat în: 02 Aprilie 2026
Suprafață utilă: 150 mp
Suprafață utilă totală: 150 mp
Etaj: Etaj 3 / 3
Regim înălțime: P+3E

Istoric preț

Facilități

Utilități
Curent Apă Canalizare

Puncte de interes

Mijloace transport
transport
Autogara AMAD TOUR
Mijloace transport aprox. 318 m
transport
Piata Talmaciu 1
Mijloace transport aprox. 359 m
transport
Piata Talmaciu 2
Mijloace transport aprox. 362 m
transport
Piata Sadu 1
Mijloace transport aprox. 384 m
Școală
education
FasTracKids
Învățământ aprox. 263 m
education
Scoala Genenerala Nr. 25
Învățământ aprox. 555 m
education
Gradinita Nr. 5
Învățământ aprox. 679 m
education
Scoala Gimnaziala nr. 16
Învățământ aprox. 822 m
Recreere
parks
Parc
Recreere aprox. 352 m
shopping
Transagape
Supermarket/Mall aprox. 353 m
restaurants
Restaurant Cesar
Restaurante aprox. 417 m
shopping
Magazin cu produse nemtesti
Supermarket/Mall aprox. 587 m

Proprietăți similare

Birou, de 196 mp, în Calea Dumbrăvii
1.960 € / lună
Sibiu, Calea Dumbrăvii
196 mp utili
2011
Birou, de 186 mp, în Central
1.800 € / lună
Sibiu, Central
186 mp utili
1E
Birou, de 220 mp, în Terezian
1.760 € / lună
Sibiu, Terezian
220 mp utili
4E
1970
Birou, de 126 mp, în Hipodrom 2
1.703 € / lună
Sibiu, Hipodrom 2
126 mp utili
3E
Birou, de 126 mp, în Hipodrom 3
1.801 € / lună
Sibiu, Hipodrom 3
126 mp utili
Birou, de 151 mp, în Hipodrom 2
1.796 € / lună
Sibiu, Hipodrom 2
151 mp utili
2010

Abonează-te la newsletter să fii primul care primește cele mai noi recomandări de proprietăți și sfaturi de la experți.