Etaj 2 integral birouri – 293,5 mp, Calea Dumbravii Sibiu, 12 €/mp ALL INCLUSIVE

3.396 € / lună
12 € / mp / lună

Calea Dumbrăvii, Sibiu

Suprafață utilă totală:
283 mp
Nr. niveluri:
3

Descriere spațiu comercial

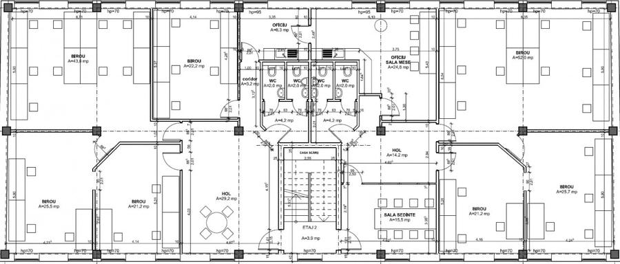
Se inchiriaza întregul etaj dintr-o clădire de birouri situată pe Calea Dumbravii, una dintre cele mai căutate și ultracentrale zone din Sibiu. Suprafață utilă totală: 293,5 mp Preț chirie: 12 € / mp / lună (chiria + service charge + cafea asigurată gratuit pentru chiriași) Compartimentare și facilități: - 7 birouri spațioase cu suprafețe cuprinse între 21 mp și 52 mp - 2 săli de ședințe / meeting (una de 15,5 mp și una de 24,8 mp) - Holuri generoase - Grupuri sanitare moderne (4 WC-uri) - Oficiu / bucătărie complet utilat - Spații de depozitare și coridoare de acces - Lumină naturală excelentă în majoritatea încăperilor - Acces facil prin casa scării centrală Spațiul este ideal pentru companii medii sau mari, sediu de firmă, birouri administrative, IT, servicii profesionale, agenții sau centre de training. Poate fi folosit atât compartimentat, cât și în regim open-space parțial. Avantaje principale: Locație ultracentrală pe Calea Dumbravii – acces excelent cu mașina și transportul public Cafea gratuită inclusă în chirie (un beneficiu rar și foarte apreciat de angajați) Toate service charge-urile (întreținere, curățenie comună etc.) incluse în prețul de 12 €/mp Flexibilitate la amenajare Mediu profesional și liniștit Disponibil: incepand cu data de 15 mai Contract pe teremn lung Pentru vizionare, detalii suplimentare sau negociere, contactați-ne.
Citește mai mult Citește mai puțin

Detalii spațiu comercial

ID anunț: 4031960 Actualizat în: 08 Aprilie 2026
Suprafață utilă: 283 mp
Suprafață utilă totală: 283 mp
Etaj: Etaj 2 / 3
Regim înălțime: P+3E

Istoric preț

Facilități

Utilități
Curent Apă Canalizare

Puncte de interes

Mijloace transport
transport
Cimitirul Eroilor 2
Mijloace transport aprox. 260 m
transport
Cimitirul Eroilor 1
Mijloace transport aprox. 286 m
transport
Cimitir 1
Mijloace transport aprox. 408 m
transport
Cimitir 2
Mijloace transport aprox. 446 m
Școală
education
Scoala Genenerala Nr. 25
Învățământ aprox. 531 m
education
Gradinita Nr. 5
Învățământ aprox. 743 m
education
FasTracKids
Învățământ aprox. 778 m
education
Scoala Gimnaziala nr. 16
Învățământ aprox. 1111 m
Recreere
parks
Teren sportiv
Recreere aprox. 356 m
restaurants
Restaurant Cesar
Restaurante aprox. 392 m
shopping
Alcomsib
Supermarket/Mall aprox. 662 m
shopping
Magazin cu produse nemtesti
Supermarket/Mall aprox. 733 m

Proprietăți similare

Birou, de 310 mp, în Calea Dumbrăvii
3.499 € / lună
Sibiu, Calea Dumbrăvii
310 mp utili
1E
2000
Birou, de 310 mp, în Calea Dumbrăvii
3.500 € / lună
Sibiu, Calea Dumbrăvii
310 mp utili
1E
1996
Birou, de 320 mp, în Calea Dumbrăvii
3.500 € / lună
Sibiu, Calea Dumbrăvii
320 mp utili
1E
2000
Birou, de 310 mp, în Calea Dumbrăvii
3.499 € / lună
Sibiu, Calea Dumbrăvii
310 mp utili
2015
Birou, de 580 mp, în Central
3.301 € / lună
Sibiu, Central
580 mp utili
5E
2010
Birou, de 320 mp, în Sub Arini
3.200 € / lună
Sibiu, Sub Arini
320 mp utili
2009
Birou, de 190 mp, în Aeroport
3.301 € / lună
Sibiu, Aeroport
190 mp utili
2024
Birou, de 320 mp, în Central
3.200 € / lună
Sibiu, Central
320 mp utili
1980
Birou, de 320 mp, în Central
3.520 € / lună
Sibiu, Central
320 mp utili
4E
2023

Abonează-te la newsletter să fii primul care primește cele mai noi recomandări de proprietăți și sfaturi de la experți.