Spatiu Comercial Birou | Unirii | Ultracentral | Cladire moderna

1.550 € / lună
11.92 € / mp / lună

Unirii, Bucureşti

Suprafață utilă totală:
130 mp
Nr. niveluri:
7

Descriere spațiu comercial

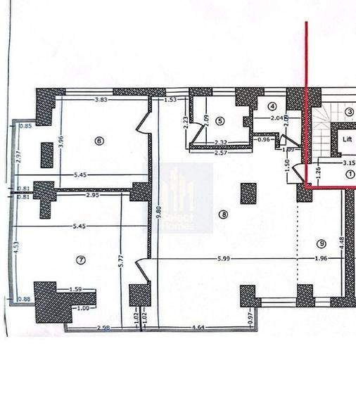
ID Proprietate: P13692 Spatiu de birouri premium de 130 mp - acces excelent, locatie centrala Detalii esentiale: - Suprafata utila: 130 mp - Compartimentare: flexibila, adaptabila nevoilor echipei - Acces 24/7 in cladire - Posibilitate de parcare - Etaj: 7 - cu lift Puncte forte: - Locatie ultracentrala, zona de business recunoscuta - Cladire moderna cu receptie si paza permanenta - Spatiu luminos si eficienta energetica - Acces facil la autobuze STB: 104, 116, 117, 123, 640, 73 , 385 , 97; Tramvai: 23; Metrou: Piata Unirii - Perfect pentru: firma IT, agentie de publicitate, firma de consultanta, call-center, clinica medicala sau sediu corporate reprezentativ Pret si conditii: - Chirie: €1.300 / luna - Avans: 1 luna - Garantie: 2 luni - Contract minim: 12 luni OFERTĂ DEDICATĂ CHIRIAȘILOR, beneficiezi de: - Consultanta dedicata din partea agentiei CLC - Asistenta completa in intocmirea contractului si inregistrarea ANAF - Posibilitate de vizionare rapida si flexibila Pentru aceasta proprietate se percepe comision. Contacteaza-ma pentru o vizionare Hai sa il vezi! Spatiile de birouri cu acest vibe dispar rapid din piata. – „Cine cauta, gaseste.” Nr incaperi: 3 Utilitati - Climatizare (Aer conditionat); Utilitati generale (Curent,Apa,Canalizare) pret inchiriere: 1550 moneda inchiriere: EUR Disponibilitate proprietate: imediat
Citește mai mult Citește mai puțin
Aer condiționat

Detalii spațiu comercial

ID anunț: 163143 Actualizat în: 17 Februarie 2026
Suprafață utilă: 130 mp
Suprafață utilă totală: 130 mp
Etaj: Etaj 7 / 7
Regim înălțime: P+7E

Istoric preț

Facilități

Utilități
Curent Apă Canalizare
Climatizare
Aer condiționat

Puncte de interes

Mijloace transport
transport
Bd. Dimitrie Cantemir / Bd. Marasesti, Liniile 312, 313, 381, N105, N106, N112, 116, 23, 27
Mijloace transport aprox. 308 m
transport
Bd. Dimitrie Cantemir
Mijloace transport aprox. 312 m
transport
Bd. Dimitrie Cantemir
Mijloace transport aprox. 344 m
transport
Capat Piata Unirii 2 linii : 783 (express).
Mijloace transport aprox. 346 m
Școală
education
Elohim Academi
Învățământ aprox. 153 m
education
Scoala nr.74, "Enachita Vacarescu"
Învățământ aprox. 190 m
education
Scoala nr 94
Învățământ aprox. 190 m
education
Cresa Micii Poznasi
Învățământ aprox. 198 m
Recreere
restaurants
Il Giardino Segreto
Restaurante aprox. 165 m
parks
Parc
Recreere aprox. 216 m
shopping
Mega Image (en)
Supermarket/Mall aprox. 345 m
shopping
Mega Image
Supermarket/Mall aprox. 380 m

Proprietăți similare

Birou, de 120 mp, în Unirii
1.551 € / lună
București, Unirii
120 mp utili
2009
Birou, de 130 mp, în Unirii
1.550 € / lună
București, Unirii
130 mp utili
7E
2003
Birou, de 130 mp, în Unirii
1.550 € / lună
București, Unirii
130 mp utili
7E
2003
Birou, de 125 mp, în Unirii
1.496 € / lună
București, Unirii
125 mp utili
2E
Birou, de 130 mp, în Unirii
1.550 € / lună
București, Unirii
130 mp utili
7E
2003
Birou, de 118 mp, în Unirii
1.500 € / lună
București, Unirii
118 mp utili
7E
1990
Birou, de 120 mp, în Unirii
1.550 € / lună
București, Unirii
120 mp utili
2000
Birou, de 130 mp, în Unirii
1.550 € / lună
București, Unirii
130 mp utili
7E
2003
Birou, de 88 mp, în Decebal
1.401 € / lună
București, Decebal
88 mp utili
5E
2024

Abonează-te la newsletter să fii primul care primește cele mai noi recomandări de proprietăți și sfaturi de la experți.