Spatiu Birouri Exclusivist | Calea Dorobanti | Parter | 2x Parcare subterana |

2.700 € / lună
18 € / mp / lună

Dorobanţi, Bucureşti

Suprafață utilă totală:
150 mp
Nr. niveluri:
5

Descriere

Spatiu Birouri Exclusivist | Calea Dorobanti | Parter | 2x Parcare subterana |

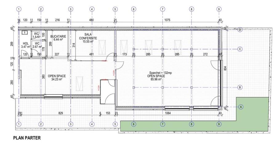
ID oferta : P231297 IProperty Investment va propune spre inchiriere un spatiu de birouri Exclusivist, situat mai exact pe Calea Dorobantilor. Spatiul are o suprafata utila de 150 de metri patrati si se afla la parterul unui imobil cu 5 etaje, nerezidential. Spatiul dispune si de o curte privata care poate fi folosita drept spatiu de relaxare. Incluse in pret vor fi si 2x Parcari subterane. Comision standard. Pentru mai multe detalii sau o eventuala vizionare nu ezitati sa ne contactati. Agent: Radu Nr grupuri sanitare: 2 Suprafata construita: 175 mp Nr incaperi: 4 Utilitati - Sistem incalzire (Centrala proprie); Climatizare (Aer conditionat); Utilitati generale (Curent,Apa,Canalizare,Gaz) Finisaje - Izolatii termice (Exterior); Podele (Gresie,Parchet); Iluminat (Lampi); Ferestre cu geam termopan (PVC) Dotari - Contorizare (Apometre,Contor caldura,Contor gaz); Dotari imobil (Video interfon) pret inchiriere: 2700 moneda inchiriere: EUR Disponibilitate proprietate: imediat
Citește mai mult Citește mai puțin
ID anunț: 3196001 Actualizat în: 29 Ianuarie 2026
Suprafață utilă: 150 mp
Suprafață utilă totală: 150 mp
Etaj: Parter / 5
Regim înălțime: P+5E

Istoric preț

Utilități

Utilități
Curent Apă Canalizare Gaze

Proprietăți similare

Birou, de 156 mp, în Dorobanți
2.650 € / lună
București, Dorobanți
156 mp utili
7E
2008
Birou, de 170 mp, în Dorobanți
2.966 € / lună
București, Dorobanți
170 mp utili
Birou, de 154 mp, în Dorobanți
2.690 € / lună
București, Dorobanți
154 mp utili
1E
2025
Birou, de 160 mp, în Dorobanți
2.784 € / lună
București, Dorobanți
160 mp utili
9E
2025
Birou, de 102 mp, în Dorobanți
2.900 € / lună
București, Dorobanți
102 mp utili
3E
2017
Birou, de 195 mp, în Dorobanți
2.600 € / lună
București, Dorobanți
195 mp utili
5E
2005
Birou, de 135.07000732422 mp, în Aviatorilor
2.850 € / lună
București, Aviatorilor
135,07 mp utili
5E
1997
Birou, de 125 mp, în Floreasca
2.500 € / lună
București, Floreasca
125 mp utili
6E
1980
Birou, de 4,000 mp, în Pipera
2.500 € / lună
București, Pipera
4.000 mp utili
10E

Abonează-te la newsletter să fii primul care primește cele mai noi recomandări de proprietăți și sfaturi de la experți.