Birouri de inchiriat in Trotusului 60, comision 0% Reprezentam Proprietarul

3.300 € / lună
12.69 € / mp / lună

Domenii, Bucureşti

Suprafață utilă totală:
260 mp
Nr. niveluri:
2

Descriere spațiu comercial

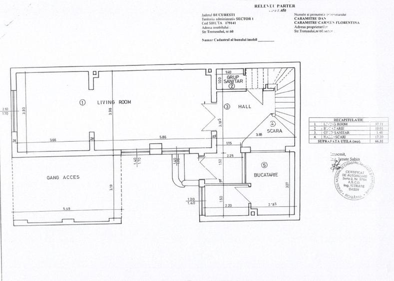
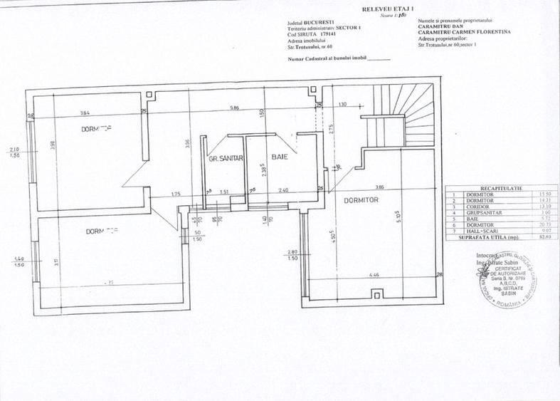
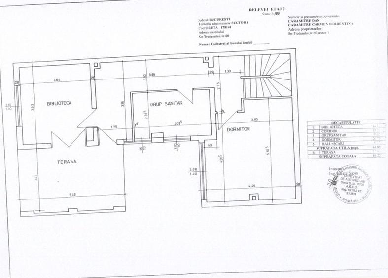
Inchiriere birouri in sector 1, intr-o vila amplasata langa Parcul Copilului (150 metri distanta), intre Bulevardul Ion Mihalache / Piata Domenii (300 metri) si Calea Grivitei (600 metri). Cladirea este situata in cartierul Domenii, o zona linistita cu vile, blocuri de inaltime mica si noul ansamblu rezidential Arcadia, functiuni de birouri si zone verzi / sportive (Parcul Copilului, Baza Sportiva Ciresarii). Accesul cu automobilul se face usor din principalele sosele ale zonei (Ion Mihalache, Calea Grivitei), zona fiind foarte bine conectata de centrul, nordul si vestul capitalei. Transportul public include statia de metrou Grivita la 10 minute de mers, respectiv statii de tramvai, autobuz si troleibuz amplasate la 5-10 minute de cladire. Vila Trotusului 60 a fost finalizata in 1998 si este construita pe un teren de 115 m2. Cladirea are o suprafata utila de 260 m2 (exclusiv mansarda), desfasurata pe mai multe niveluri: - subsol: zona depozitare si zona tehnica - parter: zona deschisa de lucru, bucatarie, grup sanitar - etaj 1: 3 camere, baie - etaj 2: 3 camere, baie - mansarda: potential depozitare Cladirea beneficiaza de incalzire cu 2 centrale amplasate in subsol si racire prin unitati split de aer conditionat, urmand sa intre in luna aprilie intr-un amplu proces de iginizare si imbunatatiri in vederea reinchirierii pentru o destinatie de birouri. Cladirea nu are parcare dedicata, dar strada este amenajata cu locuri de parcare pe ambele laturi, existand o disponibilitate optima de astfel de optiuni.
Citește mai mult Citește mai puțin

Detalii spațiu comercial

ID anunț: 2754989 Actualizat în: 03 Februarie 2026
Suprafață utilă: 260 mp
Suprafață utilă totală: 260 mp
Regim înălțime: P+2E

Istoric preț

Puncte de interes

Mijloace transport
transport
Piata Domenii
Mijloace transport aprox. 330 m
transport
Piata Domenii
Mijloace transport aprox. 347 m
transport
Statia Piata Domenii, linia 205, 300, 282, N118, 20, 24, 42, 45
Mijloace transport aprox. 355 m
transport
Statia Sandu Aldea, linia 300, N118
Mijloace transport aprox. 437 m
Școală
education
Gradinita Casuta Piticilor
Învățământ aprox. 70 m
education
Gradinita de copii nr.222
Învățământ aprox. 328 m
education
Gradinita nr. 222
Învățământ aprox. 335 m
education
Afterschool inGenius
Învățământ aprox. 407 m
Recreere
shopping
Annabella
Supermarket/Mall aprox. 99 m
parks
Teren sportiv
Recreere aprox. 173 m
shopping
Branza Sibiu
Supermarket/Mall aprox. 370 m
restaurants
Terasa TASTE
Restaurante aprox. 439 m

Proprietăți similare

Birou, de 330 mp, în Domenii
3.630 € / lună
București, Domenii
330 mp utili
4E
2010
Birou, de 351 mp, în Domenii
3.510 € / lună
București, Domenii
351 mp utili
4E
2001
Birou, de 160 mp, în Dorobanți
2.999 € / lună
București, Dorobanți
160 mp utili
2005
Birou, de 8,000 mp, în Băneasa
3.600 € / lună
București, Băneasa
8.000 mp utili
5E
2008
Birou, de 195 mp, în Aviatorilor
3.000 € / lună
București, Aviatorilor
195 mp utili
5E
2000
Birou, de 170 mp, în Herăstrău
3.000 € / lună
București, Herăstrău
170 mp utili
4E
Birou, de 250 mp, în Aviației
3.024 € / lună
București, Aviației
250 mp utili
6E
2009
Birou, de 400 mp, în P-ta Presei Libere
3.560 € / lună
București, P-ta Presei Libere
400 mp utili
1E
Birou, de 170 mp, în Beller
3.400 € / lună
București, Beller
170 mp utili
2E
1980

Abonează-te la newsletter să fii primul care primește cele mai noi recomandări de proprietăți și sfaturi de la experți.