Spatiu comercial / 400 mp / parter / elegant / cladire noua

6.560 € / lună
16.40 € / mp / lună

Dămăroaia, Bucureşti

Suprafață utilă totală:
400 mp
Nr. niveluri:
3
An construcție:
2018

Descriere spațiu comercial

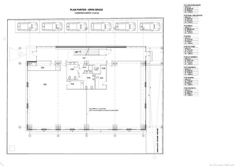
Acest spațiu modern de la parter se evidențiază prin caracteristici și dotări contemporane, concepute pentru a satisface nevoile și standardele actuale. Iată câteva dintre elementele cheie: 1. Spațiul dispune de o înălțime generoasă până la tavan, măsurată la 2.7 metri. Această caracteristică oferă o senzație de spațiu deschis și permite amplasarea confortabilă a mobilierului și a altor elemente; 2. Plafonul este conceput într-un mod modern și elegant, având o structură casetată. Aceasta nu doar adaugă un aspect estetic plăcut, ci permite și integrarea ușoară a sistemelor de iluminat, ventilație și alte echipamente tehnice; 3. Spațiul este dotat cu corpuri de iluminat care sunt încorporate în plafonul fals. Această soluție conferă un aspect curat și uniform, asigurând o iluminare eficientă și plăcută în întregul spațiu; 4. Pardoseala este acoperită cu un material de înaltă calitate, marca Tarkett. Această alegere oferă nu doar un aspect modern și elegant, ci și durabilitate, rezistență la uzură și ușurință în întreținere; 5. Spațiul este prevăzut cu două chicinete, amplasate strategic pe fiecare nivel. Acestea oferă oportunitatea de a pregăti și servi mâncare sau băuturi, asigurând astfel un confort sporit și o eficiență în desfășurarea activităților zilnice; 6. Spațiul dispune de grupuri sanitare atât pentru bărbați, cât și pentru femei, asigurând astfel confortul și igiena necesare. Acestea sunt prevăzute cu finisaje moderne și echipate cu facilități contemporane; 7. Spațiul este dotat cu un lift modern, cu o capacitate generoasă de 8 persoane. Acesta asigură accesibilitatea și mobilitatea convenabilă între diferitele niveluri ale clădirii; 8. Sistemul de ventilație este proiectat pentru a asigura un aport constant de aer proaspăt în spațiu. În plus, ventiloconvectoarele sunt instalate pentru a asigura încălzirea și răcirea eficientă a spațiilor, oferind un confort termic optim; 9. Spațiile comune sunt finisate cu granit, un material elegant și durabil. Aceasta conferă un aspect sofisticat și rafinat. În inima zonei de Nord a capitalei, în apropierea Pieței Presei Libere, se află un colț de liniște încununat de case. Acest loc privilegiat este înconjurat de străzi proaspăt asfaltate, într-o stare excelentă, prevăzute cu marcaje și semafoare. Clădirea este situată la doar 1 km distanță de stația de metrou Jiului, beneficiind astfel de un acces rapid și convenabil la sistemul de transport subteran. Amplasată într-o zonă liniștită, locația oferă totuși conexiuni excelente atât prin mijloacele de transport rutiere, cât și prin transportul în comun. Accesul rutier este ușor și rapid prin intermediul bulevardelor Bucureștii Noi și Poligrafiei, care permit legătura cu celelalte zone ale orașului. Clădirea se află la aproximativ 4 km distanță de centrul orașului, oferind astfel proximitatea necesară și avantajele vieții urbane. Datorită amplasării sale strategice, această locație este la doar 10 km distanță de Aeroportul Băneasa și la 15 km distanță de Aeroportul Otopeni. Acest lucru facilitează călătoriile și conexiunile aeriene, oferind un avantaj suplimentar pentru cei care călătoresc frecvent sau pentru afacerile cu orientare internațională. Indiferent de destinația dvs., această locație centrală și accesibilă vă oferă oportunități convenabile de transport și vă permite să ajungeți rapid și ușor în diverse zone ale Bucureștiului sau în afara orașului. În plus, poziționarea într-o zonă liniștită asigură un mediu plăcut și calm, în timp ce accesibilitatea facilitează conectivitatea și mobilitatea, astfel încât să puteți profita la maximum de avantajele urbane fără a fi afectat de aglomerația și zgomotul specific orașului.
Citește mai mult Citește mai puțin

Detalii spațiu comercial

ID anunț: 1072665 Actualizat în: 04 Septembrie 2025
Suprafață utilă: 400 mp
Suprafață utilă totală: 400 mp
Regim înălțime: P+3E
An construcție: 2018

Istoric preț

Puncte de interes

Mijloace transport
transport
Statie Capat Cartier Damaroaia linii : 331.
Mijloace transport aprox. 139 m
transport
Cartier Damaroaia
Mijloace transport aprox. 163 m
transport
Statie Izbiceni 331, 24
Mijloace transport aprox. 187 m
transport
Statie Cartier Damaroaia Tv24
Mijloace transport aprox. 199 m
Școală
education
Scoala Speciala Nr. 8
Învățământ aprox. 274 m
education
Scoala Nr. 177 Nicolae Grigorescu
Învățământ aprox. 283 m
education
Scoala Speciala Sfantu Gavril Nr. 8
Învățământ aprox. 290 m
education
Scoala Gimnaziala Nicolae Grigorescu Nr. 177
Învățământ aprox. 291 m
Recreere
parks
Parc
Recreere aprox. 218 m
restaurants
Rotiserie
Restaurante aprox. 406 m
shopping
Profi
Supermarket/Mall aprox. 568 m
shopping
Profi
Supermarket/Mall aprox. 640 m

Proprietăți similare

Birou, de 265 mp, în Aviatorilor
6.625 € / lună
București, Aviatorilor
265 mp utili
17E
2006
Birou, de 418.29998779297 mp, în Băneasa
5.923 € / lună
București, Băneasa
418,3 mp utili
5E
2010
Birou, de 75 mp, în Aviației
6.975 € / lună
București, Aviației
75 mp utili
6E
Birou, de 264 mp, în Aviatorilor
6.600 € / lună
București, Aviatorilor
264 mp utili
17E
2006
Birou, de 220 mp, în Kiseleff
6.501 € / lună
București, Kiseleff
220 mp utili
3E
2025
Birou, de 75 mp, în P-ta Presei Libere
6.219 € / lună
București, P-ta Presei Libere
75 mp utili
8E
Birou, de 388 mp, în Floreasca
6.790 € / lună
București, Floreasca
388 mp utili
7E
2014
Birou, de 696 mp, în Pipera
6.264 € / lună
București, Pipera
696 mp utili
2009
Birou, de 19.743000030518 mp, în Pipera
6.264 € / lună
București, Pipera
19,74 mp utili
5E
2005

Abonează-te la newsletter să fii primul care primește cele mai noi recomandări de proprietăți și sfaturi de la experți.