Spatiu birouri Sky Tower | Promenada Mall | 292MP |

5.139 € / lună
17.60 € / mp / lună

Aviaţiei, Bucureşti

Suprafață utilă totală:
292 mp
Nr. niveluri:
37
An construcție:
2012

Descriere spațiu comercial

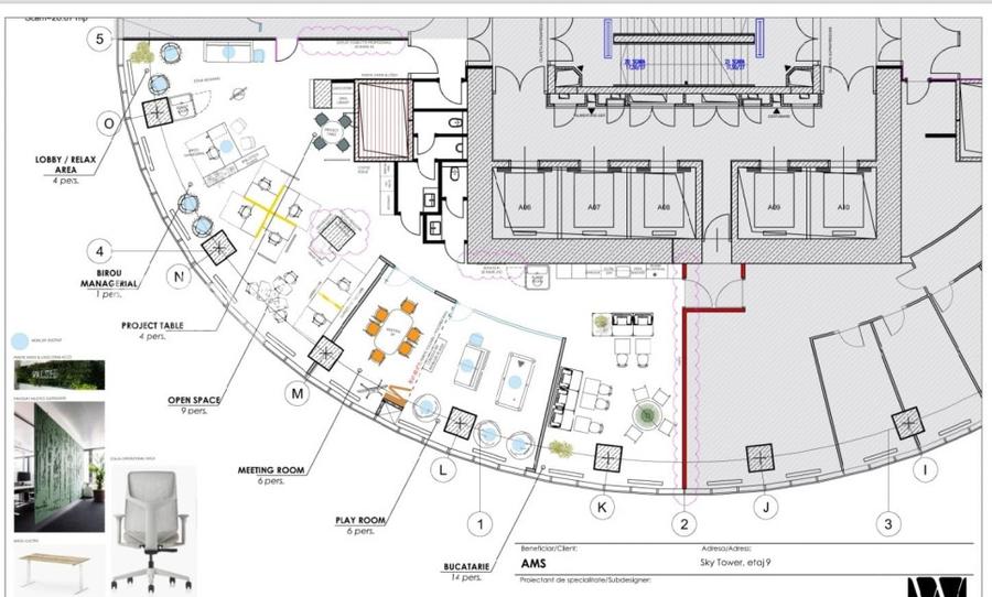
Gabriel Rogoveanu ^ Global Home Romania ^ RealEstate ^ Imobiliare Spatiu de birouri premium disponibil spre inchiriere in SkyTower, una dintre cele mai emblematice cladiri de birouri din Bucuresti, situata in imediata apropiere a Promenada Mall. Proprietatea se afla la etajul 9 si are o suprafata utila de 292 mp. Spatiul beneficiaza de lumina naturala pe tot parcursul zilei, priveliste panoramica si un standard de calitate ridicat, ideal pentru companii care isi doresc un sediu reprezentativ si functional. Spatiul poate fi livrat complet mobilat, la cerere, cu un cost suplimentar cuprins intre 2 si 4 euro/mp, in functie de solicitari. Costurile de mentenanta sunt de 4,9 euro/mp/luna. Pentru detalii suplimentare si programarea unei vizionari: ___ Global Home Romania, este o firma in schimbare de jocuri pe piata imobiliara din Romania ce se afla intr-o expansiune rapida. Modelul personalizat avand la baza tehnologia digitala, inteligenta artificala si interactiune umana alaturi de colaboratorii firmei, inspira constant incredere. Avand o abordare de marketing profesionala si indrazneta a ridicat atentia asupra modului in care oamenii se gandesc la imobiliare in Romania. Global Home Romania, companie imobiliara infiintata in 2020 ce continua sa se dezvolte cu succes in domeniu, reusind sa atraga constant parteneri si colaboratori de incredere. Cu sediul in Bucuresti, Global Home Romania, a aparut ca o firma imobiliara de incredere ce isi propune constant sa livreze servicii de calitate. Misiunea Global Home Romania in piata imobiliara, este aceea de a stabili un raport solid bazat pe incredere si profesionalism intre reprezentantii nostri imobiliari bine informati impreuna cu toti clientii si colaboratorii companiei. Gabriel Rogoveanu ^ Global Home Romania ^ RealEstate ^ Real Estate Premium office space available for rent in SkyTower, one of the most emblematic office buildings in Bucharest, located in close proximity to Promenada Mall. The property is located on the 9th floor and has a usable area of 292 sq m. The space benefits from natural light on all high days, panoramic views and a quality standard, ideal for companies that want a representative and functional headquarters. The space can be delivered fully furnished, upon request, with an additional cost between 2 and 4 euros/sq m, depending on requests. The maintenance costs are 4.9 euros/sq m/month. For further details and to schedule a viewing: Structura rezistenta: beton Nr terase: Nr grupuri sanitare: 2 Suprafata construita: 350.4 mp Nr garaje: 0 Nr incaperi: 1 Utilitati - Climatizare (Aer conditionat,Ventiloconvectoare); Utilitati generale (Curent,Apa,Canalizare,Gaz) Finisaje - Izolatii termice (Exterior,Interior); Podele (Gresie); Iluminat (Lampi,Spoturi,Exterior cladire,Lumina naturala); Ferestre cu geam termopan (Aluminiu) Dotari - Dotari imobil (Interfon) Alte caracteristici - Alte spatii utile (Parcare acoperita) pretinchiriere: 5139 monedainchiriere: EUR Disponibilitate proprietate: imediat
Citește mai mult Citește mai puțin

Detalii spațiu comercial

ID anunț: 10846 Actualizat în: 05 Martie 2026
Suprafață utilă: 292 mp
Suprafață utilă totală: 292 mp
Regim înălțime: P+37E
An construcție: 2012

Istoric preț

Puncte de interes

Mijloace transport
transport
Rt 455 Pipera Tunari Maxi taxi Terminal (en)
Mijloace transport aprox. 71 m
transport
Soseaua Pipera
Mijloace transport aprox. 112 m
transport
Statia Barbu Vacarescu / Soseaua Pipera, linia 5,112
Mijloace transport aprox. 175 m
transport
Soseaua Pipera
Mijloace transport aprox. 207 m
Școală
education
Grupul Scolar Industrial Constantin Brancusi (en)
Învățământ aprox. 244 m
education
Colegiul Tehnic Edmond Nicolau, fostul Electronica
Învățământ aprox. 295 m
education
Scoala Generala Nr. 12
Învățământ aprox. 494 m
education
Scoala cu clasele I-VIII nr.12 "Herastrau"
Învățământ aprox. 504 m
Recreere
shopping
Carrefour Market
Supermarket/Mall aprox. 68 m
restaurants
Cuptorul cu Lemne Promenada
Restaurante aprox. 149 m
shopping
Mega Image Concept Store
Supermarket/Mall aprox. 158 m
parks
Teren sportiv
Recreere aprox. 433 m

Proprietăți similare

Birou, de 36,000 mp, în Aviației
4.896 € / lună
București, Aviației
36.000 mp utili
8E
2009
Birou, de 500 mp, în Aviației
5.500 € / lună
București, Aviației
500 mp utili
5E
2010
Birou, de 2,000 mp, în Aviației
5.040 € / lună
București, Aviației
2.000 mp utili
8E
2009
Birou, de 288 mp, în Aviației
4.896 € / lună
București, Aviației
288 mp utili
2009
Birou, de 489 mp, în Aviației
4.998 € / lună
București, Aviației
489 mp utili
2017
Birou, de 335 mp, în Aviației
4.690 € / lună
București, Aviației
335 mp utili
12E
2009
Birou, de 232.60000610352 mp, în Aviației
5.001 € / lună
București, Aviației
232,6 mp utili
7E
2004
Birou, de 433 mp, în Aviației
4.763 € / lună
București, Aviației
433 mp utili
8E
2008
Birou, de 521 mp, în Aviației
5.210 € / lună
București, Aviației
521 mp utili
6E
2010

Abonează-te la newsletter să fii primul care primește cele mai noi recomandări de proprietăți și sfaturi de la experți.