Spatiu birouri ieftine Iasi, 117mp, zona Metalurgie

1.000 € / lună
8.55 € / mp / lună

Metalurgie, Iaşi

Suprafață utilă totală:
117 mp
Nr. niveluri:
1
An construcție:
1980

Descriere spațiu comercial

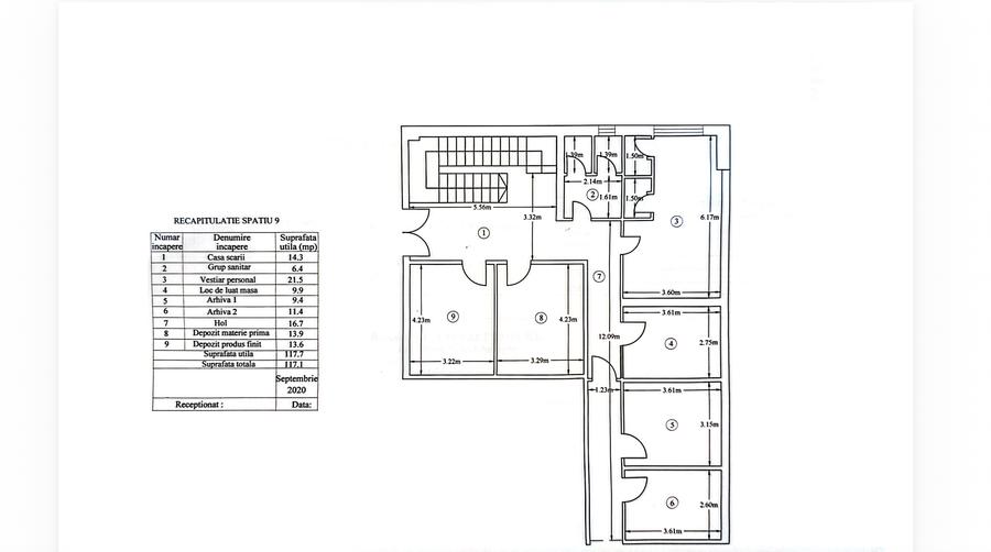
Spatiu birouri ieftine Iasi, 117mp, zona Metalurgie Chirie spatii de birouri moderne la un pret foarte bun prin raport cu beneficiile, situate in zona Metalurgie, pregatite pentru activitati de proiectare, agentie publicitara sau alte activitati, confortul fiind asigurat de o centrala termica independenta, climatizarea si centrala de tratare aer, parcari, restaurantul si mijloacele de transport din apropiere. Spatiu 117mp, bd. Chimiei 12, Retea apa si apometru, canalizare, gaz si contor, 380V; centrala termica pe gaz si calorifere/ ventiloconvectori; climatizare si centrala de tratare aer cu ventilatie; Grup sanitar; Orientativ: 1000 Eur+TVA/luna (8,54 Eur+TVA/mp), oferta personalizata la cerere; Lucian Creanga - consultant imobiliar cu 400+ oferte spatii comerciale/ birouri si 100.000mp+ tranzactionati - iti sunt aproape ca tu să compari oferte reale și să-ți optimizezi termenii tranzacției! Comision zero pentru aceasta oferta, daca nu am mai analizat alte oferte impreuna. Esti agent imobiliar? Colaboram.
Citește mai mult Citește mai puțin

Detalii spațiu comercial

ID anunț: 1819181 Actualizat în: 31 Martie 2026
Suprafață utilă: 117 mp
Suprafață utilă totală: 117 mp
Regim înălțime: P+1E
An construcție: 1980

Istoric preț

Puncte de interes

Mijloace transport
transport
Pod Metalurgie
Mijloace transport aprox. 444 m
transport
Pod Metalurgie
Mijloace transport aprox. 452 m
transport
Statia "Pod Metalurgie", linia 11,13,1
Mijloace transport aprox. 470 m
transport
Statia "Pod Metalurgie", linia 27
Mijloace transport aprox. 482 m
Școală
education
Grupul Scolar Stefan Procopiu
Învățământ aprox. 614 m
education
Gradinita Waldorf Iasi
Învățământ aprox. 646 m
education
Scoala Ionel Teodoreanu
Învățământ aprox. 1082 m
education
Gradinita
Învățământ aprox. 1127 m
Recreere
parks
Teren sportiv
Recreere aprox. 157 m
restaurants
Lord Gust
Restaurante aprox. 807 m
shopping
Complex Ciurchi
Supermarket/Mall aprox. 812 m
shopping
eGros
Supermarket/Mall aprox. 1049 m

Proprietăți similare

Birou, de 113 mp, în Centru Civic
1.070 € / lună
Iași, Centru Civic
113 mp utili
2E
2006
Birou, de 77 mp, în Tătărași
924 € / lună
Iași, Tătărași
77 mp utili
Birou, de 106 mp, în Târgu Cucu
900 € / lună
Iași, Târgu Cucu
106 mp utili
2E
2000
Birou, de 71 mp, în Tudor Vladimirescu
900 € / lună
Iași, Tudor Vladimirescu
71 mp utili
4E
Birou, de 81 mp, în Central
900 € / lună
Iași, Central
81 mp utili
2021
Birou, de 71 mp, în Tudor Vladimirescu
901 € / lună
Iași, Tudor Vladimirescu
71 mp utili
2010
Birou, de 50 mp, în Ultracentral
1.000 € / lună
Iași, Ultracentral
50 mp utili
1900
Birou, de 74 mp, în Copou
983 € / lună
Iași, Copou
74 mp utili
2024
Birou, de 107 mp, în Centru Civic
963 € / lună
Iași, Centru Civic
107 mp utili
2E
2006

Abonează-te la newsletter să fii primul care primește cele mai noi recomandări de proprietăți și sfaturi de la experți.