Birouri Premium de 304 mp în Zona Industrială Vest Arad

1.826 € / lună
6.01 € / mp / lună

Exterior Vest, Arad

Suprafață utilă totală:
304,2 mp
An construcție:
2010

Descriere spațiu comercial

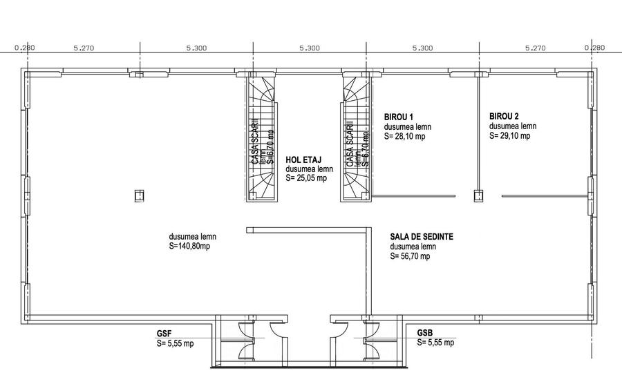
Atenție! Birouri Premium de Închiriat în Zona Industrială Vest Descoperă un spațiu de birouri de 304 mp, creat pentru afacerea ta de succes! Biroul oferă lumină naturală, spații deschise și finisaje de calitate, ideale pentru un mediu de lucru productiv și confortabil. Mai mult, ai la dispoziție 6 locuri de parcare incluse, ceea ce asigură comoditatea echipei tale și a clienților. Nu rata ocazia de a oferi companiei tale prestigiul și confortul pe care le merită. Contactează-ne acum pentru vizionare și detalii suplimentare! ☎ – Florin Moș
Citește mai mult Citește mai puțin

Detalii spațiu comercial

ID anunț: 61353 Actualizat în: 26 Martie 2026
Suprafață utilă: 304,2 mp
Suprafață utilă totală: 304,2 mp
Etaj: Etaj 1
An construcție: 2010

Istoric preț

Facilități

Utilități
Curent Apă Canalizare

Puncte de interes

Mijloace transport
transport
Arad Vest
Mijloace transport aprox. 1957 m
Școală
education
Gradinita cu program prelungit nr. 8
Învățământ aprox. 1490 m
Recreere
restaurants
Hong Kong
Restaurante aprox. 1864 m
parks
Parc
Recreere aprox. 1884 m
shopping
Flana Market
Supermarket/Mall aprox. 1922 m

Proprietăți similare

Birou, de 250 mp, în UTA
2.000 € / lună
Arad, UTA
250 mp utili
2E
2010
Birou, de 150 mp, în Intim
1.850 € / lună
Arad, Intim
150 mp utili
1E
2025
Birou, de 151 mp, în Ultracentral
1.800 € / lună
Arad, Ultracentral
151 mp utili
6E
2018
Birou, de 192 mp, în Micălaca
2.000 € / lună
Arad, Micălaca
192 mp utili
1E
2018
Birou, de 306 mp, în Nord
2.002 € / lună
Arad, Nord
306 mp utili
1E
2010
Birou, de 151 mp, în Ultracentral
1.800 € / lună
Arad, Ultracentral
151 mp utili
6E
2018

Abonează-te la newsletter să fii primul care primește cele mai noi recomandări de proprietăți și sfaturi de la experți.