4 camere parter cu terasa | 2 parcari si boxa | IBIZA SOL

285.000 €

Voluntari, Judeţul Ilfov

Nr. camere:
4
Suprafață utilă:
121,15 mp
Etaj:
Parter / 3
An construcție:
2008
Nr. niveluri:
3

Descriere apartament

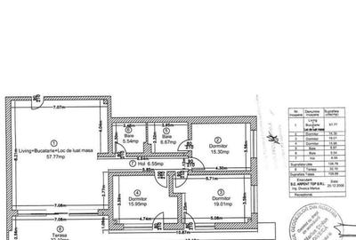
🏡 Apartament 4 camere de vânzare – Ibiza Sol Residence, Pipera – Școala Americană 📍 Locație premium: Pipera – în imediata apropiere a Școlii Americane, în complexul rezidențial Ibiza Sol Residence, cu acces rapid către zona de business din Nordul Capitalei 🧱 Detalii proprietate: - Suprafață totală: 121 mp - Compartimentare eficientă: living generos cu șemineu, zonă de dining, 3 dormitoare, 2 băi, terasă spațioasă de 21 mp - Situat la parter într-un imobil S+P+3, finalizat în 2008 - Vedere spre zona verde, ideală pentru relaxare 🏢 Complex rezidențial de lux – facilități exclusive: - Zonă verde bine întreținută - Acces la piscină, zonă SPA, sală de fitness, club pentru copii - Securitate și acces controlat 🚗 Inclus în preț: - 2 locuri de parcare subterane - Boxă de depozitare la subsol 📌 Ideal pentru o familie activă care își dorește confort, siguranță și acces rapid către școli internaționale, birouri și zone de agrement. 📞 Preț și detalii suplimentare la cerere – Contactează-ne pentru vizionare!
Citește mai mult Citește mai puțin
Semidecomandat Nemobilat Piscină Aer condiționat Calorifere Centrală proprie Bine întreținut (Bună)

Detalii apartament

ID anunț: 206269 Actualizat în: 23 Ianuarie 2026
Nr. camere: 4
Suprafață utilă: 121,15 mp
Suprafață utilă totală: 121,15 mp
Compartimentare: Semidecomandat
Etaj: Parter / 3
Nr. băi: 2
An construcție: 2008
Regim înălțime: P+3E

Istoric preț

Facilități

Pereți
Faianță Vopsea lavabilă
Podele
Gresie Parchet
Ușă intrare
Parchet Metal PVC
Uși interior
Celulare PVC
Stare interior
Stare bună
Izolații termice
Exterior
Ferestre cu geam termopan
PVC
Contorizare
Apometre Contor gaz
Bucătărie
Parțial mobilată Parțial utilată
Mobilat
Nemobilat
Electrocasnice
Aragaz Hotă
Diverse
Șemineu Senzor de fum
Alte spații utile
Terasă
Facilități imobil
Piscină exterioară
Utilități
Curent Apă Canalizare Gaze Aragaz / Plită Supraveghere video
Sistem încălzire
Calorifere Centrală proprie
Climatizare
Aer condiționat
Amenajare străzi
Iluminat stradal Mijloace de transport în comun Asfaltate Betonate
Servicii imobil
Pază Supraveghere video

Puncte de interes

Mijloace transport
transport
Pipera Drumul Bisericii
Mijloace transport aprox. 1579 m
Școală
education
Gradinita Happy Univers
Învățământ aprox. 1413 m
education
Scoala Discovery
Învățământ aprox. 1436 m
education
Scoala Internationala Olga Gudynn
Învățământ aprox. 1466 m
education
Kindergarden
Învățământ aprox. 1504 m
Recreere
parks
residential kids park
Recreere aprox. 640 m
shopping
Mega Image Pipera-Tunari
Supermarket/Mall aprox. 1237 m
shopping
Carrefour Market Pipera
Supermarket/Mall aprox. 1267 m
restaurants
Zona Pensiunii Pipera(b-dul Pipera)
Restaurante aprox. 1318 m

Proprietăți similare

Apartament cu 3 camere decomandat în Nord
293.900 € + TVA
Județul Ilfov, Voluntari
3 camere
84,75 mp
Parter
Apartament cu 3 camere decomandat în Nord
303.369 € + TVA
Județul Ilfov, Voluntari
3 camere
111,6 mp
Etaj 5
Apartament cu 3 camere decomandat în Nord
308.972 € + TVA
Județul Ilfov, Voluntari
3 camere
115,7 mp
Etaj 3
Apartament cu 2 camere decomandat, mobilat în Nord
275.000 €
Județul Ilfov, Voluntari
2 camere
67 mp
Etaj 4
Apartament cu 4 camere semidecomandat în Nord
279.000 €
Județul Ilfov, Voluntari
4 camere
151 mp
Etaj 3
Apartament cu 3 camere semidecomandat, mobilat în Nord
276.000 €
Județul Ilfov, Voluntari
3 camere
67 mp
Etaj 9
Apartament cu 3 camere decomandat în Nord
296.356 € + TVA
Județul Ilfov, Voluntari
3 camere
108,8 mp
Etaj 3
Apartament cu 4 camere decomandat în Central
267.000 €
Județul Ilfov, Voluntari
4 camere
113 mp
Etaj 4 / 6
Apartament cu 2 camere decomandat, mobilat în Exterior Est
283.000 €
Județul Ilfov, Voluntari
2 camere
66 mp
Etaj 3

Abonează-te la newsletter să fii primul care primește cele mai noi recomandări de proprietăți și sfaturi de la experți.