Reducere pret!!! Penthouse 281 mp cu view spectaculos in Pipera

298.000 €

Voluntari, Judeţul Ilfov

Nr. camere:
4
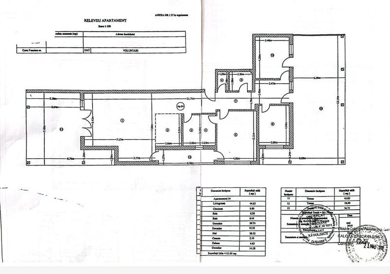
Suprafață utilă:
151 mp
Etaj:
3 / 3
An construcție:
2024
Nr. niveluri:
3

Descriere apartament

Terra Estate - primul pas catre acasa! Va propunem un penthouse cu 4 camere si terase imense excelent pozitionat in apropierea padurii in Pipera, care se reliefeaza prin eleganta si concept arhitectural modern. Pozitionarea optimizeaza timpul dumneavoastra, fiind intr-o zona linistita , ce ofera confortul si ambianta unui mediu relaxant, natural si primitor Este format din living cu bucatarie open space si 3 dormitoare, Stilul modern imbina armonios linistea zonei cu confortul dat de accesul rapid catre facilitati edilitare urbane. catre mijloacele de transport, zona de centre comerciale, scoala gradinita, etc. atit de necesare familiilor moderne. Construit din materiale de calitate incontestabila chiar daca este la etajul retras are pod inalt ce permite depozitarea si asigura o buna izolare. Pretul este unul modic, avand in vedere suprafata totala de peste 250 mp.
Citește mai mult Citește mai puțin
Semidecomandat Nemobilat Centrală proprie

Detalii apartament

ID anunț: 3203817 Actualizat în: 15 Februarie 2026
Nr. camere: 4
Suprafață utilă: 151 mp
Suprafață utilă totală: 151 mp
Compartimentare: Semidecomandat
Etaj: Etaj 3 / 3
Nr. băi: 3
An construcție: 2024
Regim înălțime: P+3E

Istoric preț

Facilități

Pereți
Faianță Vopsea lavabilă
Podele
Gresie Parchet
Ușă intrare
Parchet Metal
Izolații termice
Exterior
Contorizare
Contor gaz
Mobilat
Nemobilat
Alte spații utile
Terasă
Dotări imobil
Acoperiș
Utilități
Curent Apă Canalizare Gaze Cablu
Sistem încălzire
Centrală proprie
Acces internet
Cablu
Amenajare străzi
Iluminat stradal Mijloace de transport în comun Asfaltate

Puncte de interes

Mijloace transport
transport
statia cocorilor
Mijloace transport aprox. 1998 m
Școală
education
Sediu al scolii generale cu cls. I-VIII, nr 1- oras Voluntari
Învățământ aprox. 1399 m
education
Scoala Generala Nr. 42
Învățământ aprox. 1840 m
education
Primaria veche
Învățământ aprox. 1866 m
education
Gradinita
Învățământ aprox. 1878 m
Recreere
parks
Teren fotbal
Recreere aprox. 510 m
parks
residential kids park
Recreere aprox. 1344 m
parks
Teren sportiv
Recreere aprox. 1506 m
parks
Teren sportiv
Recreere aprox. 1508 m

Proprietăți similare

Apartament cu 3 camere decomandat în Nord
293.900 € + TVA
Județul Ilfov, Voluntari
3 camere
84,75 mp
Parter
Apartament cu 2 camere decomandat, mobilat în Nord
275.000 €
Județul Ilfov, Voluntari
2 camere
67 mp
Etaj 4
Apartament cu 3 camere decomandat în Nord
303.369 € + TVA
Județul Ilfov, Voluntari
3 camere
111,6 mp
Etaj 5
Apartament cu 3 camere decomandat în Nord
296.356 € + TVA
Județul Ilfov, Voluntari
3 camere
108,8 mp
Etaj 3
Apartament cu 3 camere decomandat în Nord
308.972 € + TVA
Județul Ilfov, Voluntari
3 camere
115,7 mp
Etaj 3
Apartament cu 3 camere semidecomandat, mobilat în Nord
276.000 €
Județul Ilfov, Voluntari
3 camere
67 mp
Etaj 9
Apartament cu 3 camere semidecomandat în Nord
289.000 € + TVA
Județul Ilfov, Voluntari
3 camere
83 mp
Etaj 1
Apartament cu 4 camere semidecomandat în Nord
285.000 €
Județul Ilfov, Voluntari
4 camere
121,15 mp
Parter
Apartament cu 3 camere în Central
312.120 €
Județul Ilfov, Voluntari
3 camere
97 mp
Etaj 2

Abonează-te la newsletter să fii primul care primește cele mai noi recomandări de proprietăți și sfaturi de la experți.