Penthouse 4 Camere | 2 Terase | 259 mp | Iancu Nicolae

980.800 €

Voluntari, Judeţul Ilfov

Nr. camere:
4
Suprafață utilă:
258 mp
Etaj:
4 / 4
An construcție:
2026
Nr. niveluri:
4

Descriere apartament

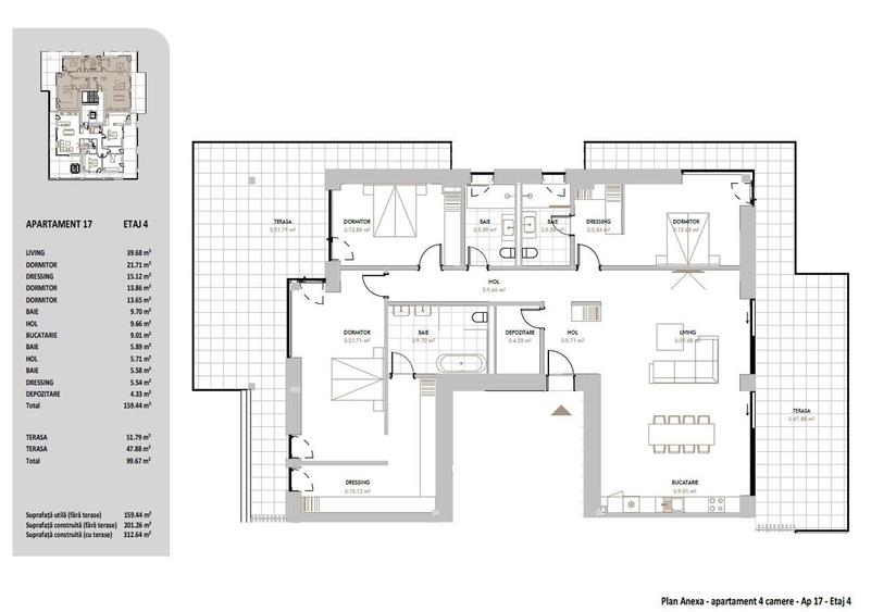
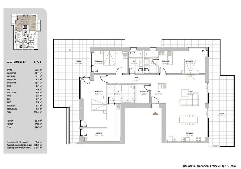
SI Development Group va prezinta spre vanzare un penthouse exclusivist de 4 camere, situat la etajul 4 al unui imobil boutique din zona Iancu Nicolae, conceput pentru un stil de viata modern, confortabil si o suprafata generoasa de peste 259 mp utili, incluzand terasele, aceasta proprietate se adreseaza celor care cauta un spatiu amplu, bine compartimentat si luminos, intr-una dintre cele mai apreciate zone rezidentiale din nordul capitalei.Apartamentul beneficiaza de doua terase generoase, cu suprafete de 51.79 mp si 47.88 mp, oferind multiple zone de relaxare si o conexiune naturala intre interior si exterior un element definitoriu pentru acest tip de proprietate.Parte dintr-un proiect restrans, cu doar 17 unitati, apartamentul ofera intimitate, liniste si un nivel ridicat de exclusivitate, intr-o comunitate selecta.___________________________________________________________PROIECT & ARHITECTURA :Imobilul este realizat pe structura din beton armat, cu fatada ventilata placata cu materiale premium Dekton, fiind gandit pentru durabilitate, eficienta energetica si un design contemporan. Regim de inaltime: 2S + P + 4E Parcare subterana pe doua niveluri Comunitate restransa doar 17 apartamente Termen de finalizare: Septembrie 2026Tehnologiile integrate asigura un confort superior: Pompa de caldura individuala Incalzire in pardoseala Ventiloconvectoare pentru racire Sistem smart home Grenton___________________________________________________________DESIGN & FINISAJE :Fiecare detaliu este atent ales pentru a crea un ambient modern si elegant: Tamplarie Schuco, cu suprafete vitrate ample Parchet triplustratificat Usi filomuro pentru un design minimalist Obiecte sanitare Villeroy & Boch Baterii premium Gessi Terase amenajate cu pardoseala flotanta si balustrade din sticla___________________________________________________________SUPRAFETE : Suprafata utila: 159.44 mp Terasa 1: 51.79 mp Terasa 2: 47.88 mp Suprafata utila totala: 259.11 mp Suprafata construita: 312.64 mp___________________________________________________________COMPARTIMENTARE :Spatiul este organizat eficient, cu delimitare clara intre zona de zi si zona de noapte: Living generos de aproximativ 40 mp, cu zona de dining si acces direct catre terasa Bucatarie open space, integrata natural in zona de zi 3 dormitoare spatioase si bine proportionate Dormitor matrimonial cu dressing dedicat Dressinguri suplimentare si spatii de depozitare 3 bai___________________________________________________________LOCALIZARE :Pozitionat in zona Iancu Nicolae, unul dintre cele mai cautate repere rezidentiale din nordul Bucurestiului, apartamentul beneficiaza de acces rapid catre principalele puncte de interes: Scoli internationale: American School, British School, Cambridge School Baneasa Shopping City, Jolie Ville, restaurante si cafenele Padurea Baneasa si zone de recreere Zona de business Pipera Barbu Vacarescu Aeroportul OtopeniZona este recunoscuta pentru comunitatea internationala, siguranta si calitatea vietii.___________________________________________________________DETALII FINANCIARE : Apartament nr. 17, etaj 4 (penthouse) Pret: 980.800 Euro + TVA Comision 0% pentru cumparator Posibilitate achizitie locuri de parcare subterane, contra-cost Oferim asistenta gratuita prin brokeri de credite parteneri, pentru obtinerea celei mai avantajoase solutii de finantare___________________________________________________________PREDARE : Termen estimat: Septembrie 2026 Predare complet finisata, conform standardelor proiectului___________________________________________________________Nota: Suprafetele sunt preluate din documentatia tehnica a dezvoltatorului si pot exista mici diferente fata de masuratorile finale.___________________________________________________________Pentru prezentare completa, schite si detalii suplimentare si vizionari, va stam la dispozitie atat pe site-urile de specialitate, WhatsApp cat si telefonic.
Citește mai mult Citește mai puțin

Detalii apartament

ID anunț: 4059634 Actualizat în: 02 Aprilie 2026
Nr. camere: 4
Suprafață utilă: 258 mp
Suprafață utilă totală: 258 mp
Etaj: Etaj 4 / 4
An construcție: 2026
Regim înălțime: P+4E

Istoric preț

Puncte de interes

Mijloace transport
transport
Pipera Drumul Bisericii
Mijloace transport aprox. 1133 m
transport
Jolie Ville Baneasa
Mijloace transport aprox. 1337 m
Școală
education
Echilibria 1
Învățământ aprox. 574 m
education
Mark Twain
Învățământ aprox. 612 m
education
British School of Bucharest
Învățământ aprox. 712 m
education
Scoala Internationala Olga Gudynn
Învățământ aprox. 821 m
Recreere
restaurants
Doncafe Brasserie
Restaurante aprox. 547 m
shopping
Carrefour Market Pipera
Supermarket/Mall aprox. 658 m
parks
Loc de joaca
Recreere aprox. 743 m
shopping
Mega Image Pipera-Tunari
Supermarket/Mall aprox. 766 m

Proprietăți similare

Apartament cu 6 camere decomandat, mobilat în Voluntari
950.000 €
Județul Ilfov, Voluntari
6 camere
577 mp
Etaj 5 / 5
Apartament cu 4 camere decomandat, mobilat în Exterior Vest
890.000 € + TVA
Județul Ilfov, Voluntari
4 camere
188 mp
Etaj 4 / 5
Apartament cu 4 camere circular în Ferme
1.000.000 €
Județul Ilfov, Otopeni
4 camere
200 mp
Etaj 4
Apartament cu 2 camere semidecomandat în Chiajna
930.000 €
Județul Ilfov, Chiajna
2 camere
72 mp
Etaj 4
Apartament cu 4 camere decomandat în Tunari
890.000 €
Județul Ilfov, Tunari
4 camere
188 mp
Etaj 4

Abonează-te la newsletter să fii primul care primește cele mai noi recomandări de proprietăți și sfaturi de la experți.