Apartament 2 camere LUX | My Place Residence Pipera | Mobilat & Utilat

190.000 €

Voluntari, Judeţul Ilfov

Nr. camere:
2
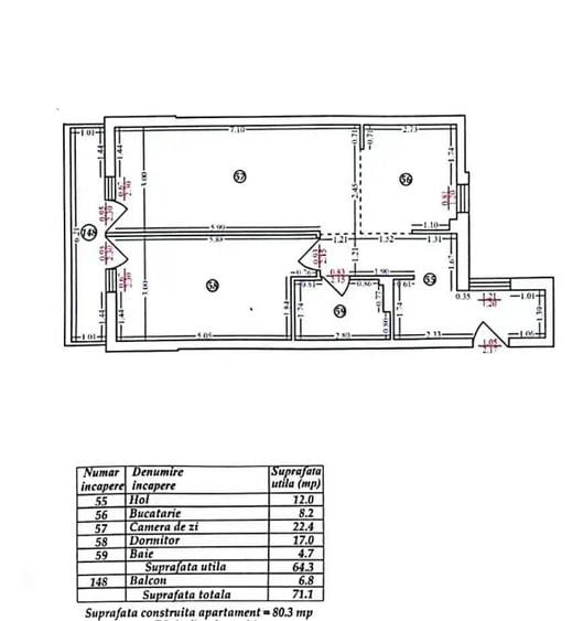
Suprafață utilă:
64,3 mp
Etaj:
1
An construcție:
2023

Descriere apartament

Mobilat & utilat complet | Design interior premium Va prezentam spre vanzare un apartament de exceptie, situat in complexul rezidential My Place Residence, una dintre cele mai apreciate locatii premium din nordul Capitalei, chiar langa Porsche Pipera. Proprietatea este complet mobilata si utilata LUX, cu design realizat de designer de interior, fiecare element fiind ales cu atentie pentru un stil de viata modern, elegant si confortabil. Detalii apartament - 2 camere cu bucatarie open-space - Etaj 1 - Parchet din lemn triplu stratificat calitate superioara - Finisaje premium in intreg apartamentul - Mobilier si electrocasnice de top, totul inclus - Terasa generoasa, cu acces din living si din dormitor - Compartimentare eficienta, spatii luminoase si aerisite - Apartament gata de mutare, fara investitii suplimentare Localizare & accesibilitate Complexul este amplasat intr-o zona linistita si selecta, cu acces rapid catre principalele puncte de interes din Pipera si nordul Bucurestiului. Transport in comun: - Statii de autobuz la cateva minute de mers pe jos - Acces facil catre zonele de business Pipera, Aviatiei, Barbu Vacarescu - Conexiune rapida catre arterele principale ale orasului Magazine & facilitati in imediata apropiere: - Kaufland Pipera - Lidl - Supermarketuri, magazine de proximitate - Farmacii, banci, sali de sport - Restaurante si cafenele - Centre comerciale precum Promenada Mall la cateva minute cu masina Avantaje - Complex rezidential premium, nou - Zona foarte buna, linistita, ideala pentru locuit - Potrivit atat pentru rezidenta proprie, cat si pentru investitie - Standard ridicat de calitate in tot ansamblul Pret: - 190.000 + TVA - Loc de parcare subteran disponibil separat: 20.000 + TVA Pentru detalii suplimentare sau programarea unei vizionari, va stam la dispozitie. Un apartament premium intr-o locatie premium o oportunitate inedita in nordul Capitalei. Agent: Nicoleta Necula Contact: VAUNT ID: 109464
Citește mai mult Citește mai puțin

Detalii apartament

ID anunț: 3447255 Actualizat în: 11 Martie 2026
Nr. camere: 2
Suprafață utilă: 64,3 mp
Suprafață utilă totală: 64,3 mp
Etaj: Etaj 1
An construcție: 2023

Istoric preț

Puncte de interes

Mijloace transport
transport
Capat C.F.R Constanta linii : 112,135,445
Mijloace transport aprox. 539 m
transport
Rocin
Mijloace transport aprox. 902 m
transport
Rocin
Mijloace transport aprox. 903 m
transport
Statia Rocin, linia 16, 36
Mijloace transport aprox. 918 m
Școală
education
Gradinita Zece
Învățământ aprox. 1310 m
education
Colegiul Tehnic Edmond Nicolau, fostul Electronica
Învățământ aprox. 1534 m
education
Scoala Nr.3 Voluntari
Învățământ aprox. 1555 m
education
Grupul Scolar Industrial Constantin Brancusi (en)
Învățământ aprox. 1635 m
Recreere
restaurants
Q's Inn
Restaurante aprox. 403 m
parks
spatiu verde
Recreere aprox. 477 m
shopping
Pipera Plaza
Supermarket/Mall aprox. 691 m
shopping
Kaufland
Supermarket/Mall aprox. 691 m

Proprietăți similare

Apartament cu 3 camere decomandat în Central
187.000 €
Județul Ilfov, Voluntari
3 camere
82 mp
Etaj 1
Apartament cu 2 camere semidecomandat în Central
189.000 €
Județul Ilfov, Voluntari
2 camere
56 mp
Etaj 3 / 4
Apartament cu 2 camere decomandat în Central
205.000 €
Județul Ilfov, Voluntari
2 camere
65 mp
Etaj 4
Apartament cu 2 camere decomandat în Central
190.000 €
Județul Ilfov, Voluntari
2 camere
68 mp
Etaj 2
Apartament cu 2 camere decomandat în Central
199.900 €
Județul Ilfov, Voluntari
2 camere
54 mp
Etaj 3
Apartament cu 3 camere decomandat, mobilat în Central
185.000 €
Județul Ilfov, Voluntari
3 camere
113 mp
Parter / 6
Apartament cu 2 camere decomandat în Central
180.000 € + TVA
Județul Ilfov, Voluntari
2 camere
57 mp
Etaj 3
Apartament cu 2 camere decomandat, mobilat în Central
200.000 €
Județul Ilfov, Voluntari
2 camere
50 mp
Etaj 7
Apartament cu 2 camere semidecomandat în Central
183.900 €
Județul Ilfov, Voluntari
2 camere
50 mp
Etaj 5

Abonează-te la newsletter să fii primul care primește cele mai noi recomandări de proprietăți și sfaturi de la experți.