REA1027085 Studio Dublu IResidence Pipera Plaza I Cesiune

149.000 €

Voluntari, Judeţul Ilfov

Nr. camere:
2
Suprafață utilă:
46 mp
Etaj:
1 / 7
An construcție:
2026
Nr. niveluri:
7

Descriere apartament

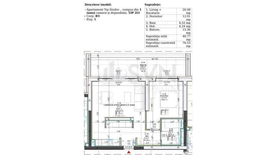
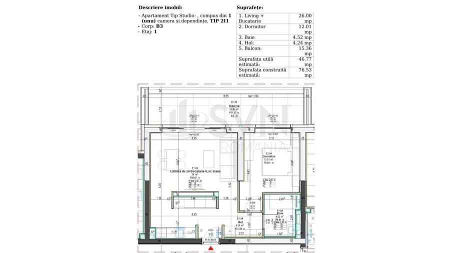
SVN Residentialist va prezinta spre cesiune un studio dublu in complexul iResidence, zona Pipera Plaza - Voluntari. Studio dublu tip 2I situat in Corpul B3 (Faza 1) - primul bloc programat pentru finalizare (aproximativ dec. 2026) .In prezent structura este ridicata si tamplaria montata. Detalii cheie: Etaj 1, orientare Nord (lumina constanta, ideal pentru eficienta termica vara); Suprafata utila totala: 62,13 mp (include terasa superba de 15,36 mp); Randament estimat: 25%/an (Pret estimat finalizare: 165.000 EUR). Sistem plata: Cesiune persoana fizica. Avans 40% acum, restul de 60% la predare.Pretul afisat include TVA. Finisaje Premium: Fatada ventilata, tamplarie aluminiu Reynaers (tripan); Incalzire in pardoseala Rehau, climatizare centralizata (tavan); Usi Filomuro, dus walk-in Geberit, baterii Daniel Rubinetterie. Pozitionare excelenta langa Pipera Plaza, cu acces rapid la zona de birouri. Pentru mai multe detalii va stam la dispozitie!
Citește mai mult Citește mai puțin
Confort 1 Decomandat Centrală proprie

Detalii apartament

ID anunț: 3268052 Actualizat în: 13 Martie 2026
Nr. camere: 2
Suprafață utilă: 46 mp
Suprafață utilă totală: 46 mp
Compartimentare: Decomandat
Confort: 1
Etaj: Etaj 1 / 7
Nr. băi: 1
An construcție: 2026
Regim înălțime: P+7E

Istoric preț

Facilități

Pereți
Faianță
Podele
Gresie Parchet
Ferestre cu geam termopan
PVC
Contorizare
Apometre
Diverse
Sistem de alarmă
Facilități imobil
Interfon Lift
Utilități
Curent Supraveghere video
Sistem încălzire
Centrală proprie
Servicii imobil
Supraveghere video Pază

Puncte de interes

Mijloace transport
transport
Pipera Drumul Bisericii
Mijloace transport aprox. 1028 m
transport
Statia Gelcap, linia 16, 36
Mijloace transport aprox. 1095 m
transport
Gelcap
Mijloace transport aprox. 1151 m
transport
Statia Mentiunii, linia 682
Mijloace transport aprox. 1160 m
Școală
education
Echilibria 1
Învățământ aprox. 807 m
education
Gradinita Happy Univers
Învățământ aprox. 828 m
education
Scoala Nr.3 Voluntari
Învățământ aprox. 957 m
education
Gradinita Zece
Învățământ aprox. 1241 m
Recreere
shopping
Kaufland
Supermarket/Mall aprox. 421 m
shopping
Pipera Plaza
Supermarket/Mall aprox. 422 m
restaurants
Q's inn
Restaurante aprox. 525 m
parks
spatiu verde
Recreere aprox. 691 m

Proprietăți similare

Apartament cu 2 camere în Central
135.000 € + TVA
Județul Ilfov, Voluntari
2 camere
44 mp
Etaj 6 / 8
Apartament cu 2 camere semidecomandat, mobilat în Central
150.000 €
Județul Ilfov, Voluntari
2 camere
62 mp
Etaj 4 / 9
Apartament cu 2 camere semidecomandat în Central
151.500 € + TVA
Județul Ilfov, Voluntari
2 camere
57,9 mp
Etaj 5 / 8
Apartament cu 2 camere decomandat în Central
162.000 €
Județul Ilfov, Voluntari
2 camere
54 mp
Etaj 5 / 5
Apartament cu 2 camere semidecomandat, mobilat în Central
151.000 €
Județul Ilfov, Voluntari
2 camere
53 mp
Etaj 2 / 4
Apartament cu 2 camere semidecomandat, mobilat în Central
148.000 €
Județul Ilfov, Voluntari
2 camere
55 mp
Parter
Apartament cu 3 camere, mobilat în Central
139.000 €
Județul Ilfov, Voluntari
3 camere
81 mp
Etaj 3 / 5
Apartament cu 2 camere semidecomandat în Central
139.000 € + TVA
Județul Ilfov, Voluntari
2 camere
52 mp
Etaj 1
Apartament cu 2 camere decomandat în Central
150.000 €
Județul Ilfov, Voluntari
2 camere
52 mp
Etaj 8 / 8

Abonează-te la newsletter să fii primul care primește cele mai noi recomandări de proprietăți și sfaturi de la experți.