Iancu Nicolae | Apartament 3 Camere 144 mp | Imobil Boutique |Predare Septembrie

456.272 €

Voluntari, Judeţul Ilfov

Nr. camere:
3
Suprafață utilă:
115 mp
Etaj:
3 / 4
An construcție:
2026
Nr. niveluri:
4

Descriere apartament

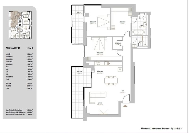
SI Development Group va prezinta spre vanzare un apartament de 3 camere, situat in zona Iancu Nicolae, intr-un imobil boutique exclusivist, conceput pentru un stil de viata modern, confortabil si rafinat. Cu o suprafata generoasa de peste 144 mp utili, incluzand balcoanele, aceasta proprietate se adreseaza celor care cauta mai mult decat un simplu apartament — un spatiu echilibrat, luminos si bine gandit, intr-una dintre cele mai apreciate zone rezidentiale din nordul capitalei. Parte dintr-un proiect restrans, cu doar 17 unitati, apartamentul ofera intimitate, liniste si un nivel ridicat de calitate, intr-o comunitate selecta. _______________________________________________________________ PROIECT & ARHITECTURA : Imobilul este realizat pe structura din beton armat, cu fatada ventilata placata cu materiale premium Dekton, fiind gandit pentru durabilitate, eficienta energetica si un design contemporan. → Regim de inaltime: 2S + P + 4E → Parcare subterana pe doua niveluri → Comunitate restransa – doar 17 apartamente → Termen de finalizare: Septembrie 2026 Tehnologiile integrate asigura un confort superior: → Pompa de caldura individuala → Incalzire in pardoseala → Ventiloconvectoare pentru racire → Sistem smart home Grenton _______________________________________________________________ DESIGN & FINISAJE : Fiecare detaliu este atent ales pentru a crea un ambient modern si elegant: → Tamplarie Schuco, cu suprafete vitrate ample → Parchet triplustratificat → Usi filomuro pentru un design minimalist → Obiecte sanitare Villeroy & Boch → Baterii premium Gessi → Balcoane cu pardoseala flotanta si balustrade din sticla _______________________________________________________________ SUPRAFETE : → Suprafata utila: 115.44 mp → Suprafata balcoane: 28.61 mp → Suprafata utila totala: 144.05 mp → Suprafata construita: 173.64 mp _______________________________________________________________ COMPARTIMENTARE : Spatiul este organizat eficient, cu delimitare clara intre zona de zi si zona de noapte: → Living generos, cu zona de dining si acces catre balcon → Bucatarie open space, integrata natural in zona de zi → 2 dormitoare luminoase si bine proportionate → Dormitor matrimonial cu dressing → Dressing suplimentar si spatii de depozitare → 2 bai _______________________________________________________________ LOCALIZARE : Pozitionat in zona Iancu Nicolae, unul dintre cele mai cautate repere rezidentiale din nordul Bucurestiului, apartamentul beneficiaza de acces rapid catre principalele puncte de interes: → Scoli internationale: American School, British School, Cambridge School → Baneasa Shopping City, Jolie Ville, restaurante si cafenele → Padurea Baneasa si zone de recreere → Zona de business Pipera – Barbu Vacarescu → Aeroportul Otopeni Zona este recunoscuta pentru comunitatea internationala, siguranta si calitatea vietii. _______________________________________________________________ DETALII FINANCIARE : → Apartament nr. 14, etaj 3 → Pret: 456.272 Euro + TVA → Comision 0% pentru cumparator → Posibilitate achizitie locuri de parcare subterane si boxa, contra-cost → Oferim asistenta gratuita prin brokeri de credite parteneri, pentru obtinerea celei mai avantajoase solutii de finantare _______________________________________________________________ PREDARE : → Termen estimat: Septembrie 2026 → Predare complet finisata, conform standardelor proiectului _______________________________________________________________ Nota: Suprafetele sunt preluate din documentatia tehnica a dezvoltatorului si pot exista mici diferente fata de masuratorile finale. _______________________________________________________________ Pentru prezentare completa, schite si detalii suplimentare si vizionari, va stam la dispozitie atat pe site-urile de specialitate, WhatsApp cat si telefonic.
Citește mai mult Citește mai puțin
Semidecomandat Nemobilat Aer condiționat Ventiloconvectoare Bine întreținut (Bună)

Detalii apartament

ID anunț: 4056360 Actualizat în: 02 Aprilie 2026
Nr. camere: 3
Suprafață utilă: 115 mp
Suprafață utilă totală: 115 mp
Compartimentare: Semidecomandat
Etaj: Etaj 3 / 4
Nr. băi: 2
An construcție: 2026
Regim înălțime: P+4E

Istoric preț

Facilități

Pereți
Vopsea lavabilă Faianță
Podele
Gresie Parchet
Stare interior
Stare bună
Izolații termice
Exterior
Ferestre cu geam termopan
Aluminiu
Contorizare
Contor gaz Apometre
Mobilat
Nemobilat
Diverse
Telecomandă poartă acces auto
Alte spații utile
WC Serviciu Terasă
Facilități imobil
Lift Videointerfon
Utilități
Curent Canalizare Apă Gaze Cablu Supraveghere video
Internet
Cablu Fibră optică Wireless
Climatizare
Aer condiționat Ventiloconvectoare
Amenajare străzi
Asfaltate Iluminat stradal Mijloace de transport în comun
Servicii imobil
Supraveghere video

Puncte de interes

Mijloace transport
transport
Jolie Ville Baneasa
Mijloace transport aprox. 581 m
transport
Aeroportul Internaţional Băneasa (Aurel Vlaicu) - LRBS (BBU)
Mijloace transport aprox. 1660 m
transport
Pipera Drumul Bisericii
Mijloace transport aprox. 1741 m
Școală
education
Mark Twain International School
Învățământ aprox. 304 m
education
British School of Bucharest
Învățământ aprox. 1150 m
education
Mark Twain
Învățământ aprox. 1209 m
education
Echilibria 1
Învățământ aprox. 1279 m
Recreere
parks
Loc de joaca
Recreere aprox. 291 m
shopping
Tia Supermarket Non-Stop
Supermarket/Mall aprox. 310 m
shopping
Lidl Pipera
Supermarket/Mall aprox. 437 m
restaurants
Restaurant Tecadra
Restaurante aprox. 568 m

Proprietăți similare

Apartament cu 4 camere în Central
464.000 €
Județul Ilfov, Voluntari
4 camere
120 mp
Etaj 4
Apartament cu 4 camere în Central
485.390 €
Județul Ilfov, Voluntari
4 camere
116,99 mp
Parter
Apartament cu 3 camere, mobilat în Vest
419.900 €
Județul Ilfov, Voluntari
3 camere
132 mp
Parter
Apartament cu 4 camere decomandat, mobilat în Nord
443.989 € + TVA
Județul Ilfov, Voluntari
4 camere
154,4 mp
Etaj 1
Apartament cu 3 camere în Central
424.420 €
Județul Ilfov, Voluntari
3 camere
91 mp
Parter
Apartament cu 3 camere în Central
460.000 €
Județul Ilfov, Voluntari
3 camere
127 mp
Etaj 7
Apartament cu 4 camere decomandat în Nord-Est
440.000 € + TVA
Județul Ilfov, Voluntari
4 camere
160 mp
Etaj 1
Apartament cu 3 camere în Nord
484.000 €
Județul Ilfov, Voluntari
3 camere
130 mp
Apartament cu 3 camere în Exterior Nord
438.800 € + TVA
Județul Ilfov, Voluntari
3 camere
155 mp
Etaj 2

Abonează-te la newsletter să fii primul care primește cele mai noi recomandări de proprietăți și sfaturi de la experți.