Apartament 3 camere cu cu curte proprie 251 mp totali - Iancu Nicolae

582.172 € + TVA

Voluntari, Judeţul Ilfov

Nr. camere:
3
Suprafață utilă:
116 mp
Etaj:
Parter / 4
An construcție:
2026
Nr. niveluri:
4

Descriere apartament

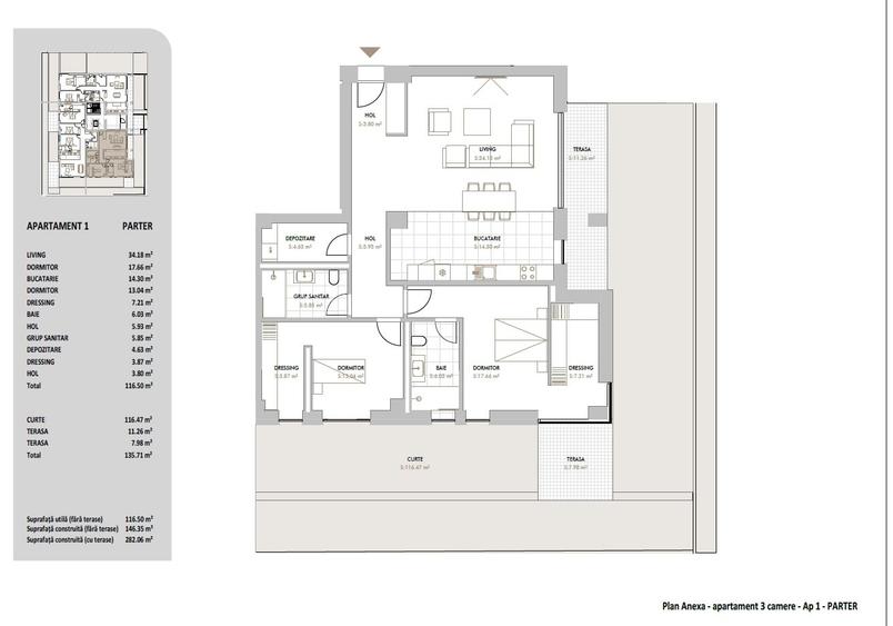
SI Development Group va prezinta spre vanzare un apartament de 3 camere, situat la parterul unui imobil boutique din zona Iancu Nicolae, conceput pentru un stil de viata modern, confortabil si bine conectat la exterior. Cu o suprafata generoasa de peste 134 mp utili, incluzand terasele, si o curte privata de aproximativ 116 mp, aceasta proprietate ofera un echilibru excelent intre spatiul interior si cel exterior, fiind ideala pentru familii sau pentru cei care isi doresc mai multa intimitate si spatiu verde. Curtea privata, completata de cele doua terase, creeaza un cadru ideal pentru relaxare si extinde in mod natural zona de zi. Parte dintr-un proiect restrans, cu doar 17 unitati, apartamentul ofera liniste, siguranta si un nivel ridicat de calitate, intr-o comunitate selecta. _____________________________________________ PROIECT & ARHITECTURA : Imobilul este realizat pe structura din beton armat, cu fatada ventilata placata cu materiale premium Dekton, fiind gandit pentru durabilitate, eficienta energetica si un design contemporan. → Regim de inaltime: 2S + P + 4E → Parcare subterana pe doua niveluri → Comunitate restransa – doar 17 apartamente → Termen de finalizare: Septembrie 2026 Tehnologiile integrate asigura un confort superior: → Pompa de caldura individuala → Incalzire in pardoseala → Ventiloconvectoare pentru racire → Sistem smart home Grenton ____________________________________________ DESIGN & FINISAJE : Fiecare detaliu este atent ales pentru a crea un ambient modern si elegant: → Tamplarie Schuco, cu suprafete vitrate ample → Parchet triplustratificat → Usi filomuro pentru un design minimalist → Obiecte sanitare Villeroy & Boch → Baterii premium Gessi → Terase amenajate cu pardoseala flotanta si balustrade din sticla ____________________________________________ SUPRAFETE : → Suprafata utila apartament: 116.50 mp → Suprafata terase: 18.37 mp (10.19 mp + 8.18 mp) → Suprafata utila totala (apartament + terase): 134.87 mp → Suprafata construita: 164.72 mp → Curte privata: 116.47 mp → Suprafata totala utilizabila (interior + exterior): 251.34 mp ____________________________________________ COMPARTIMENTARE : Spatiul este organizat eficient, cu delimitare clara intre zona de zi si zona de noapte: → Living generos, cu zona de dining si acces direct catre terasa si curte → Bucatarie open space, integrata natural in zona de zi → 2 dormitoare spatioase si bine proportionate → Dormitor matrimonial cu dressing → Dressinguri suplimentare si spatii de depozitare → 2 bai + grup sanitar _____________________________________________ LOCALIZARE : Pozitionat in zona Iancu Nicolae, unul dintre cele mai cautate repere rezidentiale din nordul Bucurestiului, apartamentul beneficiaza de acces rapid catre principalele puncte de interes: → Scoli internationale: American School, British School, Cambridge School → Baneasa Shopping City, Jolie Ville, restaurante si cafenele → Padurea Baneasa si zone de recreere → Zona de business Pipera – Barbu Vacarescu → Aeroportul Otopeni Zona este recunoscuta pentru comunitatea internationala, siguranta si calitatea vietii. _____________________________________________ DETALII FINANCIARE : → Apartament nr. 1, parter → Pret: 582.172 Euro + TVA → Comision 0% pentru cumparator → Posibilitate achizitie locuri de parcare subterane, contra-cost → Oferim asistenta gratuita prin brokeri de credite parteneri, pentru obtinerea celei mai avantajoase solutii de finantare _____________________________________________ PREDARE : → Termen estimat: Septembrie 2026 → Predare complet finisata, conform standardelor proiectului _____________________________________________ Nota: Suprafetele sunt preluate din documentatia tehnica a dezvoltatorului si pot exista mici diferente fata de masuratorile finale. _____________________________________________ Pentru prezentare completa, schite si detalii suplimentare si vizionari, va stam la dispozitie atat pe site-urile de specialitate, WhatsApp cat si telefonic.
Citește mai mult Citește mai puțin
Semidecomandat Nemobilat Curte Aer condiționat Ventiloconvectoare Bine întreținut (Bună)

Detalii apartament

ID anunț: 4055987 Actualizat în: 02 Aprilie 2026
Nr. camere: 3
Suprafață utilă: 116 mp
Suprafață utilă totală: 116 mp
Compartimentare: Semidecomandat
Etaj: Parter / 4
Nr. băi: 2
An construcție: 2026
Regim înălțime: P+4E

Istoric preț

Facilități

Pereți
Faianță Vopsea lavabilă
Podele
Gresie Parchet
Ușă intrare
Parchet Metal Lemn
Uși interior
Lemn
Stare interior
Stare bună
Izolații termice
Exterior
Ferestre cu geam termopan
Lemn Aluminiu
Contorizare
Contor gaz Apometre
Mobilat
Nemobilat
Diverse
Senzor de fum Telecomandă poartă acces auto
Alte spații utile
Terasă WC Serviciu
Facilități imobil
Lift Interfon Curte Videointerfon
Utilități
Gaze Curent Canalizare Apă Cablu Supraveghere video
Internet
Cablu Wireless Fibră optică
Climatizare
Aer condiționat Ventiloconvectoare
Amenajare străzi
Asfaltate Iluminat stradal Mijloace de transport în comun
Servicii imobil
Supraveghere video

Puncte de interes

Mijloace transport
transport
Jolie Ville Baneasa
Mijloace transport aprox. 430 m
transport
Aeroportul Internaţional Băneasa (Aurel Vlaicu) - LRBS (BBU)
Mijloace transport aprox. 1689 m
transport
Pipera Drumul Bisericii
Mijloace transport aprox. 1897 m
Școală
education
Mark Twain International School
Învățământ aprox. 146 m
education
British School of Bucharest
Învățământ aprox. 1189 m
education
Mark Twain
Învățământ aprox. 1276 m
education
Echilibria 1
Învățământ aprox. 1425 m
Recreere
shopping
Tia Supermarket Non-Stop
Supermarket/Mall aprox. 185 m
shopping
Jolie Ville Galleria
Supermarket/Mall aprox. 346 m
parks
Loc de joaca
Recreere aprox. 438 m
restaurants
Restaurant Tecadra
Restaurante aprox. 597 m

Proprietăți similare

Apartament cu 5 camere semidecomandat în Voluntari
601.532 €
Județul Ilfov, Voluntari
5 camere
178 mp
Parter
Apartament cu 4 camere în Central
532.620 €
Județul Ilfov, Voluntari
4 camere
145 mp
Etaj 4
Apartament cu 5 camere decomandat în Central
546.400 € + TVA
Județul Ilfov, Voluntari
5 camere
152,43 mp
Etaj 2
Apartament cu 4 camere decomandat în Ultracentral
532.600 € + TVA
Județul Ilfov, Voluntari
4 camere
142 mp
Etaj 2
Apartament cu 4 camere în Central
530.000 €
Județul Ilfov, Voluntari
4 camere
180 mp
Etaj 8
Apartament cu 3 camere în Central
570.000 €
Județul Ilfov, Voluntari
3 camere
101,3 mp
Etaj 8
Apartament cu 3 camere în Central
550.000 €
Județul Ilfov, Voluntari
3 camere
127 mp
Etaj 8
Apartament cu 4 camere în Nord
600.000 €
Județul Ilfov, Voluntari
4 camere
153 mp
Etaj 5
Apartament cu 4 camere în Central
557.999 €
Județul Ilfov, Voluntari
4 camere
180 mp
Etaj 3

Abonează-te la newsletter să fii primul care primește cele mai noi recomandări de proprietăți și sfaturi de la experți.