Apartament 2 camere, terasa, gradina| Parc Cismigiu I Metrou Eroilor I

325.000 € + TVA

Ştirbei Vodă, Bucureşti

Nr. camere:
2
Suprafață utilă:
72,1 mp
Etaj:
Parter / 6
An construcție:
2025
Nr. niveluri:
6

Descriere apartament

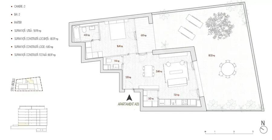
Va prezentăm un apartament modern și elegant, situat în inima Bucureștiului.Acest imobil reprezintă o oportunitate excelentă pentru cei care sunt în căutarea unui nou cămin într-o locație centrală și dinamică a capitalei. Apartamentul se vinde cu bucatarie montata. Apartamentul cu 3 camere este amplasat la parter si are suprafață utilă totala 72,10mp din care terasa 12,70mp la care se adauga gradina 99,30mp. Spațiul este optimizat pentru a oferi confort, funcționalitate si relaxare. Finisajele sunt de înaltă calitate, selectate pentru a crea un ambient plăcut și durabil. Detalii tehnice: – structura de rezistență este realizată cu cadre de beton armat, – izolația este realizată cu vată Bazaltică de 15 cm, – încălzirea și apa caldă sunt realizate cu ajutorul sistemelor de încălzire în condensație cu boiler (centrală de bloc), – parchet premium, – piatră naturală în băi, holuri și bucătărie, – obiecte sanitare premium, – tâmplărie de aluminiu Schuko cu sticlă low – e și geam tripan. Administrarea eficientă a complexului asigură o întreținere optimă a spațiilor comune și a facilităților. Imobilul este proiectat pentru o eficiență energetică ridicată, în vederea certificării GREEN HOME. Locația este ideală, oferind acces facil la mijloacele de transport în comun si se distinge prin proximitatea către numeroase puncte de interes, cum ar fi magazine, restaurante, parcuri, instituții educaționale și culturale, creând un echilibru perfect între viața urbană activă și spațiile de relaxare. Această proprietate este ideală pentru cei care caută un stil de viață urban, confortabil și sigur, într-unul dintre cele mai căutate cartiere ale capitalei. Pret apartament 325000 euro +tva Loc parcare subteran 30000 euro +tva Loc parcare suprateran 20000 euro + tva Apartamentul se poate vinde si mobilat ca in poze dar la un alt pret. Avem plăcerea de a vă invita să vizionați acest apartament, ce ar putea îndeplini cerințele dumneavoastră. Vă așteptam cu interes pentru a discuta detalii suplimentare și a explora împreună acest spațiu. Poze reale + poze cu rol de prezentare. Sipoteanu Oana VAUNT ID: 110572
Citește mai mult Citește mai puțin
Confort 1 Semidecomandat Calorifere Centrală imobil

Detalii apartament

ID anunț: 3512161 Actualizat în: 18 Martie 2026
Nr. camere: 2
Suprafață utilă: 72,1 mp
Suprafață utilă totală: 72,1 mp
Compartimentare: Semidecomandat
Confort: 1
Etaj: Parter / 6
Nr. băi: 2
An construcție: 2025
Regim înălțime: P+6E

Istoric preț

Facilități

Pereți
Vopsea lavabilă Faianță
Podele
Parchet Gresie
Ușă intrare
Parchet Metal
Uși interior
Celulare
Izolații termice
Exterior
Ferestre cu geam termopan
Aluminiu
Contorizare
Apometre Contor căldură Contor gaz
Facilități imobil
Videointerfon Interfon Lift
Utilități
Curent Apă Canalizare Supraveghere video
Sistem încălzire
Centrală imobil Calorifere
Internet
Fibră optică
Amenajare străzi
Iluminat stradal Mijloace de transport în comun Asfaltate
Servicii imobil
Administrare Pază Supraveghere video

Puncte de interes

Mijloace transport
transport
Statie RATB 226, 136
Mijloace transport aprox. 98 m
transport
Statia Casa Studentilor / Stirbei Voda, linia 126, 163, 168, 368, 226,85
Mijloace transport aprox. 318 m
transport
Casa Studentilor
Mijloace transport aprox. 342 m
transport
Casa Studentilor
Mijloace transport aprox. 344 m
Școală
education
Scoala de Muzica Nr.3
Învățământ aprox. 145 m
education
Gradinita Smiley
Învățământ aprox. 267 m
education
Gradinita MAPN
Învățământ aprox. 397 m
education
Liceul "Nicolae Tonitza"
Învățământ aprox. 457 m
Recreere
restaurants
Codrul Cosminului
Restaurante aprox. 13 m
parks
Piata Emil Cioran (Vergilius) (en)
Recreere aprox. 158 m
shopping
Shop & Go - Mega Image
Supermarket/Mall aprox. 671 m
shopping
Ami Non-Stop
Supermarket/Mall aprox. 837 m

Proprietăți similare

Apartament cu 4 camere decomandat, mobilat în Știrbei Vodă
299.000 €
București, Știrbei Vodă
4 camere
90 mp
Etaj 7 / 10
Apartament cu 3 camere semidecomandat în Știrbei Vodă
349.000 €
București, Știrbei Vodă
3 camere
139 mp
Parter / 1
Apartament cu 2 camere decomandat în Știrbei Vodă
325.000 € + TVA
București, Știrbei Vodă
2 camere
60 mp
Parter / 6
Apartament cu 4 camere decomandat, mobilat în Știrbei Vodă
299.000 €
București, Știrbei Vodă
4 camere
90,16 mp
Etaj 7 / 9
Apartament cu 3 camere decomandat, mobilat în P-ța Victoriei
298.000 €
București, P-ța Victoriei
3 camere
80 mp
Etaj 2
Apartament cu 2 camere decomandat, mobilat în Ultracentral
310.000 €
București, Ultracentral
2 camere
70 mp
Etaj 3
Apartament cu 5 camere decomandat, mobilat în P-ța Universității
350.000 €
București, P-ța Universității
5 camere
96 mp
Etaj 3
Apartament cu 4 camere decomandat, mobilat în Ultracentral
310.000 €
București, Ultracentral
4 camere
88 mp
Etaj 1
Apartament cu 3 camere în Central
308.760 € + TVA
București, Central
3 camere
84 mp
Etaj 2 / 11

Abonează-te la newsletter să fii primul care primește cele mai noi recomandări de proprietăți și sfaturi de la experți.