4 camere | Terasa | Gradina | Cismigiu I

450.000 €

Plevnei, Bucureşti

Nr. camere:
4
Suprafață utilă:
97,1 mp
Etaj:
Parter
An construcție:
2025

Descriere apartament

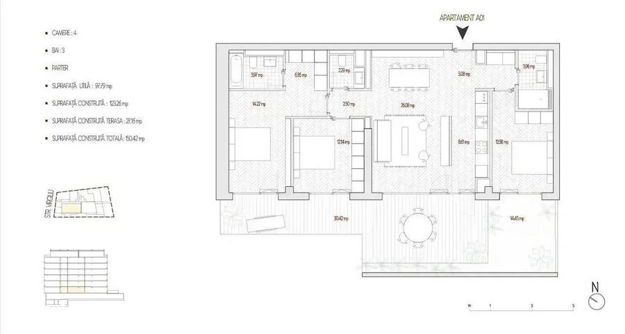
Cautati o locuinta spatioasa, care sa va ofere intimitatea si linistea unei case, dar cu toate avantajele si dinamismul vietii urbane? Va propun un apartament de vanzare cu 4 camere, situat intr-o zona centrala si extrem de bine conectata din Bucuresti. Aceasta proprietate se distinge imediat prin spatiile exterioare generoase pe care le ofera: o terasa perfecta pentru a savura cafeaua in diminetile cu soare si o curte privata unde va puteti relaxa in aer liber la finalul zilei. Spatiul interior a fost proiectat cu o atentie deosebita la detalii, oferind un echilibru excelent intre functionalitate, luminozitate si estetica. Incaperile aerisite va permit sa amenajati totul exact asa cum va doriti, pentru a reflecta stilul dumneavoastra personal. Indiferent daca priviti acest spatiu ca pe o viitoare resedinta permanenta pentru familia dumneavoastra sau ca pe o investitie imobiliara solida pe termen lung, calitatea materialelor folosite va va oferi siguranta si incredere deplina. Mai mult, cladirea este proiectata inteligent pentru o eficienta energetica ridicata, avand la baza standardele certificarii Green Home. Locatia va pune la dispozitie absolut tot ce aveti nevoie la doar cativa pasi distanta: de la magazine, parcuri si restaurante apreciate, pana la institutii educationale de top. Fiind aproape de metrou si de principalele linii de transport in comun, va bucurati de o mobilitate excelenta in fiecare zi. Deoarece proprietatea se preda la stadiul finisat, dar nemobilat, detaliile despre un spatiu complet mobilat si utilat pot fi discutate punctual, lasandu-va libertatea de a alege designul interior preferat. Proprietatea reprezinta un apartament cu 4 camere pozitionat la parterul unui complex modern, avand o suprafata utila totala de 123,56 mp. Acest spatiu include o terasa de 27,20 mp, completata de o curte cu spatiu verde exclusiv de 16,80 mp. Compartimentarea este optimizata pentru confort maxim, iar locuinta se preda la stadiul finisat, nemobilata. Apartamentul beneficiaza de dotari si finisaje premium: parchet triplustratificat din stejar (13,5 mm), placi ceramice portelanate, obiecte sanitare de inalta calitate (Hansgrohe, Geberit) si tamplarie din aluminiu cu geam tripan si protectie solara. Confortul termic este garantat de un sistem eficient racordat la centrala de bloc, completat de termostate individuale si unitati de climatizare multisplit. Cladirea ofera izolatie termica superioara cu vata bazaltica si un cadru sigur din beton armat. Parcare: Subterana (30.000 + TVA) Supraterana (20.000 + TVA) Pret: 450.000 + TVA VAUNT ID: 110743
Citește mai mult Citește mai puțin
Calorifere Centrală imobil

Detalii apartament

ID anunț: 3746432 Actualizat în: 11 Martie 2026
Nr. camere: 4
Suprafață utilă: 97,1 mp
Suprafață utilă totală: 97,1 mp
Etaj: Parter
An construcție: 2025

Istoric preț

Facilități

Pereți
Vopsea lavabilă Faianță
Podele
Parchet Gresie
Ușă intrare
Parchet Metal
Uși interior
Celulare
Izolații termice
Exterior
Ferestre cu geam termopan
Aluminiu
Contorizare
Apometre Contor căldură Contor gaz
Facilități imobil
Videointerfon Interfon Lift
Sistem încălzire
Centrală imobil Calorifere
Internet
Fibră optică
Amenajare străzi
Iluminat stradal Mijloace de transport în comun Asfaltate
Servicii imobil
Administrare Pază Supraveghere video

Puncte de interes

Mijloace transport
transport
Statie RATB 226, 136
Mijloace transport aprox. 98 m
transport
Statia Casa Studentilor / Stirbei Voda, linia 126, 163, 168, 368, 226,85
Mijloace transport aprox. 318 m
transport
Casa Studentilor
Mijloace transport aprox. 342 m
transport
Casa Studentilor
Mijloace transport aprox. 344 m
Școală
education
Scoala de Muzica Nr.3
Învățământ aprox. 145 m
education
Gradinita Smiley
Învățământ aprox. 267 m
education
Gradinita MAPN
Învățământ aprox. 397 m
education
Liceul "Nicolae Tonitza"
Învățământ aprox. 457 m
Recreere
restaurants
Codrul Cosminului
Restaurante aprox. 13 m
parks
Piata Emil Cioran (Vergilius) (en)
Recreere aprox. 158 m
shopping
Shop & Go - Mega Image
Supermarket/Mall aprox. 671 m
shopping
Ami Non-Stop
Supermarket/Mall aprox. 837 m

Proprietăți similare

Apartament cu 4 camere în Plevnei
450.000 €
București, Plevnei
4 camere
123,26 mp
Parter
Apartament cu 4 camere decomandat în Plevnei
475.000 €
București, Plevnei
4 camere
Etaj 5
Apartament cu 4 camere semidecomandat în P-ța Victoriei
490.000 €
București, P-ța Victoriei
4 camere
175 mp
Parter
Apartament cu 4 camere circular, mobilat în Calea Victoriei
490.000 €
București, Calea Victoriei
4 camere
110 mp
Etaj 1 / 3
Apartament cu 4 camere decomandat, mobilat în P-ța Romană
419.000 €
București, P-ța Romană
4 camere
100 mp
Etaj 4
Apartament cu 4 camere, mobilat în Victoriei
450.000 €
București, Victoriei
4 camere
137 mp
Etaj 1 / 2
Apartament cu 3 camere decomandat, mobilat în Central
420.000 €
București, Central
3 camere
78 mp
Etaj 1
Apartament cu 4 camere decomandat, mobilat în Victoriei
490.000 €
București, Victoriei
4 camere
110,33 mp
Parter
Apartament cu 6 camere circular în P-ța Operei
479.988 €
București, P-ța Operei
6 camere
250 mp
Etaj 1

Abonează-te la newsletter să fii primul care primește cele mai noi recomandări de proprietăți și sfaturi de la experți.