2 camere Ultracentral Tepes Voda 152

185.000 € + TVA

Matei Voievod, Bucureşti

Nr. camere:
2
Suprafață utilă:
52,24 mp
Etaj:
1 / 3
An construcție:
2026
Nr. niveluri:
3

Descriere apartament

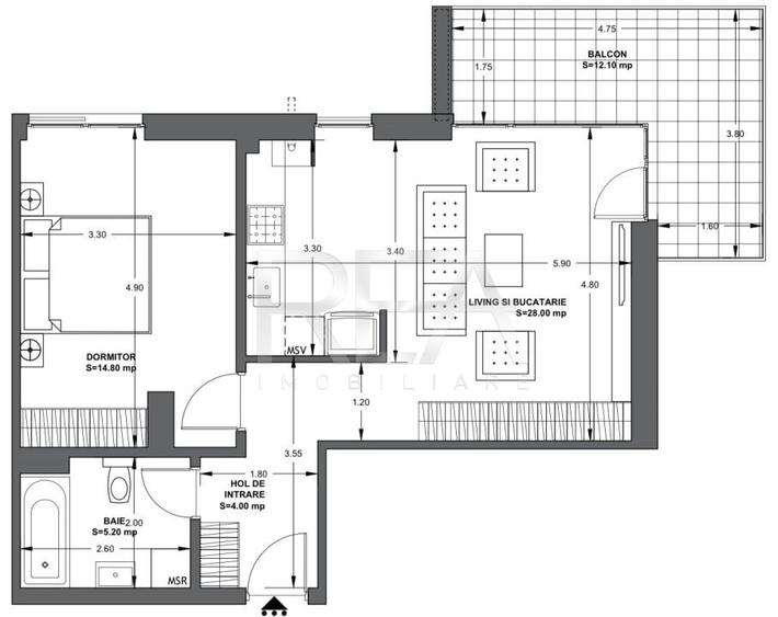
R.E.A. Imobiliare Apartament 2 camere, decomandat, orientat SUD - EST, la etajul 1 din 3, in Tepes Voda 152 - proiect 2025, la doar cativa pasi de Parcul National si Vatra Luminoasa, cu acces rapid atat catre Piata Victoriei, cat si catre Universitate. Pretul afisat este + TVA, cu optiunea de taxare inversa la achizitie. - Finisaje la alegere, complete, necesita doar mobilare si utilare. - Suprafata totala de 64,34 mp: 52,24 mp utili + 12,1 mp balcon. - Compartimentare: dormitor, living + bucatarie, baie, hol, balcon. - Incalzire prin pardoseala, centrala proprie. - Un loc de parcare subteran disponibil la 25.000 EUR + TVA. Acces rapid la transport public: 3 minute pana la statiile STB, 8 minute pana la metrou Piata Iancului sau metrou Piata Muncii. Contacteaza-ne pentru detalii suplimentare si programarea unei vizionari private. Cod proprietate P8172
Citește mai mult Citește mai puțin
Decomandat Nemobilat Curte comună Aer condiționat Centrală proprie

Detalii apartament

ID anunț: 456459 Actualizat în: 13 Martie 2026
Nr. camere: 2
Suprafață utilă: 52,24 mp
Suprafață utilă totală: 52,24 mp
Compartimentare: Decomandat
Etaj: Etaj 1 / 3
Nr. băi: 1
An construcție: 2026
Regim înălțime: P+3E

Istoric preț

Facilități

Pereți
Vopsea lavabilă Faianță
Podele
Parchet Gresie
Ușă intrare
Parchet Metal Lemn
Uși interior
Lemn
Izolații termice
Exterior Bloc izolat termic
Contorizare
Apometre Contor căldură Contor gaz
Mobilat
Nemobilat
Alte spații utile
Terasă
Facilități imobil
Videointerfon Lift Spații agrement Curte comună
Utilități
Curent Apă Canalizare Gaze
Sistem încălzire
Centrală proprie
Climatizare
Aer condiționat
Amenajare străzi
Asfaltate Iluminat stradal Mijloace de transport în comun

Puncte de interes

Mijloace transport
transport
Statia Gheorghe Petrascu, Liniile 135, 311, 330, 1
Mijloace transport aprox. 121 m
transport
Piata Hurmuzachi
Mijloace transport aprox. 148 m
transport
Gheorghe Petrascu
Mijloace transport aprox. 179 m
transport
Statia Piata Hurmuzachi linia 1,40,56
Mijloace transport aprox. 204 m
Școală
education
Gradinita catolica "Sfanta Cruce"
Învățământ aprox. 131 m
education
Scoala nr. 70
Învățământ aprox. 178 m
education
Scoala cu clasele I-VIII, Nr. 70
Învățământ aprox. 184 m
education
Sediu - Crucea Rosie Filiala Sectorului 3
Învățământ aprox. 404 m
Recreere
restaurants
Sultan
Restaurante aprox. 59 m
parks
Piata Hurmuzachi / Piata Muncii (fosta Bariera Vergului)
Recreere aprox. 208 m
shopping
Olimpia tower
Supermarket/Mall aprox. 225 m
shopping
Mega Image Piata Muncii
Supermarket/Mall aprox. 233 m

Proprietăți similare

Apartament cu 2 camere decomandat în Matei Voievod
185.000 €
București, Matei Voievod
2 camere
52 mp
Etaj 1 / 3
Apartament cu 2 camere semidecomandat în Matei Voievod
171.500 €
București, Matei Voievod
2 camere
42 mp
Etaj 2 / 3
Apartament cu 3 camere semidecomandat în Matei Voievod
199.790 €
București, Matei Voievod
3 camere
87 mp
Etaj 3 / 3
Apartament cu 2 camere semidecomandat în Matei Voievod
198.400 € + TVA
București, Matei Voievod
2 camere
50,18 mp
Etaj 1 / 3
Apartament cu 2 camere semidecomandat, mobilat în Romană
199.990 €
București, Romană
2 camere
67 mp
Parter
Apartament cu 3 camere semidecomandat în P-ța Victoriei
179.490 €
București, P-ța Victoriei
3 camere
68 mp
Etaj 1 / 8
Apartament cu 3 camere decomandat în Ultracentral
200.000 €
București, Ultracentral
3 camere
96 mp
Etaj 1
Apartament cu 3 camere decomandat în Cișmigiu
200.000 €
București, Cișmigiu
3 camere
109 mp
Parter
Apartament cu 2 camere decomandat, mobilat în Universitate
179.000 €
București, Universitate
2 camere
50 mp
Etaj 8

Abonează-te la newsletter să fii primul care primește cele mai noi recomandări de proprietăți și sfaturi de la experți.