Cismigiu | 4 camere | RS2 | Decomandat | 111mp | B13044

205.000 €

Cişmigiu, Bucureşti

Nr. camere:
4
Suprafață utilă:
102 mp
Etaj:
1 / 7
An construcție:
1947
Nr. niveluri:
7

Descriere apartament

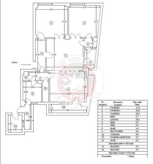
Vanzare 4 camerePret: 205000 EuroZona: Kogalniceanu, BucurestiStrada: Bd Schitu MagureanuID oferta: Pyf001B13044Acasa incepe cu un sentiment! Poate fi o lumina calda intr-o dupa-amiaza linistita, un balcon cu vedere sau o bucatarie unde iti savurezi cafeaua de dimineata.Imagineaza-ti locuinta perfecta, care reflecta personalitatea ta si raspunde nevoilor tale zilnice.Echipa PYF REAL ESTATE te ajuta sa gasesti acel loc special pe care il poti numi acasa. Portofoliul nostru cuprinde proprietati atent selectate, ideale pentru tine si familia ta.Localizare: In zona Kogalniceanu, in apropiere de parcul Cismigiu, una dintre cele mai cautate zone din Bucuresti, cu acces rapid la mijloace de transport in comun (scoala gradinita, centru universitar, restaurant pub, parc, ultracentral, hotel, benzinarie, intersectie circulata, trafic pietonal, fastfood, supermarket, banca, zona comerciala, autobuz), scoli, magazine, parcuri si centre comerciale.Detalii proprietate:Tip locuinta: ApartamenteTip operatiune: vanzareNumar camere: 4 camere (3 dormitoare)Suprafata utila: 102 mpSuprafata totala: 111 mpEtaj: 1 7Compartimentare: decomandatConfort: 1An constructie : 1947An renovare : 2025Tip imobil: blocIncalzire : Centrala Termica proprieDotari: calorifere: da; ferestre: pvc; incalzire: centrala proprie; pereti: faianta, lavabil; podele: parchet, gresie; usa intrare: metalBai: 2Balcoane: 2 (0 mp)Bucatarii: 1 ( inchisa, chicineta, da )Finisaje: calorifere: da; ferestre: pvc; incalzire: centrala proprie; pereti: faianta, lavabil; podele: parchet, gresie; usa intrare: metalMobilare : Complet nemobilat si neutilatPodele: gresie, parchet | Pereti: lavabil, faianta | Ferestre: pvcStare generala: Stare excelentaUsa intrare: metalVedere: mixtaDestinatie: birou sau rezidentialaAcces rapid la mijloace de transport in comun ( autobuze: [ 205, 642 ], tramvaie: [ 44 ] )In apropiere: [ Colegiul National Gheorghe Lazar, Gradinita 248, I.N.M, Policlinica MApN, Parcul Cismigiu ]Parcare: posibilitate in strada (1 locuri)Apartamente pe palier: 3Siguranta: interfon - interfon, lift - liftIzolatii: interiorAgent responsabil: George DImportant de stiut:Vizionarile se realizeaza in baza unui contract de prestari servicii, semnat intre client si agentie. Este necesara prezentarea unui act de identitate. Neprezentarea acestuia poate duce la anularea sau neprogramarea percepe comision din partea cumparatorului conform politicii Pyf Real EstateDin cauza numarului mare de oferte si a fluctuatiei pietei imobiliare informatiile din oferta pot suferi modificari atat in sens apreciativ, cat si in sens depreciativ, de asemenea, este posibil sa nu mai fie de actualitate la momentul prezentarii. Pentru clarificarea acestor aspecte va rugam solicitati actualizarea ofertei ofertelor dorite!Alege PYF REAL ESTATE - partenerul tau de incredere in imobiliare.Transforma visul tau in realitate - contacteaza-ne acum!
Citește mai mult Citește mai puțin
Decomandat

Detalii apartament

ID anunț: 3807490 Actualizat în: 19 Martie 2026
Nr. camere: 4
Suprafață utilă: 102 mp
Suprafață utilă totală: 102 mp
Compartimentare: Decomandat
Etaj: Etaj 1 / 7
An construcție: 1947
Regim înălțime: P+7E

Istoric preț

Puncte de interes

Mijloace transport
transport
Statia Piaţa Mihail Kogălniceanu, linii: 61, 69, 90, 91, 122, 137, 138, 268, 336, 601.
Mijloace transport aprox. 38 m
transport
statia Piaţa Mihail Kogălniceanu, linii: 61, 66, 69, 70, 85, 90, 91, 92, 336, 601.
Mijloace transport aprox. 68 m
transport
Statia Piaţa Mihail Kogălniceanu
Mijloace transport aprox. 74 m
transport
Statia Pod Izvor, linia 124, N115, N120, N122, 104, 123
Mijloace transport aprox. 148 m
Școală
education
Gradinita nr. 73
Învățământ aprox. 128 m
education
Clinica de Protetica si Ocluzologie si Clinica de Pedodontie
Învățământ aprox. 147 m
education
Facultatea de Sociologie şi Asistenţă Socială
Învățământ aprox. 170 m
education
Facultatea de Sociologie si Asistenta Sociala
Învățământ aprox. 172 m
Recreere
restaurants
Restaurant Excalibur - Locul Cavalerilor
Restaurante aprox. 25 m
parks
Loc de joaca
Recreere aprox. 94 m
shopping
Mega Image Elisabeta Non-Stop
Supermarket/Mall aprox. 179 m
shopping
Mega Image Brezoianu
Supermarket/Mall aprox. 640 m

Proprietăți similare

Apartament cu 3 camere, mobilat în Cișmigiu
205.000 €
București, Cișmigiu
3 camere
102 mp
Etaj 1
Apartament cu 3 camere semidecomandat în Cișmigiu
225.000 €
București, Cișmigiu
3 camere
80 mp
Parter / 6
Apartament cu 3 camere decomandat, mobilat în Cișmigiu
190.000 €
București, Cișmigiu
3 camere
72,2 mp
Etaj 1
Apartament cu 3 camere decomandat în Cișmigiu
195.000 €
București, Cișmigiu
3 camere
54 mp
Etaj 7
Apartament cu 4 camere semidecomandat în Cișmigiu
210.000 €
București, Cișmigiu
4 camere
83 mp
Parter
Apartament cu 2 camere decomandat, mobilat în Cișmigiu
220.000 €
București, Cișmigiu
2 camere
60 mp
Etaj 1 / 2
Apartament cu 3 camere decomandat, mobilat în Cișmigiu
189.000 €
București, Cișmigiu
3 camere
92 mp
Etaj 8
Apartament cu 2 camere decomandat, mobilat în Cișmigiu
198.500 €
București, Cișmigiu
2 camere
50 mp
Etaj 4 / 8
Apartament cu 2 camere decomandat, mobilat în Cișmigiu
199.000 €
București, Cișmigiu
2 camere
50,75 mp
Etaj 4 / 8

Abonează-te la newsletter să fii primul care primește cele mai noi recomandări de proprietăți și sfaturi de la experți.