Apartament 2 loc de parcare subteran Torontalului

123.000 €

Torontalului, Timişoara

Nr. camere:
2
Suprafață utilă:
53 mp
Etaj:
6

Descriere apartament

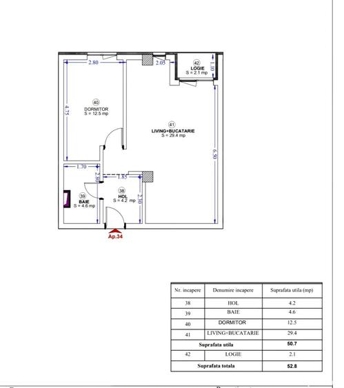
De vanzare apartament 2 camere ,52,8 mp in calea Torontalului, etaj 2 6. Format din : Living + bucatarie Dormitor Baie ,Hol si logie. Caracteristici: Constructie pe cadre cu zidarie din caramida de 25 cm ,izolatie exterioara din polistiren de 10 cm ,geamurile termopan cu sticla tripan. Pardoseala este din SPC (parchet ceramic ) de 7 mm. In baie gresia si faianta-travertin. Usi din MDF . Clima Smart 12000 btu. Cabina dusi walk in si baterie cu termostat. Incalzirea se realizeaza prin pardoseala. Apartamentul detine si un loc de parcare subteran de 16,5 mp inclus in pret ( langa intrare la lifturi). Blocul detine 2 lifturi si este prevazut cu acces cu bariera si supraveghere video. Pret. 123000 euro Telefon. ID anun? : 1758796673
Citește mai mult Citește mai puțin
Nemobilat Aer condiționat Centrală proprie Bine întreținut (Bună)

Detalii apartament

ID anunț: 1472354 Actualizat în: 01 Aprilie 2026
Nr. camere: 2
Suprafață utilă: 53 mp
Suprafață utilă totală: 53 mp
Etaj: Etaj 6

Istoric preț

Facilități

Pereți
Vopsea lavabilă
Podele
Gresie Parchet
Ușă intrare
Parchet Metal Lemn
Uși interior
Lemn
Stare interior
Stare bună
Izolații termice
Exterior
Ferestre cu geam termopan
PVC
Contorizare
Contor gaz Apometre Contor căldură
Mobilat
Nemobilat
Facilități imobil
Interfon Lift
Sistem încălzire
Centrală proprie
Internet
Cablu
Climatizare
Aer condiționat
Amenajare străzi
Iluminat stradal Mijloace de transport în comun Asfaltate

Proprietăți similare

Apartament cu 2 camere decomandat în Torontalului
133.000 €
Timișoara, Torontalului
2 camere
55 mp
Parter
Apartament cu 3 camere decomandat, mobilat în Torontalului
125.000 €
Timișoara, Torontalului
3 camere
52 mp
Etaj 4
Apartament cu 2 camere în Torontalului
113.400 €
Timișoara, Torontalului
2 camere
60,76 mp
Etaj 2
Apartament cu 3 camere decomandat în Torontalului
125.000 €
Timișoara, Torontalului
3 camere
55 mp
Etaj 1
Apartament cu 3 camere semidecomandat în Torontalului
135.000 €
Timișoara, Torontalului
3 camere
72,67 mp
Etaj 3
Apartament cu 2 camere decomandat, mobilat în Torontalului
124.990 €
Timișoara, Torontalului
2 camere
52 mp
Etaj 4
Apartament cu 2 camere decomandat în Torontalului
111.000 € + TVA
Timișoara, Torontalului
2 camere
53 mp
Parter
Apartament cu 2 camere decomandat în Torontalului
119.521 € + TVA
Timișoara, Torontalului
2 camere
56 mp
Parter
Apartament cu 2 camere decomandat în Torontalului
114.509 € + TVA
Timișoara, Torontalului
2 camere
53 mp
Parter

Abonează-te la newsletter să fii primul care primește cele mai noi recomandări de proprietăți și sfaturi de la experți.