Apartament 3 camere, parter inalt, zona Lipovei, Timisoara, jud.Timis

143.000 €

Lipovei, Timişoara

Nr. camere:
3
Suprafață utilă:
72 mp
Etaj:
Parter / 4
An construcție:
1980
Nr. niveluri:
4

Descriere apartament

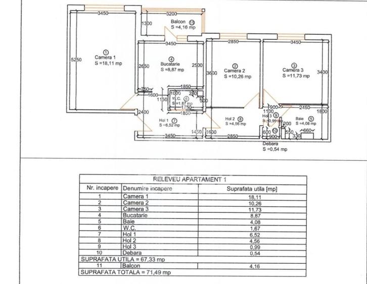
Agentia imobiliara APOSTU ESTATE va propune spre vanzare un apartament cu 3 camere, decomandat, parter inalt/4, situat in zona Lipovei din Timisoara, judetul Timis. Blocul este anvelopat exterior si detine acoperis cu tigla. Apartamentul este amplasat la parterul inalt al imobilului si are o suprafata utila de 67,33 mp plus balcon inchis de 4,16 mp. Confortul termic se realizeaza prin intermediul centralei proprii pe gaz cu sistem de incalzire prin calorifere. Usa de acces este metalica si ferestrele sunt din tamplarie PVC cu geamuri termopan. Compartimentare: - hol acces - bucatarie cu iesire spre balcon inchis - living transformat in dormitor -camera -camera - baie cu cada Apartamentul a fost imbunatatit de catre proprietar prin montarea centralei proprii pe gaz in 2024, a fost zugravit recent si detine coloana de scurgere separata precum si 2 boxe de depozitare la subsol. Proprietatea se vinde cum se vede in imagini (posibil fara anumite piese de mobiier) si este o varianta ideala pentru familii, cuplu sau investitie. Vecinatati: Restaurant Pescada la 2 min de mers pe jos, scoala generala nr.7 la 9 min de mers pe jos, magazine,banci,farmacii la 3 min de mers pe jos, Pepco, Gym One 6 la 15 min de mers pe jos, Piata Noua la 7 min de mers pe jos, Iulius Mall la 10 min de mers pe jos, Piata Unirii la 10 min cu masina. Agentia imobiliara Apostu Estate va ofera consultanta bancara gratuita prin intermediul colaboratorilor nostri pentru alegerea celui mai potrivit tip de credit, astfel incat tu sa devi noul proprietar al acestui apartament. Va asteptam cu drag la o vizionare! Id Intern: CP2930168
Citește mai mult Citește mai puțin
Confort 1 Decomandat Mobilat Calorifere Centrală proprie Bine întreținut (Bună)

Detalii apartament

ID anunț: 3526108 Actualizat în: 12 Martie 2026
Nr. camere: 3
Suprafață utilă: 72 mp
Suprafață utilă totală: 72 mp
Compartimentare: Decomandat
Confort: 1
Etaj: Parter / 4
Nr. băi: 1
An construcție: 1980
Regim înălțime: P+4E

Istoric preț

Facilități

Jaluzele
Verticale
Pereți
Faianță Vopsea lavabilă
Podele
Gresie Parchet
Ușă intrare
Parchet Metal Lemn
Uși interior
Lemn
Stare interior
Stare bună
Izolații termice
Exterior
Contorizare
Apometre Contor căldură Contor gaz
Bucătărie
Mobilată Utilată
Mobilat
Mobilat
Electrocasnice
Aragaz Frigider Hotă
Facilități imobil
Acoperiș Interfon
Utilități
Curent Apă Canalizare Gaze Aragaz / Plită Frigider
Sistem încălzire
Calorifere Centrală proprie
Amenajare străzi
Iluminat stradal Mijloace de transport în comun Asfaltate Betonate

Puncte de interes

Mijloace transport
transport
Statie Ion Ionescu de la Brad T14
Mijloace transport aprox. 391 m
transport
Sf. Apostoli Petru si Pavel
Mijloace transport aprox. 519 m
transport
Statie Apostoli Petru si Pavel T14, A40
Mijloace transport aprox. 565 m
transport
Statie Apostoli Petru si Pavel E2
Mijloace transport aprox. 597 m
Școală
education
Scoala Generala Nr. 7 "Sfanta Maria"
Învățământ aprox. 533 m
education
Scoala Gimnaziala nr. 7 Sfanta Maria
Învățământ aprox. 533 m
education
Gradinita Winnie The Pooh
Învățământ aprox. 662 m
education
Kids Club Allegria
Învățământ aprox. 750 m
Recreere
parks
Teren sportiv
Recreere aprox. 238 m
restaurants
Franceasca
Restaurante aprox. 285 m
shopping
Penny market
Supermarket/Mall aprox. 754 m
shopping
Kaufland
Supermarket/Mall aprox. 797 m

Proprietăți similare

Apartament cu 3 camere decomandat, mobilat în Lipovei
145.000 €
Timișoara, Lipovei
3 camere
60 mp
Etaj 8 / 11
Apartament cu 4 camere decomandat, mobilat în Lipovei
149.999 €
Timișoara, Lipovei
4 camere
77,44 mp
Etaj 3 / 4
Apartament cu 4 camere decomandat în Lipovei
147.499 €
Timișoara, Lipovei
4 camere
77 mp
Etaj 3
Apartament cu 3 camere semidecomandat, mobilat în Lipovei
154.998 €
Timișoara, Lipovei
3 camere
70 mp
Etaj 8
Apartament cu 4 camere decomandat, mobilat în Lipovei
151.990 €
Timișoara, Lipovei
4 camere
80 mp
Etaj 3 / 4
Apartament cu 3 camere decomandat, mobilat în Lipovei
132.000 €
Timișoara, Lipovei
3 camere
70 mp
Etaj 4 / 4
Apartament cu 3 camere semidecomandat, mobilat în Lipovei
150.000 €
Timișoara, Lipovei
3 camere
62 mp
Etaj 7 / 11
Apartament cu 3 camere semidecomandat, mobilat în Lipovei
139.999 €
Timișoara, Lipovei
3 camere
67 mp
Etaj 2
Apartament cu 3 camere decomandat, mobilat în Lipovei
130.000 €
Timișoara, Lipovei
3 camere
60 mp
Etaj 4 / 4

Abonează-te la newsletter să fii primul care primește cele mai noi recomandări de proprietăți și sfaturi de la experți.