17 ore în urmă
9
- Proprietar
- Comision 0%
Vand apartament cu 3 camere, situat la etajul 2 din 4, in zona Lipovei
93.000 €
Lipovei, Timișoara
Descriere
Raportează anunț
Sesizează o problemă
Vand apartament cu 3 camere, situat la etajul 2 din 4, in zona Lipovei
Vand apartament cu 3 camere, situat la etajul 2 din 4, in zona Lipovei
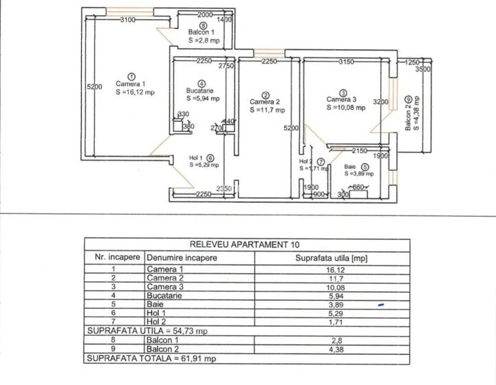
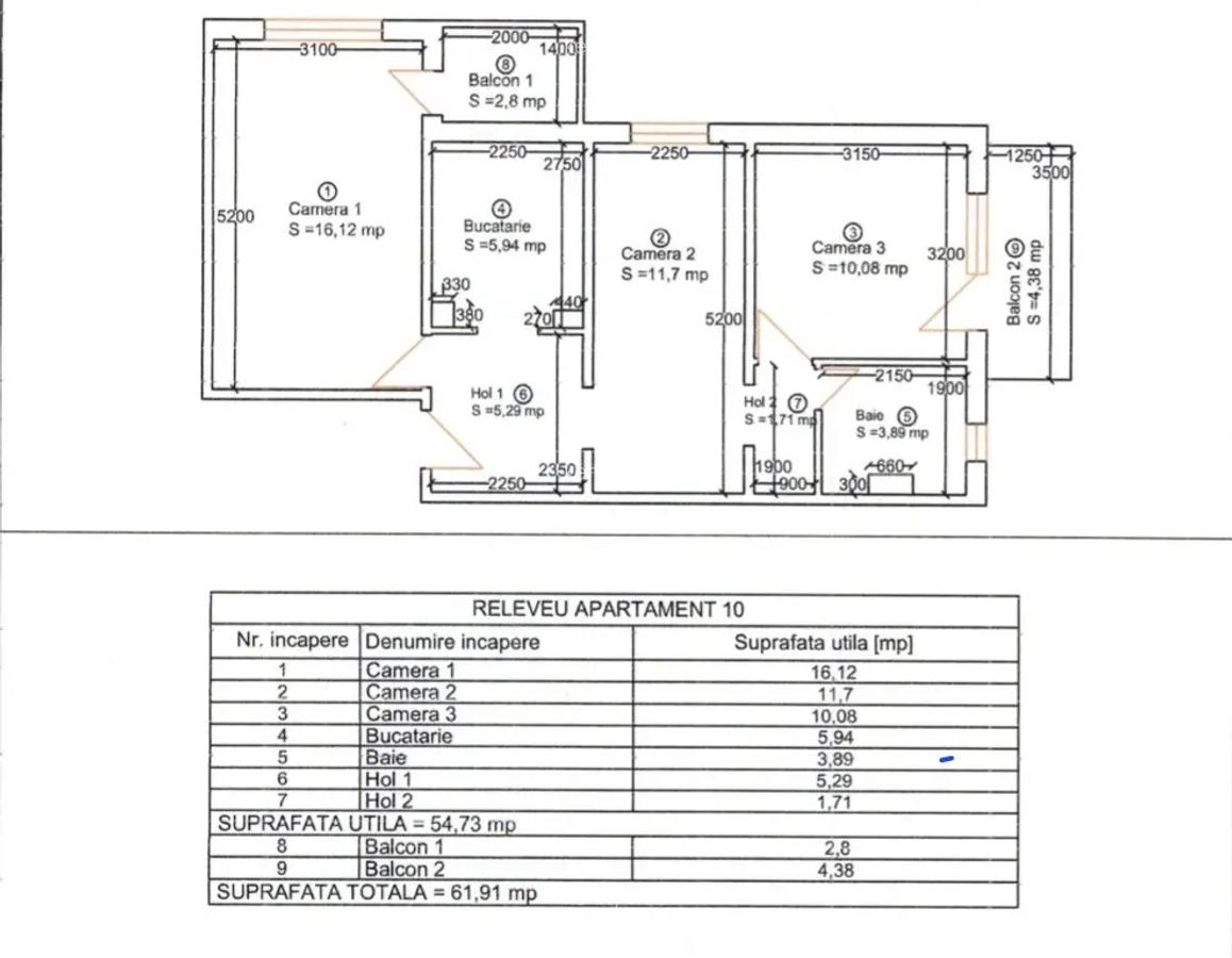
ANUN? Proprietar Vand apartament cu 3 camere, situat la etajul 2 din 4, in zona Lipovei. Locuin?a are o suprafa?a utila de 55 mp ?i dispune de doua balcoane generoase, in total 7 mp, perfecte pentru relaxare, sau depozitare. Apartamentul are centrala proprie, instala?ia electrica este schimbata, iar ferestrele sunt cu geam termopan. Am inceput renovarea, insa am decis sa o opresc pentru ca viitorul proprietar sa poata amenaja locuin?a exact cum i?i dore?te. Etajul 2 4 este ideal u?or accesibil ?i cu un confort termic excelent. Apartamentul este amplasat intr-o zona foarte buna, aproape de Iulius Mall, pie?e, ?coli, gradini?e ?i magazine, oferind acces rapid la toate punctele de interes. Pentru mai multe detalii, ma pute?i contacta. ID anun?
Citește mai mult
Citește mai puțin
ID anunț: 10818184
Actualizat în: 16 Noiembrie 2025
Nr. camere:
3
Suprafață utilă:
55 mp
Suprafață utilă totală:
55 mp
Etaj:
Etaj 4
Utilități
Utilități
Apă
Proprietăți similare
Abonează-te la newsletter să fii primul care primește cele mai noi recomandări de proprietăți și sfaturi de la experți.
Căutări similare
- Apartamente de vânzare în Lipovei
- Apartamente de vânzare în Timișoara
- Apartamente de vânzare în Girocului
- Apartamente de vânzare în Torontalului
- Apartamente de vânzare în Central
- Apartamente de vânzare în Aradului
- Apartamente de vânzare în Șagului
- Apartamente de vânzare în Braytim
- Apartamente de vânzare în Soarelui
- Apartamente de vânzare în Dâmbovița
- Apartamente de vânzare în Circumvalațiunii
- Apartamente de vânzare în Dacia