Apartament 3 camere, decomandat, etajul 4 din 4, cu pod, Girocului, comision 0%

110.000 €

Girocului, Timişoara

Nr. camere:
3
Suprafață utilă:
65 mp
Etaj:
4 / 4
An construcție:
1985
Nr. niveluri:
4

Descriere apartament

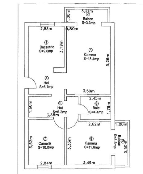
Agenția Imobiliară AB CASA vă propune spre vânzare, FĂRĂ COMISION, un apartament cu 3 camere și 2 balcoane, decomandat, aflat la etajul 4 al unui bloc cu 4 etaje și pod, situat în zona Girocului. Apartamentul a fost construit în anul 1985 și are o suprafață utilă de 65,3 mp, la care se adaugă 2 balcoane, închise cu geam termopan. Proprietatea, cu vedere pe 3 părți, cuprinde hol de acces, bucătărie utilată, cameră de zi cu balcon, hol de tranzit, 2 dormitoare (unul cu balcon) și o baie cu geam. Inițial a existat și a doua baie, care a fost desființată, dar poate fi refăcută. Locuința are și o boxă, care nu este menționată în CF. Apartamentul a fost renovat recent, baia și bucătăria au fost placate cu gresie și faianță. Toate ușile au fost schimbate, iar geamurile sunt de tip termopan, cu rame din PVC. Imobilul se vinde mobilat și utilat, așa cum se poate vedea și în imaginile de prezentare. Încălzirea și apa caldă se realizează prin intermediul centralei termice proprii, pe gaz, conectată la instalația de cupru și calorifere de oțel. Confortul termic se realizează și cu un aparat de aer condiționat. Strada este asfaltată și iluminată, cu acces facil la mijloacele de transport în comun. Proprietarii acceptă orice fel de credit bancar. Obiective în apropiere: Liceul Tehnologic Azur, Liceul Teoretic Special Iris, Liceul Waldorf, Școala Gimnazială nr. 25, Școala Al Sundus, Școala Gimnazială nr. 30, Spitalul Județean, Carrefour, Parcul Lidia, McDonald’s, Kaufland, Lidl, piață, creșă, grădinițe, bănci, restaurante, cafenele, farmacii, magazine etc. Preț 110.000 euro, negociabil Telefon:
Citește mai mult Citește mai puțin
Confort 1 Decomandat Mobilat Aer condiționat Calorifere Centrală proprie Renovat

Detalii apartament

ID anunț: 3618812 Actualizat în: 09 Martie 2026
Nr. camere: 3
Suprafață utilă: 65 mp
Suprafață utilă totală: 65 mp
Compartimentare: Decomandat
Confort: 1
Etaj: Etaj 4 / 4
Nr. băi: 1
An construcție: 1985
Regim înălțime: P+4E

Istoric preț

Facilități

Pereți
Vopsea lavabilă Faianță
Podele
Gresie Parchet
Ușă intrare
Parchet Metal PVC
Uși interior
Panel PVC
Stare interior
Renovat
Ferestre cu geam termopan
PVC
Contorizare
Contor gaz Apometre
Bucătărie
Mobilată Utilată
Mobilat
Mobilat
Electrocasnice
Mașină de spălat Frigider Aragaz Hotă
Alte spații utile
Debara
Facilități imobil
Acoperiș Interfon
Utilități
Gaze Curent Canalizare Apă Cablu Mașină de spălat rufe Frigider Aragaz / Plită
Sistem încălzire
Calorifere Centrală proprie
Internet
Cablu Fibră optică
Climatizare
Aer condiționat
Amenajare străzi
Asfaltate Iluminat stradal Mijloace de transport în comun

Puncte de interes

Mijloace transport
transport
Statie Maresal C-tin Prezan T15, T19
Mijloace transport aprox. 86 m
transport
Statie Maresal C-tin Prezan bucla T15, T19
Mijloace transport aprox. 276 m
transport
Bucla Versului
Mijloace transport aprox. 307 m
transport
Statie Mures E3
Mijloace transport aprox. 322 m
Școală
education
Colegiul Tehnic Azur
Învățământ aprox. 160 m
education
COLEGIUL TEHNIC "AZUR"
Învățământ aprox. 170 m
education
Campus scolar Colegiul Tehnic Azur
Învățământ aprox. 204 m
education
Palatul Copiilor
Învățământ aprox. 260 m
Recreere
shopping
Profi
Supermarket/Mall aprox. 195 m
parks
Teren sportiv
Recreere aprox. 207 m
restaurants
Cantina La Dama (en)
Restaurante aprox. 212 m
shopping
Lidl
Supermarket/Mall aprox. 400 m

Proprietăți similare

Apartament cu 3 camere în Girocului
119.000 €
Timișoara, Girocului
3 camere
86 mp
Etaj 2 / 2
Apartament cu 3 camere decomandat, mobilat în Girocului
110.000 €
Timișoara, Girocului
3 camere
67 mp
Parter
Apartament cu 2 camere decomandat, mobilat în Girocului
100.000 €
Timișoara, Girocului
2 camere
50 mp
Etaj 1
Apartament cu 2 camere semidecomandat, mobilat în Girocului
108.000 €
Timișoara, Girocului
2 camere
50,2 mp
Etaj 1
Apartament cu 3 camere semidecomandat, mobilat în Girocului
120.000 €
Timișoara, Girocului
3 camere
65 mp
Parter / 4
Apartament cu 2 camere decomandat, mobilat în Girocului
104.999 €
Timișoara, Girocului
2 camere
51 mp
Etaj 1 / 4
Apartament cu 2 camere semidecomandat în Girocului
111.600 €
Timișoara, Girocului
2 camere
53 mp
Etaj 1 / 2
Apartament cu 2 camere semidecomandat, mobilat în Girocului
104.900 €
Timișoara, Girocului
2 camere
51 mp
Etaj 1
Apartament cu 2 camere semidecomandat în Girocului
105.000 €
Timișoara, Girocului
2 camere
52 mp
Etaj 2

Abonează-te la newsletter să fii primul care primește cele mai noi recomandări de proprietăți și sfaturi de la experți.