De vanzare apartament cu 2 camere in zona centrala direct de la proprietar

115.000 €

Gheorghe Lazăr, Timişoara

Nr. camere:
2
Suprafață utilă:
40 mp
Etaj:
3
An construcție:
1905

Descriere apartament

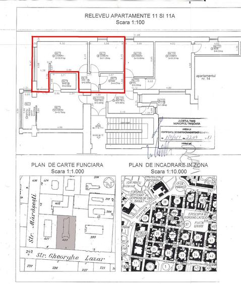
Apartament cu 2 camera de vanzare, direct de la proprietar fara comision agentie, pe str. Gh Lazar nr. 4, langa Liceul Lenau, in imobil istoric. Apartamentul se afla la etajul 3, este decomandat si dispune de centrala termica proprie si aer conditionat. Pardoselile camerelor sunt din parchet de lemn stratificat. Apartamentul este compus din: camera de zi cu bucatarie deschisa (cu fereste spre str. Gh. Lazar), dormitor, baie si hol de acces. Deasupra baii se afla un spatiu de depozitare. In proprietatea apartamentului se afla si o boxa la subsol. Apartamentul se vinde mobilat si utilat. Pret: 115.000 euro ID anun? : 1691483361
Citește mai mult Citește mai puțin
Decomandat

Detalii apartament

Actualizat în: 17 Mai 2026 ID anunț: 1228813
Nr. camere: 2
Suprafață utilă: 40 mp
Suprafață utilă totală: 40 mp
Compartimentare: Decomandat
Etaj: Etaj 3
An construcție: 1905

Istoric preț

Facilități

Utilități
Apă

Proprietăți similare

Apartament cu 3 camere decomandat, mobilat în Gheorghe Lazăr
118.000 €
Timișoara, Gheorghe Lazăr
3 camere
52 mp
Etaj 3 / 10
Apartament cu 3 camere decomandat în Gheorghe Lazăr
117.800 €
Timișoara, Gheorghe Lazăr
3 camere
69 mp
Etaj 4 / 4
Apartament cu 3 camere decomandat, mobilat în Gheorghe Lazăr
107.000 €
Timișoara, Gheorghe Lazăr
3 camere
54 mp
Etaj 7 / 10
Apartament cu 2 camere nedecomandat în Gheorghe Lazăr
125.000 €
Timișoara, Gheorghe Lazăr
2 camere
55 mp
Etaj 2 / 4
Apartament cu 3 camere semidecomandat, mobilat în Gheorghe Lazăr
114.900 €
Timișoara, Gheorghe Lazăr
3 camere
67 mp
Parter
Apartament cu 3 camere decomandat în Gheorghe Lazăr
114.900 €
Timișoara, Gheorghe Lazăr
3 camere
67 mp
Parter / 4
Apartament cu 2 camere semidecomandat, mobilat în Gheorghe Lazăr
104.999 €
Timișoara, Gheorghe Lazăr
2 camere
51,07 mp
Etaj 2 / 4
Apartament cu 3 camere semidecomandat, mobilat în Gheorghe Lazăr
115.000 €
Timișoara, Gheorghe Lazăr
3 camere
67 mp
Parter
Apartament cu 3 camere semidecomandat, mobilat în Gheorghe Lazăr
122.000 €
Timișoara, Gheorghe Lazăr
3 camere
67 mp
Etaj 4 / 4

Abonează-te la newsletter să fii primul care primește cele mai noi recomandări de proprietăți și sfaturi de la experți.