Apartament cu 2 camere decomandate, aflat in zona Freidorf, Timisoara

76.800 €

Freidorf, Timişoara

Nr. camere:
2
Suprafață utilă:
50 mp
Etaj:
4 / 4
An construcție:
1989
Nr. niveluri:
4

Descriere apartament

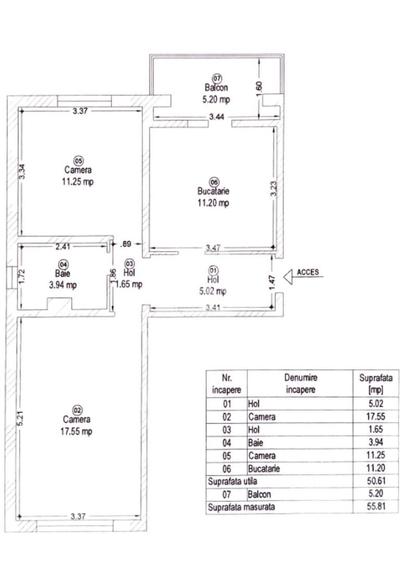
Agentie imobiliara, APOSTU ESTATE va ofera spre vanzare un apartament cu 2 camere decomandate, situat la etajul 4 al unui imobil cu 4 etaje, aflat in zona Freidorf din Timisoara. Apartamentul are o suprafata utila de 50mp, compartimentata astfel: - 2 camere - 1 bucatarie spatioasa - 1 baie cu geam - 1 hol de acces Confortul termic este asigurat prin intermediul centralei termice proprii. Amplasarea imobilului este la cateva minute de mers pe jos fata de Balta Lamaita, magazine, statiile mijloacelor de transport in comun sau unitati de invatamant. Nu ezitati sa ne contactati pentru stabilirea unei vizionari sau alte detalii suplimentare. ID intern: CP2982971
Citește mai mult Citește mai puțin
Confort 1 Decomandat Mobilat Calorifere Centrală proprie Bine întreținut (Bună)

Detalii apartament

Actualizat în: 20 Martie 2026 ID anunț: 1303767
Nr. camere: 2
Suprafață utilă: 50 mp
Suprafață utilă totală: 50 mp
Compartimentare: Decomandat
Confort: 1
Etaj: Etaj 4 / 4
Nr. băi: 1
An construcție: 1989
Regim înălțime: P+4E

Istoric preț

Facilități

Pereți
Faianță Vopsea lavabilă
Podele
Gresie Parchet
Ușă intrare
PVC Parchet Metal Lemn
Uși interior
PVC Lemn
Stare interior
Stare bună
Ferestre cu geam termopan
PVC Lemn
Contorizare
Apometre Contor gaz
Mobilat
Mobilat
Electrocasnice
Aragaz Frigider Mașină de spălat
Utilități
Curent Apă Canalizare Gaze Aragaz / Plită Frigider Mașină de spălat rufe Cablu
Sistem încălzire
Calorifere Centrală proprie
Internet
Cablu
Amenajare străzi
Iluminat stradal Mijloace de transport în comun Asfaltate

Puncte de interes

Mijloace transport
transport
Statie Pacii E7
Mijloace transport aprox. 112 m
transport
Statie Virgil Simionescu E7
Mijloace transport aprox. 314 m
transport
Statie Vaslui E7
Mijloace transport aprox. 457 m
transport
Statie Liceul Auto E7 si M36 (en)
Mijloace transport aprox. 635 m
Școală
education
Gradinita Program Normal Nr. 15
Învățământ aprox. 427 m
education
LICEU TEHNOLOGIC INDUSTRIAL TRANSPORTURI AUTO
Învățământ aprox. 698 m
education
Liceul Industrial Auto
Învățământ aprox. 698 m
education
Kinderhaus Minissa
Învățământ aprox. 740 m
Recreere
parks
Parcul Petofi Sandor
Recreere aprox. 596 m
restaurants
La Renaissance
Restaurante aprox. 803 m
shopping
Carrefour
Supermarket/Mall aprox. 1024 m
shopping
Centrul Comercial Dallas
Supermarket/Mall aprox. 1028 m

Proprietăți similare

Apartament cu 2 camere semidecomandat, mobilat în Freidorf
70.000 €
Timișoara, Freidorf
2 camere
50 mp
Etaj 4 / 4
Apartament cu 2 camere decomandat în Freidorf
77.000 €
Timișoara, Freidorf
2 camere
44 mp
Etaj 1 / 4
Apartament cu 2 camere decomandat în Freidorf
77.000 €
Timișoara, Freidorf
2 camere
44 mp
Etaj 1 / 4
Apartament cu 2 camere semidecomandat, mobilat în Freidorf
82.000 €
Timișoara, Freidorf
2 camere
51 mp
Etaj 3
Apartament cu 2 camere decomandat în Freidorf
69.900 €
Timișoara, Freidorf
2 camere
50 mp
Etaj 3
Apartament cu 2 camere decomandat, mobilat în Freidorf
69.900 €
Timișoara, Freidorf
2 camere
50 mp
Etaj 3 / 4
Apartament cu 2 camere decomandat, mobilat în Freidorf
79.000 €
Timișoara, Freidorf
2 camere
56 mp
Etaj 5
Apartament cu 2 camere decomandat în Freidorf
78.000 €
Timișoara, Freidorf
2 camere
56 mp
Etaj 5
Apartament cu 2 camere, mobilat în Freidorf
78.000 €
Timișoara, Freidorf
2 camere
56 mp
Etaj 5

Abonează-te la newsletter să fii primul care primește cele mai noi recomandări de proprietăți și sfaturi de la experți.