Apartament 2 camere,centrala proprie,zona Dorobantilor

83.000 €

Dorobanţilor, Timişoara

Nr. camere:
2
Suprafață utilă:
56 mp
Etaj:
4 / 4
An construcție:
1980
Nr. niveluri:
4

Descriere apartament

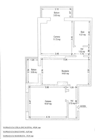
APOSTU ESTATE va propune spre vanzare un apartament decomandat cu 2 camere situat la etajul 4/4, in zona Dorobanti. Blocul dispune de acoperis cu tigla si se strange fonduri pentru anvelopare exterioara. Apartamentul dispune de o suprafata de 49,86 mp plus doua balcoane de 6,05 si este compartimentat astfel: - hol de acces spatios -bucatarie opens space cu semineu - dormitor -dormitor 2 - baie cu cada Confortul termic este asigurat prin intermediul centralei proprii. Apartamentul se vinde mobilat si utilat. Distante: -Profi la 2 min de mers pe jos - Mijloace transport in comun la 2 min de mers pe jos - Scoli,piata,gradinita,banci,farmacii -Iulius Town la 9 min cu masina -Centrul orasului 9 min cu masina Oferim consultanta si solutii financiare prin intermediul colaboratorilor nostri pentru a obtine cel mai potrivit tip de credit. Va asteptam cu drag la vizionare! Id intern: CP2717715
Citește mai mult Citește mai puțin
Confort 1 Decomandat Mobilat Aer condiționat Calorifere Centrală proprie Bine întreținut (Bună)

Detalii apartament

ID anunț: 191890 Actualizat în: 19 Februarie 2026
Nr. camere: 2
Suprafață utilă: 56 mp
Suprafață utilă totală: 56 mp
Compartimentare: Decomandat
Confort: 1
Etaj: Etaj 4 / 4
Nr. băi: 1
An construcție: 1980
Regim înălțime: P+4E

Istoric preț

Facilități

Pereți
Faianță Vopsea lavabilă
Podele
Gresie
Ușă intrare
Metal Lemn
Uși interior
Lemn
Stare interior
Stare bună
Contorizare
Apometre Contor căldură Contor gaz
Mobilat
Mobilat
Electrocasnice
Aragaz Frigider Mașină de spălat
Facilități imobil
Acoperiș Interfon
Utilități
Curent Apă Canalizare Gaze Aragaz / Plită Frigider Mașină de spălat rufe Cablu
Sistem încălzire
Calorifere Centrală proprie
Internet
Cablu
Climatizare
Aer condiționat
Amenajare străzi
Iluminat stradal Mijloace de transport în comun Asfaltate

Puncte de interes

Mijloace transport
transport
Statia Spital Victor Babes Tv1, Tv2
Mijloace transport aprox. 25 m
transport
Statia Meteo Tv1, Tv2
Mijloace transport aprox. 248 m
transport
Statia Meteo
Mijloace transport aprox. 251 m
transport
Atlassib
Mijloace transport aprox. 323 m
Școală
education
COLEGIUL TEHNIC "REGELE FERDINAND I "
Învățământ aprox. 307 m
education
Grup Scolar Tudor Tanasescu
Învățământ aprox. 319 m
education
COLEGIUL TEHNIC "REGELE FERDINAND I " - Grup Scolar Energetic
Învățământ aprox. 421 m
education
SoFi Day Care
Învățământ aprox. 486 m
Recreere
parks
Teren sportiv
Recreere aprox. 224 m
restaurants
Pensiunea "La Mitica"
Restaurante aprox. 279 m
shopping
Profi City
Supermarket/Mall aprox. 572 m
shopping
Profi City Dorobantilor
Supermarket/Mall aprox. 854 m

Proprietăți similare

Apartament cu 2 camere decomandat, mobilat în Dorobanților
87.990 €
Timișoara, Dorobanților
2 camere
46 mp
Etaj 4
Apartament cu 2 camere decomandat în Dorobanților
81.500 €
Timișoara, Dorobanților
2 camere
55 mp
Etaj 4
Apartament cu 2 camere decomandat în Dorobanților
78.000 €
Timișoara, Dorobanților
2 camere
50 mp
Etaj 2
Apartament cu 2 camere decomandat în Dorobanților
88.000 €
Timișoara, Dorobanților
2 camere
52 mp
Etaj 4
Apartament cu 2 camere semidecomandat, mobilat în Dorobanților
89.990 €
Timișoara, Dorobanților
2 camere
52 mp
Etaj 4
Apartament cu 3 camere decomandat în Dorobanților
83.000 €
Timișoara, Dorobanților
3 camere
65 mp
Etaj 5
Apartament cu 2 camere decomandat în Dorobanților
83.000 €
Timișoara, Dorobanților
2 camere
62 mp
Etaj 4
Apartament cu 2 camere decomandat în Dorobanților
88.000 €
Timișoara, Dorobanților
2 camere
55 mp
Etaj 4
Apartament cu 2 camere semidecomandat în Dorobanților
89.000 €
Timișoara, Dorobanților
2 camere
53 mp
Etaj 4

Abonează-te la newsletter să fii primul care primește cele mai noi recomandări de proprietăți și sfaturi de la experți.