Apartament 2 camere,centrala proprie,zona Dorobantilor

92.000 €

Dorobanţilor, Timişoara

Nr. camere:
2
Suprafață utilă:
62 mp
Etaj:
4 / 4
An construcție:
1970
Nr. niveluri:
4

Descriere

Apartament 2 camere,centrala proprie,zona Dorobantilor

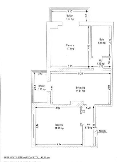
APOSTU ESTATE va propune spre vanzare un apartament decomandat cu 2 camere situat la etajul 4/4, in zona Dorobanti. Blocul dispune de acoperis cu tigla si se strange fonduri pentru anvelopare exterioara. Apartamentul dispune de o suprafata de 49,86 mp plus doua balcoane de 6,05 si este compartimentat astfel: - hol de acces spatios -bucatarie opens space cu semineu - dormitor -dormitor 2 - baie cu cada Confortul termic este asigurat prin intermediul centralei proprii. Apartamentul se vinde mobilat si utilat. Distante: -Profi la 2 min de mers pe jos - Mijloace transport in comun la 2 min de mers pe jos - Scoli,piata,gradinita,banci,farmacii -Iulius Town la 9 min cu masina -Centrul orasului 9 min cu masina Oferim consultanta si solutii financiare prin intermediul colaboratorilor nostri pentru a obtine cel mai potrivit tip de credit. Va asteptam cu drag la vizionare! Id intern: CP2717715 Confort: 1 Tip imobil: Bloc de apartamente Numar Bai: 1 Posibilitate parcare: Nu Publicat prin , vezi anuntul complet aici.
Citește mai mult Citește mai puțin
ID anunț: 1910710 Actualizat în: 25 Ianuarie 2026
Nr. camere: 2
Suprafață utilă: 62 mp
Suprafață utilă totală: 62 mp
Compartimentare: Decomandat
Etaj: Etaj 4 / 4
An construcție: 1970
Regim înălțime: P+4E

Istoric preț

Proprietăți similare

Apartament cu 3 camere în Dorobanților
87.000 €
Timișoara, Dorobanților
3 camere
50 mp
Etaj 4
Apartament cu 2 camere semidecomandat în Dorobanților
83.500 €
Timișoara, Dorobanților
2 camere
54 mp
Etaj 1 / 4
Apartament cu 2 camere decomandat în Dorobanților
85.000 €
Timișoara, Dorobanților
2 camere
50 mp
Parter
Apartament cu 2 camere semidecomandat, mobilat în Dorobanților
89.990 €
Timișoara, Dorobanților
2 camere
43 mp
Parter / 4
Apartament cu 2 camere decomandat, mobilat în Dorobanților
91.000 €
Timișoara, Dorobanților
2 camere
50 mp
Etaj 4 / 4
Apartament cu 2 camere decomandat în Dorobanților
96.500 €
Timișoara, Dorobanților
2 camere
50 mp
Etaj 4
Apartament cu 2 camere decomandat, mobilat în Dorobanților
83.000 €
Timișoara, Dorobanților
2 camere
56 mp
Etaj 4 / 4
Apartament cu 2 camere decomandat în Dorobanților
91.000 €
Timișoara, Dorobanților
2 camere
50 mp
Etaj 4
Apartament cu 2 camere semidecomandat în Dorobanților
90.000 €
Timișoara, Dorobanților
2 camere
52 mp
Parter

Abonează-te la newsletter să fii primul care primește cele mai noi recomandări de proprietăți și sfaturi de la experți.