80000 euro!!! Apartament 3 camere, centrala, Gheorghe Lazar

80.000 €

Dacia, Timişoara

Nr. camere:
3
Suprafață utilă:
50 mp
Etaj:
3 / 4
An construcție:
1978
Nr. niveluri:
4

Descriere apartament

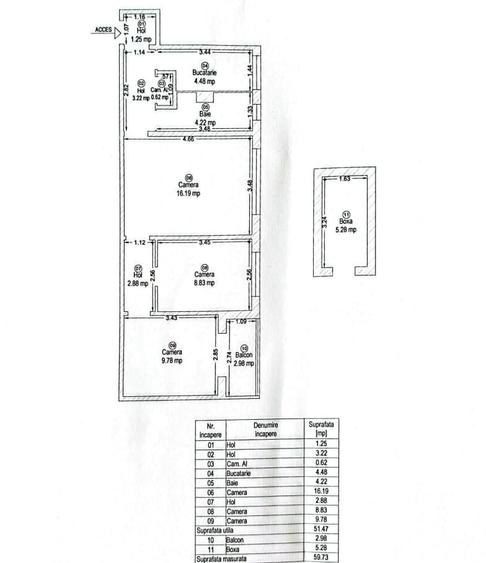
Apartament de vânzare situat în zona Gheorghe Lazar/ Circumvalatiunii, Timișoara. Acesta se află la etajul 3 din 4 și are o suprafață de 50 mp. Locuința dispune de 3 camere, o bucătărie separată și un balcon de 3 mp . Încălzirea se face prin centrală pe gaz, iar geamurile sunt din lemn. Amplasarea este ideală, aproape de: Cinema Timiș (445 m) Diverse restaurante și cafenele Stații de autobuz (96 m) Centre comerciale Aici ai acces la toate facilitățile necesare. Contactează-mă pentru mai multe detalii sau pentru a programa o vizionare. Pret 80000 euro Tel
Citește mai mult Citește mai puțin
Semidecomandat Calorifere Centrală proprie Necesită renovare

Detalii apartament

ID anunț: 3623957 Actualizat în: 06 Aprilie 2026
Nr. camere: 3
Suprafață utilă: 50 mp
Suprafață utilă totală: 50 mp
Compartimentare: Semidecomandat
Etaj: Etaj 3 / 4
Nr. băi: 1
An construcție: 1978
Regim înălțime: P+4E

Istoric preț

Facilități

Utilități
Gaze Curent Canalizare Apă
Sistem încălzire
Calorifere Centrală proprie
Ușă intrare
Lemn
Stare interior
Necesită renovare
Amenajare străzi
Asfaltate Betonate Iluminat stradal Mijloace de transport în comun
Servicii imobil
Administrare
Facilități imobil
Interfon Acoperiș

Puncte de interes

Mijloace transport
transport
Statie Timis A13
Mijloace transport aprox. 183 m
transport
Bulevardul Cetatii
Mijloace transport aprox. 296 m
transport
Calea Circumvalatiunii
Mijloace transport aprox. 307 m
transport
Statie Amforei Tramvai Linia 4,6
Mijloace transport aprox. 317 m
Școală
education
Grădiniţa nr. 26 Timişoara
Învățământ aprox. 112 m
education
Gradinita nr. 26
Învățământ aprox. 126 m
education
Scoala Gimnaziala nr. 18
Învățământ aprox. 152 m
education
Scoala Generala Nr. 18
Învățământ aprox. 155 m
Recreere
restaurants
Fast Food
Restaurante aprox. 179 m
parks
Arena Viola
Recreere aprox. 192 m
shopping
Profi City
Supermarket/Mall aprox. 297 m
shopping
Carrefour Market
Supermarket/Mall aprox. 332 m

Proprietăți similare

Apartament cu 2 camere semidecomandat, mobilat în Dacia
77.400 €
Timișoara, Dacia
2 camere
38 mp
Etaj 3
Apartament cu 2 camere semidecomandat, mobilat în Dacia
78.000 €
Timișoara, Dacia
2 camere
40 mp
Etaj 4
Apartament cu 3 camere semidecomandat, mobilat în Dacia
83.500 €
Timișoara, Dacia
3 camere
48 mp
Etaj 3
Apartament cu 2 camere semidecomandat în Dacia
74.300 €
Timișoara, Dacia
2 camere
40 mp
Parter
Apartament cu 2 camere semidecomandat în Dacia
77.000 €
Timișoara, Dacia
2 camere
42 mp
Etaj 4
Apartament cu 2 camere semidecomandat, mobilat în Dacia
85.000 €
Timișoara, Dacia
2 camere
54 mp
2018
Apartament cu 2 camere semidecomandat în Dacia
78.000 €
Timișoara, Dacia
2 camere
49 mp
Etaj 4 / 4
Apartament cu 4 camere semidecomandat, mobilat în Dacia
85.000 €
Timișoara, Dacia
4 camere
59 mp
Etaj 3 / 4
Apartament cu 4 camere semidecomandat, mobilat în Dacia
87.000 €
Timișoara, Dacia
4 camere
64 mp
Etaj 4

Abonează-te la newsletter să fii primul care primește cele mai noi recomandări de proprietăți și sfaturi de la experți.