Apartament o camera, de vanzare, zona Circumvalatiunii

67.000 €

Circumvalaţiunii, Timişoara

Nr. camere:
2
Suprafață utilă:
35 mp
Etaj:
3 / 4
An construcție:
1980
Nr. niveluri:
4

Descriere apartament

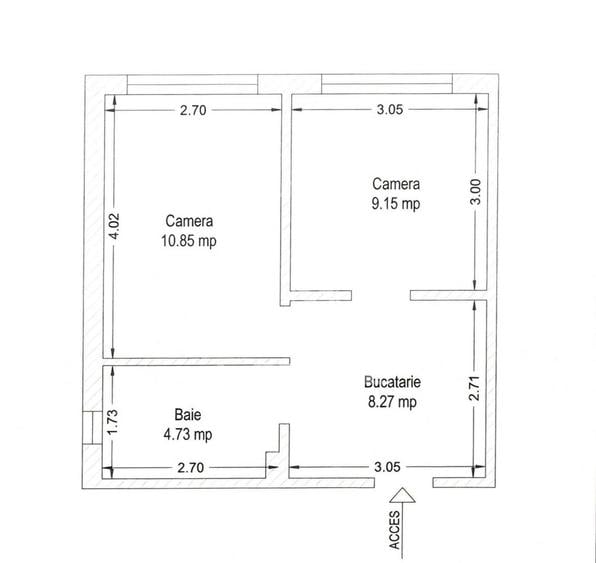
Agentia imobiliara Apostu Estate va ofera spre vanzare un apartament cu o camera, situat in zona Circumvalatiunii. Apartamentul se afla la etaj intermediar, etajul 3/4 al unui bloc de apartamente cu 4 etaje si 5 apartamente pe nivel. Zona este foarte linistita, iar apartamentul este situat la doar cateva minute fata de scoala parc, piata, statie de autobuz si numeroase market-uri. La doar 400 m fata de piata 700 si 800 m fata de Iulius Mall. Apartamentul a fost recompartimentat in 2 camere, avand holul transformat in bucatarie. Apartamentul are o suprafata utila de 35 mp si este compartimentat astfel: - hol acces open space cu bucataria - baie prevazuta cu cada si geam pentru aerisire - camera principala - dormitor Confortul termic este realizat prin termoficare, dar si prin intermediul aparatului de aer conditionat. Beneficiaza de gresie, faianta, parchet, tamplarie PVC, rulouri, geamuri termopan si usa exterioara metalica. Agentia imobiliara Apostu Estate va ofera consultanta bancara gratuita prin intermediul colaboratorilor nostri pentru alegerea celui mai potrivit tip de credit, astfel incat tu sa devi noul proprietar al acestui apartament. Disponibil imediat. Va asteptam cu drag la o vizionare chiar astazi!
Citește mai mult Citește mai puțin
Confort 1 Decomandat Aer condiționat Calorifere Termoficare Necesită renovare

Detalii apartament

Actualizat în: 12 Mai 2026 ID anunț: 1306751
Nr. camere: 2
Suprafață utilă: 35 mp
Suprafață utilă totală: 35 mp
Compartimentare: Decomandat
Confort: 1
Etaj: Etaj 3 / 4
Nr. băi: 1
An construcție: 1980
Regim înălțime: P+4E

Istoric preț

Facilități

Contorizare
Apometre
Bucătărie
Mobilată
Electrocasnice
Aragaz Frigider
Facilități imobil
Acoperiș Interfon
Utilități
Curent Apă Canalizare Aragaz / Plită Frigider Cablu
Sistem încălzire
Calorifere Termoficare
Internet
Cablu
Climatizare
Aer condiționat
Ușă intrare
PVC Metal Lemn
Uși interior
PVC Lemn
Stare interior
Necesită renovare
Ferestre cu geam termopan
PVC Lemn
Amenajare străzi
Iluminat stradal Mijloace de transport în comun Asfaltate

Puncte de interes

Mijloace transport
transport
Statie Circumvalatiunii E1
Mijloace transport aprox. 276 m
transport
Piata Dacia
Mijloace transport aprox. 300 m
transport
Calea Circumvalatiunii
Mijloace transport aprox. 363 m
transport
Statie Ghe. Lazar A13 retur
Mijloace transport aprox. 373 m
Școală
education
Gradinita nr. 36
Învățământ aprox. 32 m
education
Scoala Gimnaziala nr. 18
Învățământ aprox. 92 m
education
Gradinita Program Prelungit Nr. 36
Învățământ aprox. 104 m
education
Scoala Generala Nr. 18
Învățământ aprox. 118 m
Recreere
parks
Parc
Recreere aprox. 70 m
restaurants
Fast Food
Restaurante aprox. 96 m
shopping
Carrefour Market
Supermarket/Mall aprox. 152 m
shopping
Kaufland
Supermarket/Mall aprox. 397 m

Proprietăți similare

Apartament cu 2 camere nedecomandat în Circumvalațiunii
65.000 €
Timișoara, Circumvalațiunii
2 camere
32 mp
Parter / 4
Apartament cu 2 camere nedecomandat, mobilat în Circumvalațiunii
72.000 €
Timișoara, Circumvalațiunii
2 camere
37 mp
Etaj 4 / 4
Apartament cu 2 camere, mobilat în Circumvalațiunii
67.000 €
Timișoara, Circumvalațiunii
2 camere
34 mp
Etaj 3
Apartament cu 2 camere decomandat în Circumvalațiunii
65.000 €
Timișoara, Circumvalațiunii
2 camere
44 mp
Etaj 10
Apartament cu 2 camere decomandat, mobilat în Circumvalațiunii
65.000 €
Timișoara, Circumvalațiunii
2 camere
33 mp
Etaj 3
Apartament cu 2 camere decomandat în Circumvalațiunii
65.000 €
Timișoara, Circumvalațiunii
2 camere
44 mp
Etaj 10
Apartament cu 2 camere nedecomandat în Circumvalațiunii
65.000 €
Timișoara, Circumvalațiunii
2 camere
40 mp
Etaj 4
Apartament cu 2 camere nedecomandat în Circumvalațiunii
65.000 €
Timișoara, Circumvalațiunii
2 camere
32 mp
Parter
Apartament cu 2 camere decomandat, mobilat în Circumvalațiunii
71.000 €
Timișoara, Circumvalațiunii
2 camere
46 mp
Etaj 10

Abonează-te la newsletter să fii primul care primește cele mai noi recomandări de proprietăți și sfaturi de la experți.