Apartament finalizat, cu 2 camere, bucatarie inchisa, Calea Urseni

84.900 €

Calea Urseni, Timişoara

Nr. camere:
2
Suprafață utilă:
53 mp
Etaj:
Parter / 3
An construcție:
2025
Nr. niveluri:
3

Descriere apartament

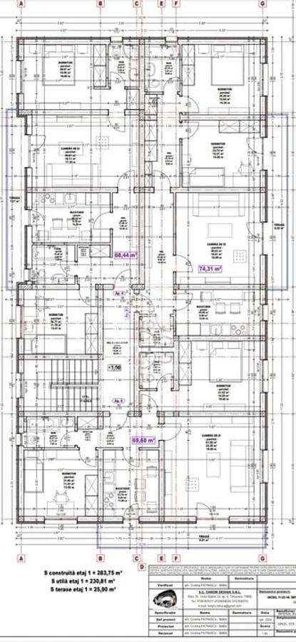
Apostu Estate va ofera spre vanzare un apartament cu 2 camere, decomandat, cu bucatarie inchisa, situat in Giroc, zona Calea Urseni, la aproximativ 1km distanta fata de Zone 2 si Mega Image. Imobil realizat din caramida Porotherm de 30 cm pe exterior, 25 cm zidurile pe interior si 11.5 zidurile de compartimentare la bai. Izolatie de 10 cm EPS 80. Acoperis din tigla. Loc de parcare propriu inscris in cartea funciara. Trei apartamente pe etaj. Regim de inaltime: P + 2 + M. Acoperis din tigla. Tamplarie PVC, geamuri tripan. Confortul termic se realizeaza cu ajutorul centralei proprii pe gaz, incalzire in pardoseala. Apartamentul dispune de 53 mpu, plus un balcon de aproximativ 5 - 6 mp. Compartimentate astfel: - hol de acces generos - bucatarie inchisa, 8 mp - living, 18.5 mp - dormitor, 14 mp - baie cu dus, rigola si toaleta suspendata cu rezervor incorporat, 5mp - balcon deschis Disponibile: Etaj 1 - 88.000€ Etaj 2 - 88.0000€ Etaj 3 - 84.9000€ Parter - 90.000€ Agentia imobiliara Apostu Estate va ofera consultanta bancara gratuita prin intermediul colaboratorilor nostri pentru alegerea celui mai potrivit tip de credit, astfel incat tu sa devi noul proprietar al acestui apartament. Va asteptam cu drag la o vizionare!
Citește mai mult Citește mai puțin
Confort 1 Decomandat Nemobilat Centrală proprie

Detalii apartament

ID anunț: 128553 Actualizat în: 03 Martie 2026
Nr. camere: 2
Suprafață utilă: 53 mp
Suprafață utilă totală: 53 mp
Compartimentare: Decomandat
Confort: 1
Etaj: Parter / 3
Nr. băi: 2
An construcție: 2025
Regim înălțime: P+3E

Istoric preț

Facilități

Pereți
Faianță Vopsea lavabilă
Podele
Parchet
Ușă intrare
Parchet Metal PVC
Izolații termice
Exterior
Ferestre cu geam termopan
PVC
Contorizare
Contor gaz
Mobilat
Nemobilat
Facilități imobil
Acoperiș Interfon
Utilități
Curent Apă Canalizare Gaze
Sistem încălzire
Centrală proprie

Puncte de interes

Mijloace transport
transport
Halta Semenic Hm (en)
Mijloace transport aprox. 1262 m
transport
Semenic
Mijloace transport aprox. 1442 m
transport
Giroceana
Mijloace transport aprox. 1699 m
transport
Giroceana
Mijloace transport aprox. 1709 m
Școală
education
CENTRU REGIONALDE PREGATIRE PROFESIONALA PENTRU MAGISTRATI, GIROC, tIMISOARA
Învățământ aprox. 1586 m
education
Scoala Generala 20
Învățământ aprox. 1695 m
education
Scoala Gimnaziala nr. 20
Învățământ aprox. 1705 m
education
Gradinita Program Normal Nr. 6
Învățământ aprox. 1705 m
Recreere
parks
Parcul Ciarda Rosie
Recreere aprox. 1377 m
parks
Parc
Recreere aprox. 1391 m
restaurants
Arizona
Restaurante aprox. 1783 m
restaurants
DAF Junior
Restaurante aprox. 1787 m

Proprietăți similare

Apartament cu 2 camere decomandat, mobilat în Calea Urseni
92.800 €
Timișoara, Calea Urseni
2 camere
58 mp
Etaj 1 / 3
Apartament cu 2 camere decomandat în Calea Urseni
87.500 €
Timișoara, Calea Urseni
2 camere
53 mp
Etaj 2
Apartament cu 2 camere decomandat în Calea Urseni
90.000 €
Timișoara, Calea Urseni
2 camere
46,4 mp
Etaj 2
Apartament cu 2 camere decomandat, mobilat în Calea Urseni
88.000 €
Timișoara, Calea Urseni
2 camere
55 mp
Etaj 2 / 3
Apartament cu 2 camere în Calea Urseni
89.790 €
Timișoara, Calea Urseni
2 camere
48 mp
Etaj 1 / 2
Apartament cu 2 camere semidecomandat, mobilat în Calea Urseni
85.000 €
Timișoara, Calea Urseni
2 camere
60 mp
Etaj 3
Apartament cu 2 camere decomandat în Calea Urseni
92.800 €
Timișoara, Calea Urseni
2 camere
38 mp
Etaj 1
Apartament cu 2 camere decomandat în Calea Urseni
86.000 €
Timișoara, Calea Urseni
2 camere
57 mp
Parter
Apartament cu 2 camere decomandat, mobilat în Calea Urseni
88.490 €
Timișoara, Calea Urseni
2 camere
44 mp
Etaj 2 / 3

Abonează-te la newsletter să fii primul care primește cele mai noi recomandări de proprietăți și sfaturi de la experți.