Apartament cu 2 camere si cu loc de parcare - Calea Urseni

€ 85.990

Calea Urseni, Timişoara

Nr. camere:
2
Suprafață utilă:
53 mp
Etaj:
2 / 3
An construcție:
2025
Nr. niveluri:
3

Descriere

Raportează anunț

Apartament cu 2 camere si cu loc de parcare - Calea Urseni

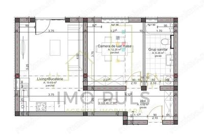
Evand Homes ofera spre vanzare un apartament cu 2 camere, situat in Timisoara, zona Calea Urseni, intr-un imobil nou, finalizat in anul 2025, construit din beton + caramida. Apartamentul se afla la etajul 2 din 3 si dispune de o suprafata utila de 53 m², completata de un balcon de 2 m². Compartimentarea este decomandata, oferind un spatiu luminos, modern si bine organizat. Proprietatea beneficiaza de 1 loc de parcare si este dotata cu: - centrala proprie cu incalzire prin pardoseala; - tamplarie PVC cu sticla tripan; - gresie, faianta, parchet; - termostat ambiental; - interfon, avand toate utilitatile necesare pentru confortul zilnic. Apartamentul este structurat astfel: hol, baie, living, bucatarie inchisa, dormitor cu iesire in balcon. Zona este bine pozitionata, cu acces facil catre mijloace de transport, magazine, ideala atat pentru locuinta proprie, cat si pentru investitie. Pret: 85.990 € + comisionul standard al agentiei. Pentru detalii si programarea unei vizionari, contactati-ne la
0774 **** Vezi tot numărul
– Evand Homes, partenerul dumneavoastra de incredere.
Citește mai mult Citește mai puțin
ID anunț: 3047136 Actualizat în: 29 Decembrie 2025
Nr. camere: 2
Suprafață utilă: 53 mp
Suprafață utilă totală: 53 mp
Compartimentare: Decomandat
Etaj: Etaj 2 / 3
Nr. băi: 1
An construcție: 2025
Regim înălțime: P+3E

Istoric preț

Utilități

Utilități
Curent Apă Canalizare Gaze
Facilități
Balcon

Proprietăți similare

Apartament cu 2 camere decomandat, mobilat în Calea Urseni
€ 93.000
Timișoara, Calea Urseni
2 camere
50 mp
Etaj 1
Apartament cu 2 camere decomandat în Calea Urseni
€ 92.500
Timișoara, Calea Urseni
2 camere
46 mp
Parter
Apartament cu 3 camere în Calea Urseni
€ 93.000
Timișoara, Calea Urseni
3 camere
70 mp
Etaj 2
Apartament cu 2 camere decomandat în Calea Urseni
€ 79.500
Timișoara, Calea Urseni
2 camere
50 mp
2024
Apartament cu 3 camere decomandat în Calea Urseni
€ 88.000
Timișoara, Calea Urseni
3 camere
53 mp
Etaj 3 / 3
Apartament cu 2 camere decomandat, mobilat în Calea Urseni
€ 88.490
Timișoara, Calea Urseni
2 camere
44 mp
Etaj 2 / 3
Apartament cu 2 camere decomandat în Calea Urseni
€ 89.800
Timișoara, Calea Urseni
2 camere
48 mp
Etaj 1
Apartament cu 2 camere semidecomandat, mobilat în Calea Urseni
€ 94.000
Timișoara, Calea Urseni
2 camere
56 mp
Etaj 1 / 3
Apartament cu 2 camere semidecomandat în Calea Urseni
€ 89.900
Timișoara, Calea Urseni
2 camere
44 mp
Etaj 2

Abonează-te la newsletter să fii primul care primește cele mai noi recomandări de proprietăți și sfaturi de la experți.