AX1212 Bucovina, Etaj 1, 57 Mp Utili + Doua Balcoane

95.000 €

Bucovina, Timişoara

Nr. camere:
2
Suprafață utilă:
57 mp
Etaj:
1 / 4
An construcție:
1989
Nr. niveluri:
4

Descriere apartament

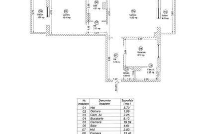
OXIA The Real Estate Agency ofera spre vanzare, apartament cu doua camere, in Timisoara, zona Bucovina, la etajul 1/4, cu suprafata generoasa de 57 MP utili + doua balcoane de 5 MP fiecare, compartimentat astfel: - Hol acces + Debara - Bucatarie inchisa + Camera tehnica - Living + Balcon - Hol tranzit - Dormitor + Balcon - Baie cu cada Apartamentului dispune de urmatoarele finisaje: usa intrare metalica, usi interioare celulare, placi de gresie/faianta, ferestre PVC cu geam termopan, vopsea lavabila, etc. Confortul termic este asigurat prin intermediul sistemului de termoficare al orasului (cu posibilitatea montarii centralei proprii pe gaz) si prin intermediul sistemului de climatizare. Apartamentul a fost inchiriat pe o perioada lunga si necesita o usoara renovare + igienizare. Pretabil pentru investitie. PRET: 95 000 EURO + comision agentie Se accepta si achizitionarea prin intermediul unui credit bancar. Oferim consultanta financiara si juridica pe tot parcursul procesului. Pentru mai multe detalii despre aceasta proprietate sau pentru stabilirea unei vizionari, ne puteti contacta la numarul de telefon . ID ANUNT: AX1212 ID anun? : 1773273539
Citește mai mult Citește mai puțin
Confort 1 Semidecomandat

Detalii apartament

ID anunț: 3807255 Actualizat în: 12 Martie 2026
Nr. camere: 2
Suprafață utilă: 57 mp
Suprafață utilă totală: 57 mp
Compartimentare: Semidecomandat
Confort: 1
Etaj: Etaj 1 / 4
Nr. băi: 1
An construcție: 1989
Regim înălțime: P+4E

Istoric preț

Facilități

Utilități
Apă Gaze

Proprietăți similare

Apartament cu 2 camere semidecomandat, mobilat în Bucovina
95.000 €
Timișoara, Bucovina
2 camere
57 mp
Etaj 1 / 4
Apartament cu 2 camere decomandat în Bucovina
91.000 €
Timișoara, Bucovina
2 camere
54 mp
Etaj 3
Apartament cu 2 camere semidecomandat, mobilat în Bucovina
98.990 €
Timișoara, Bucovina
2 camere
58 mp
Etaj 4 / 4
Apartament cu 2 camere semidecomandat, mobilat în Bucovina
99.000 €
Timișoara, Bucovina
2 camere
58 mp
Etaj 4
Apartament cu 2 camere decomandat în Bucovina
98.790 €
Timișoara, Bucovina
2 camere
60 mp
Etaj 5 / 7
Apartament cu 2 camere decomandat, mobilat în Bucovina
101.990 €
Timișoara, Bucovina
2 camere
54 mp
Etaj 4
Apartament cu 2 camere decomandat în Bucovina
99.000 €
Timișoara, Bucovina
2 camere
58 mp
Etaj 4
Apartament cu 2 camere semidecomandat, mobilat în Bucovina
99.000 €
Timișoara, Bucovina
2 camere
57 mp
Etaj 4 / 4
Apartament cu 2 camere decomandat în Bucovina
96.000 €
Timișoara, Bucovina
2 camere
56 mp
Etaj 3 / 4

Abonează-te la newsletter să fii primul care primește cele mai noi recomandări de proprietăți și sfaturi de la experți.