BRAYTIM-MUSICESCU. GRADINA PROPRIE. BUCATARIE SEPARATA.

115.000 €

Braytim, Timişoara

Nr. camere:
2
Suprafață utilă:
50 mp
Etaj:
Parter / 3
An construcție:
2019
Nr. niveluri:
3

Descriere apartament

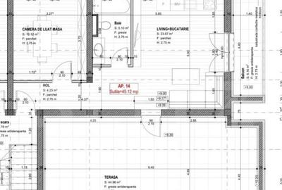
“HousR” propune spre vanzare un apartament cu 2 camere, in zona Braytim, cu urmatoarele caracteristici: - parter/3 + ACOPERIS DIN TIGLA; - BLOC NOU, ANVELOPAT TERMIC, cu 4 apartamente pe nivel; - LOC DE PARCARE PRIVAT INSCRIS IN CF; - GRADINA PROPRIE DE 50 MP INSCRISA IN CF; Detalii model: - decomandat; - bucatarie separata; - baie cu geam; Detalii amenajare interioara: - parchet laminat, gresie, faianta, ferestre cu tamplarie PVC si geamuri tripan, rulouri exterioare, usa metalica la intrare, usi interioare noi, vopsea lavabila, obiecte sanitare noi, instalatie sanitara noua, instalatie electrica noua; - CENTRALA TERMICA PROPRIE CU INCALZIRE IN PARDOSEALA; - TERMOSTATE DE AMBIENT IN FIECARE CAMERA; - APARAT DE AER CONDITIONAT; Detalii pret: Pretul solicitat de proprietar este de 115.000 Euro, negociabil. Pretul include locul de parcare. Se accepta si varianta de achizitionare prin intermediul unui credit bancar. * Solutii financiar-bancare si consultanta juridica pana la finalul tranzactiei, oferita prin intermediul colaboratorilor “HousR Consulting”.
Citește mai mult Citește mai puțin
Confort 1 Mobilat Grădină Aer condiționat Centrală proprie

Detalii apartament

ID anunț: 3322753 Actualizat în: 11 Februarie 2026
Nr. camere: 2
Suprafață utilă: 50 mp
Suprafață utilă totală: 50 mp
Confort: 1
Etaj: Parter / 3
Nr. băi: 1
An construcție: 2019
Regim înălțime: P+3E

Istoric preț

Facilități

Pereți
Faianță Vopsea lavabilă
Podele
Gresie Parchet
Rulouri/Obloane
PVC
Ușă intrare
Parchet PVC Metal
Uși interior
PVC Celulare
Izolații termice
Exterior
Ferestre cu geam termopan
PVC
Contorizare
Apometre Contor căldură Contor gaz
Facilități imobil
Acoperiș Grădină Videointerfon
Utilități
Curent Apă Canalizare Gaze Cablu
Sistem încălzire
Centrală proprie
Internet
Cablu
Climatizare
Aer condiționat
Amenajare străzi
Iluminat stradal Mijloace de transport în comun Asfaltate

Puncte de interes

Mijloace transport
transport
Bucla Versului
Mijloace transport aprox. 180 m
transport
Statie Maresal C-tin Prezan bucla T15, T19
Mijloace transport aprox. 185 m
transport
Statie Maresal C-tin Prezan T15, T19
Mijloace transport aprox. 330 m
transport
Mures
Mijloace transport aprox. 392 m
Școală
education
Gradinita Goghita
Învățământ aprox. 172 m
education
Gradinita Broscuta Fermecata
Învățământ aprox. 319 m
education
Gradinita Program Prelungit Nr. 11
Învățământ aprox. 348 m
education
Liceul Waldorf - atelier practic
Învățământ aprox. 475 m
Recreere
parks
Parc
Recreere aprox. 223 m
restaurants
Hotel Alexandra Timisoara (en)
Restaurante aprox. 282 m
shopping
Lidl
Supermarket/Mall aprox. 518 m
shopping
Profi
Supermarket/Mall aprox. 582 m

Proprietăți similare

Apartament cu 2 camere decomandat în Braytim
104.900 € + TVA
Timișoara, Braytim
2 camere
56 mp
Etaj 1
Apartament cu 2 camere decomandat în Braytim
111.660 € + TVA
Timișoara, Braytim
2 camere
53,33 mp
Etaj 2 / 2
Apartament cu 2 camere semidecomandat în Braytim
121.000 €
Timișoara, Braytim
2 camere
42 mp
Parter
Apartament cu 2 camere decomandat în Braytim
114.265 €
Timișoara, Braytim
2 camere
53,3 mp
Etaj 1 / 2
Apartament cu 2 camere semidecomandat în Braytim
106.000 €
Timișoara, Braytim
2 camere
52 mp
Etaj 3
Apartament cu 3 camere semidecomandat în Braytim
125.500 €
Timișoara, Braytim
3 camere
70 mp
Etaj 3 / 3
Apartament cu 2 camere semidecomandat în Braytim
113.200 €
Timișoara, Braytim
2 camere
49 mp
Etaj 2
Apartament cu 2 camere decomandat în Braytim
114.326 € + TVA
Timișoara, Braytim
2 camere
53 mp
Etaj 1
Apartament cu 2 camere decomandat în Braytim
117.000 €
Timișoara, Braytim
2 camere
54 mp
Etaj 3

Abonează-te la newsletter să fii primul care primește cele mai noi recomandări de proprietăți și sfaturi de la experți.