APARTAMENTE CU 2 SI 3 CAMERE, BRAYTIM/GIROC

101.000 €

Braytim, Timişoara

Nr. camere:
3
Suprafață utilă:
58 mp
Etaj:
1 / 2
An construcție:
2025
Nr. niveluri:
2

Descriere apartament

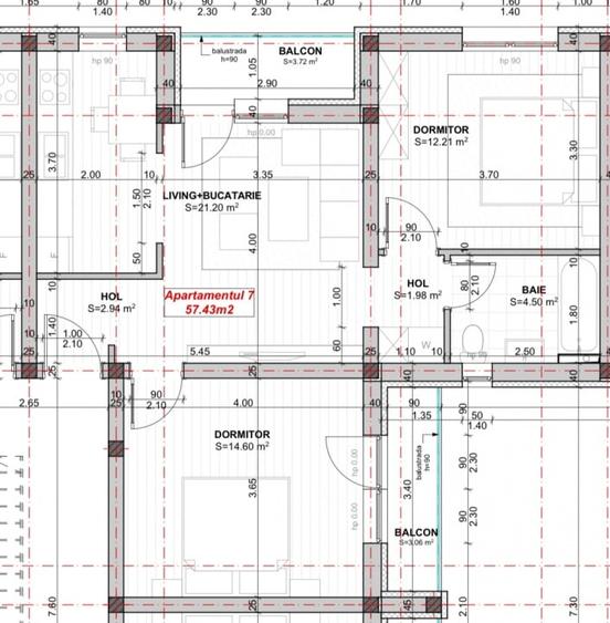
DE VANZARE, APARTAMENTE CU 3 CAMERE, 58 MP SI 2 BALCOANE, SITUATE IN GIROC, BLOC CU 2 ETAJE SI MANSARDA. Apartamentele dispun de urmatoarea compartimentare: hol acces, living cu bucataria open space cu posibilitate de a fi inchisa, 2 dormitoare din care unul este cu balcon propriu si baie cu geam. Detalii tehnice: constructie integral din caramida, izolatie cu polistiren 10 cm eps 80, tamplarie tripan, incalzire in pardoseala, loc de parcare inclus in pret. Pretul de vanzare este de 101.000 Euro. Pozele sunt cu caracter informativ de la contructii finalizate de noi! Termen finalizare: mai 2025 Va asteptam cu drag la o vizionare!
Citește mai mult Citește mai puțin
Confort 1 Centrală proprie Bine întreținut (Bună)

Detalii apartament

ID anunț: 971548 Actualizat în: 09 Martie 2026
Nr. camere: 3
Suprafață utilă: 58 mp
Suprafață utilă totală: 58 mp
Confort: 1
Etaj: Etaj 1 / 2
Nr. băi: 1
An construcție: 2025
Regim înălțime: P+2E

Istoric preț

Facilități

Pereți
Vopsea lavabilă Faianță
Podele
Parchet Gresie
Ușă intrare
Parchet PVC Metal Lemn
Uși interior
PVC Lemn
Stare interior
Stare bună
Izolații termice
Exterior
Ferestre cu geam termopan
PVC Lemn
Contorizare
Apometre Contor căldură Contor gaz
Facilități imobil
Interfon
Utilități
Curent Apă Canalizare Gaze
Sistem încălzire
Centrală proprie
Internet
Fibră optică
Amenajare străzi
Pietruite

Puncte de interes

Mijloace transport
transport
Venus
Mijloace transport aprox. 1115 m
transport
Bulevardul Sudului
Mijloace transport aprox. 1206 m
transport
Statie Sudului bucla T16
Mijloace transport aprox. 1212 m
transport
Apicultorilor
Mijloace transport aprox. 1245 m
Școală
education
Piticii din Vest
Învățământ aprox. 950 m
education
Gradinita Program Prelungit nr.38
Învățământ aprox. 1129 m
education
Gradinita Program Normal Nr. 19
Învățământ aprox. 1133 m
education
Gradinita Goghita
Învățământ aprox. 1137 m
Recreere
parks
Viitor Parc Braytim
Recreere aprox. 780 m
restaurants
Hotel Alexandra Timisoara (en)
Restaurante aprox. 1011 m
shopping
Profi
Supermarket/Mall aprox. 1297 m
shopping
Nova Tim
Supermarket/Mall aprox. 1305 m

Proprietăți similare

Apartament cu 2 camere semidecomandat, mobilat în Braytim
110.000 €
Timișoara, Braytim
2 camere
52 mp
Parter / 3
Apartament cu 2 camere semidecomandat în Braytim
95.000 €
Timișoara, Braytim
2 camere
47 mp
Etaj 3
Apartament cu 2 camere în Braytim
93.000 €
Timișoara, Braytim
2 camere
46,4 mp
Parter
Apartament cu 2 camere în Braytim
98.999 €
Timișoara, Braytim
2 camere
45 mp
Etaj 3
Apartament cu 2 camere decomandat în Braytim
92.000 €
Timișoara, Braytim
2 camere
55 mp
Parter
Apartament cu 2 camere semidecomandat în Braytim
106.000 €
Timișoara, Braytim
2 camere
52 mp
Etaj 3
Apartament cu 2 camere decomandat, mobilat în Braytim
95.500 €
Timișoara, Braytim
2 camere
50 mp
Etaj 3
Apartament cu 2 camere decomandat, mobilat în Braytim
100.800 € + TVA
Timișoara, Braytim
2 camere
53 mp
Parter / 3
Apartament cu 2 camere semidecomandat, mobilat în Braytim
99.490 €
Timișoara, Braytim
2 camere
47 mp
Etaj 2

Abonează-te la newsletter să fii primul care primește cele mai noi recomandări de proprietăți și sfaturi de la experți.