?Apartament 2 Camere, 53mp | Zona Aradului | Etaj 1

107.500 €

Aradului, Timişoara

Nr. camere:
2
Suprafață utilă:
53,17 mp
Etaj:
1 / 5
An construcție:
2026
Nr. niveluri:
5

Descriere apartament

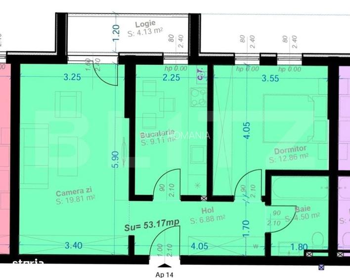
Blitz va prezinta o oportunitate excelenta de investitie sau locuinta proprie in zona Calea Aradului. Acest apartament cu 2 camere, situat la Etajul 1 intr-un bloc nou (P+5) cu finalizare in Decembrie 2026, ofera o compartimentare clasica si eficienta.Detalii Spatiu (Suprafata Utila: 53.17 mp):Camera de zi: 19.81 mp un living spatios si luminos.Bucatarie separata: 9.11 mp spatiu ideal pentru gatit, complet izolat de zona de odihna.Dormitor: 12.86 mp.Baie: 4.50 mp.Hol: 6.88 mp.Logie: 4.13 mp accesibila direct din living.Optiuni Parcare (se achizitioneaza separat):Suprateran: 7.000 Euro + TVASubteran: 10.000 Euro + TVAAvantaje principale:Cel mai bun pret: O varianta optima pentru cei care doresc un imobil nou in Aradului la un buget competitiv.Decomandat total: Intimitate sporita, bucataria fiind separata de restul camerelor.Pozitionare: Etaj 1, oferind confort si acces rapid, varianta disponibila la mai multe etaje.Pret Apartament: 107.500 Euro + asteptam cu drag la o vizionare!Cod oferta / ID BLITZ: P164199
Citește mai mult Citește mai puțin
Decomandat

Detalii apartament

ID anunț: 3987923 Actualizat în: 27 Martie 2026
Nr. camere: 2
Suprafață utilă: 53,17 mp
Suprafață utilă totală: 53,17 mp
Compartimentare: Decomandat
Etaj: Etaj 1 / 5
An construcție: 2026
Regim înălțime: P+5E

Istoric preț

Puncte de interes

Mijloace transport
transport
U.T.T.
Mijloace transport aprox. 477 m
transport
Statie U.T.T. E1, T17
Mijloace transport aprox. 498 m
transport
U.T.T.
Mijloace transport aprox. 498 m
transport
Statie Institutul Agronomic E1, T17
Mijloace transport aprox. 523 m
Școală
education
Biblioteca
Învățământ aprox. 313 m
education
Universitatea de Stiinte Agricole si Medicina Veterinara a Banatului
Învățământ aprox. 380 m
education
Facultatea de Agronomie
Învățământ aprox. 400 m
education
Universitatea de Stiinte Agricole si Medicina Veterinara a Banatului, Timisoara
Învățământ aprox. 449 m
Recreere
shopping
Mini-Market
Supermarket/Mall aprox. 248 m
parks
Parc
Recreere aprox. 330 m
shopping
Penny market
Supermarket/Mall aprox. 465 m
restaurants
Iris
Restaurante aprox. 598 m

Proprietăți similare

Apartament cu 2 camere nedecomandat în Aradului
106.150 € + TVA
Timișoara, Aradului
2 camere
54,6 mp
Etaj 1
Apartament cu 2 camere decomandat în Aradului
107.500 €
Timișoara, Aradului
2 camere
53 mp
Etaj 1
Apartament cu 2 camere semidecomandat în Aradului
109.990 €
Timișoara, Aradului
2 camere
55 mp
Etaj 4
Apartament cu 3 camere semidecomandat, mobilat în Aradului
98.990 €
Timișoara, Aradului
3 camere
59 mp
Etaj 5
Apartament cu 2 camere semidecomandat, mobilat în Aradului
100.000 €
Timișoara, Aradului
2 camere
50 mp
Parter
Apartament cu 3 camere decomandat în Aradului
102.990 €
Timișoara, Aradului
3 camere
75 mp
Etaj 5 / 5
Apartament cu 2 camere decomandat în Aradului
104.700 € + TVA
Timișoara, Aradului
2 camere
54 mp
Etaj 1
Apartament cu 3 camere decomandat, mobilat în Aradului
115.900 €
Timișoara, Aradului
3 camere
60 mp
Etaj 7
Apartament cu 3 camere semidecomandat, mobilat în Aradului
110.000 € + TVA
Timișoara, Aradului
3 camere
60 mp
Etaj 1

Abonează-te la newsletter să fii primul care primește cele mai noi recomandări de proprietăți și sfaturi de la experți.