
2 zile în urmă
1
- Agenție
Apartament 2 camere, 57,69 mp utili, zona Tudor
125.000 €
Tudor, Târgu Mureș
Descriere
Raportează anunț
Sesizează o problemă
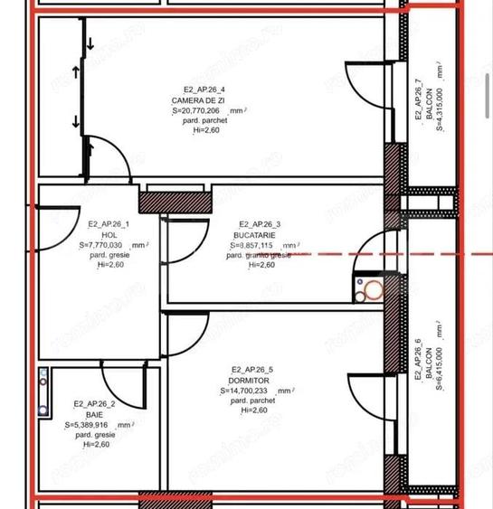
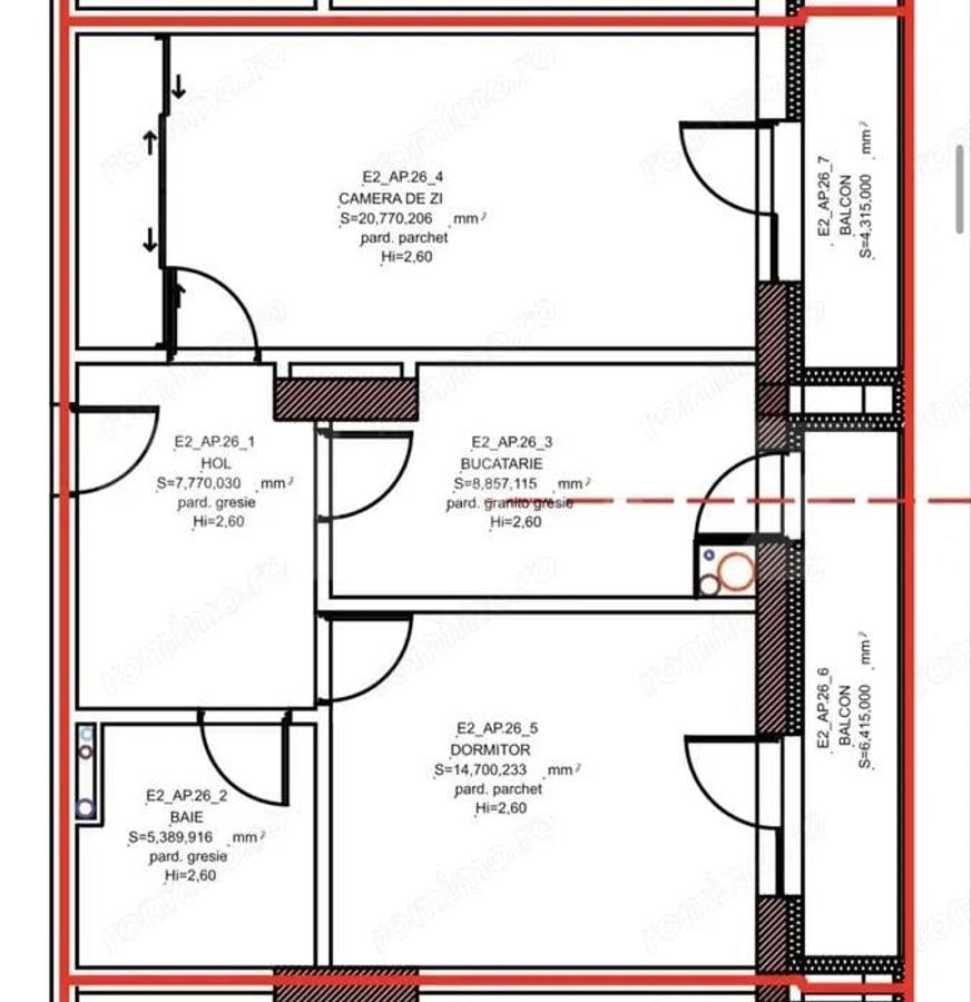
Apartament 2 camere, 57,69 mp utili, zona Tudor
Apartament 2 camere, 57,69 mp utili, zona Tudor
Blitz prezinta in exclusivitate un apartament cu 2 camere, situat intr-un bloc nou aflat in construc?ie, amplasat excelent in cartierul Tudor, la doar ca?iva pa?i de Shopping City Mall. Proprietatea se afla la etajul 2, are o suprafa?a totala de 78,9 mp (din care 57,69 mp utili) ?i dispune de o parcare privata inclusa in pre?, situata chiar in fa?a blocului. Apartamentul se va preda la cheie, complet finalizat, cu centrala termica proprie, finisaje moderne ?i materiale de calitate. ?? Finalizare: noiembrie 2026 ?? TVA 9% inclus ?? Loca?ie premium, aproape de centre comerciale, mijloace de transport, ?coli ?i spa?ii verzi Ideal pentru locuit sau investi?ie pe termen lung! Cod oferta / ID BLITZ: P155486
Citește mai mult
Citește mai puțin
ID anunț: 9638205
Actualizat în: 19 Octombrie 2025
Nr. camere:
2
Suprafață utilă:
58 mp
Suprafață utilă totală:
58 mp
Compartimentare:
Decomandat
Etaj:
Etaj 2 / 10
Nr. băi:
1
Regim înălțime:
P+10E
Istoric preț
Utilități
Utilități
Apă
Proprietăți similare
Abonează-te la newsletter să fii primul care primește cele mai noi recomandări de proprietăți și sfaturi de la experți.
Căutări similare
- Apartamente de vânzare în Tudor
- Apartamente de vânzare în Târgu Mureș
- Apartamente de vânzare în Unirii
- Apartamente de vânzare în Central
- Apartamente de vânzare în Dâmbu Pietros
- Apartamente de vânzare în Libertății
- Apartamente de vânzare în 7 Noiembrie
- Apartamente de vânzare în Semicentral
- Apartamente de vânzare în Ultracentral
- Apartamente de vânzare în Gara Mare
- Apartamente de vânzare în Mureșeni
- Apartamente de vânzare în Gării