VANZARE 3 CAMERE | ETAJ 1/1 | LOC PARCARE INCLUS | VEDERE PISCINA | COSMOPOLIS

139.998 €

Ştefăneştii de Jos, Judeţul Ilfov

Nr. camere:
3
Suprafață utilă:
61 mp
Etaj:
1
An construcție:
2008

Descriere apartament

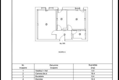
REOS GROUP va propune spre vanzare un apartament de 3 camere situat in cadrul complexului rezidential Cosmopolis, Faza 1, intr-un imobil finalizat in anul 2008, amplasat la etajul 1 din 1, cu vedere directa catre piscina. Apartamentul are o suprafata utila de 61 mp si se remarca prin compartimentarea eficienta si atmosfera luminoasa. Este compus din hol de acces, zona open-space bucatarie cu living, doua dormitoare si baie. Spatiile sunt bine proportionate si usor de amenajat pentru confortul unei familii. Locuinta se vinde mobilata si utilata modern, fiind pregatita pentru mutare imediata. Beneficiaza de incalzire in pardoseala, aer conditionat si lumina naturala abundenta. In pretul afisat este inclus si un loc de parcare, vizibil direct din apartament, un avantaj important pentru confort si siguranta. Imobilul este situat vis-a-vis de Lidl si Cosmopolis Plaza, cu acces imediat la supermarketuri, restaurante, cafenele si servicii. Complexul dispune de supraveghere video, statie de transport dedicata catre Pipera, multiple piscine, locuri de joaca si spatii verzi generoase. Datorita pozitiei si facilitatilor oferite, proprietatea este potrivita atat pentru locuire personala, cat si pentru investitie, zona avand cerere constanta pentru inchiriere. Pentru detalii suplimentare sau pentru programarea unei vizionari, va invitam sa ne contactati.
Citește mai mult Citește mai puțin
Centrală proprie

Detalii apartament

Actualizat în: 21 Mai 2026 ID anunț: 1222161
Nr. camere: 3
Suprafață utilă: 61 mp
Suprafață utilă totală: 61 mp
Etaj: Etaj 1
An construcție: 2008

Istoric preț

Facilități

Utilități
Curent Apă Canalizare
Sistem încălzire
Centrală proprie
Ferestre cu geam termopan
Aluminiu

Puncte de interes

Recreere
parks
Teren sportiv
Recreere aprox. 272 m
parks
Teren sportiv
Recreere aprox. 273 m

Proprietăți similare

Apartament cu 3 camere semidecomandat, mobilat în Ștefăneștii de Jos
130.000 €
Județul Ilfov, Ștefăneștii de Jos
3 camere
70 mp
Etaj 1 / 2
Apartament cu 3 camere decomandat, mobilat în Ștefăneștii de Jos
129.000 €
Județul Ilfov, Ștefăneștii de Jos
3 camere
56 mp
Etaj 3
Apartament cu 3 camere decomandat, mobilat în Ștefăneștii de Jos
134.000 €
Județul Ilfov, Ștefăneștii de Jos
3 camere
81,38 mp
Etaj 10 / 10
Apartament cu 2 camere decomandat în Ștefăneștii de Jos
126.351 €
Județul Ilfov, Ștefăneștii de Jos
2 camere
43,22 mp
Etaj 2 / 6
Apartament cu 2 camere semidecomandat, mobilat în Ștefăneștii de Jos
130.000 €
Județul Ilfov, Ștefăneștii de Jos
2 camere
46,08 mp
Parter / 7
Apartament cu 3 camere decomandat, mobilat în Ștefăneștii de Jos
145.000 €
Județul Ilfov, Ștefăneștii de Jos
3 camere
67,13 mp
Etaj 3 / 4
Apartament cu 3 camere semidecomandat în Ștefăneștii de Jos
139.000 €
Județul Ilfov, Ștefăneștii de Jos
3 camere
67 mp
Etaj 3 / 3
Apartament cu 3 camere decomandat în Ștefăneștii de Jos
150.000 €
Județul Ilfov, Ștefăneștii de Jos
3 camere
67 mp
Etaj 2
Apartament cu 3 camere semidecomandat, mobilat în Ștefăneștii de Jos
138.000 €
Județul Ilfov, Ștefăneștii de Jos
3 camere
55 mp
2008

Abonează-te la newsletter să fii primul care primește cele mai noi recomandări de proprietăți și sfaturi de la experți.