Penthouse la cheie cu 3 camere si terasa generoasa zona Tria

200.000 €

Vasile Aaron, Sibiu

Nr. camere:
3
Suprafață utilă:
85 mp
Etaj:
2 / 2
An construcție:
2025
Nr. niveluri:
2

Descriere apartament

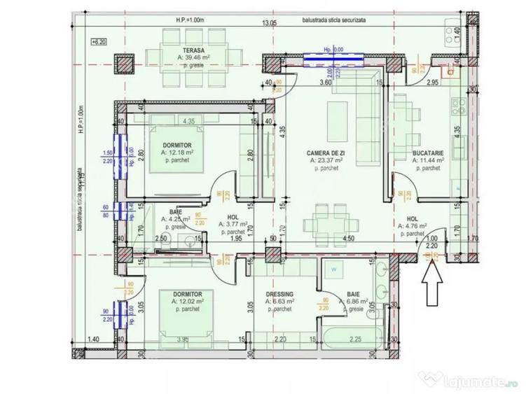
De vanzare apartament tip penthouse finisat la cheie cu 3 camere decomandate, 2 bai si o terasa generoasa care inconjoara locuinta de 39.46 mp, pozitionat la etajul 2 ala unui imobil constructie noua 2025 situat in Selimbar zona Triajului unde imprejurimile sunt dominate de case. Imobilul se afla intr-un bloc constrctie noua care se predata in decursul lunii octombrie 2025, blocul este structura doar cu 2 niveluri si 4 vecini pe palier, regimul de inaltime este de Parter 2 Etaje si este edificat pe structura de cadre cu grinzi din beton armat, zidarie din caramida de 30 cm, termosistem exterior cu grosimea de 10 cm acoperit cu vopsea decorativa siliconata de exterior si interfon. Apartamentul are suprafata utila de 85 mp si este alcatuit din camera de zi 23,37 mp, 2 dormitoare dintre care cel matrimonial de 12.02 mp care detine atat propriul dressing de 6.63 mp si propria baie 6.86 mp dotata cu cada iar dormitorul secundar 12.18 mp destinat copilului sau oaspetilor, bucataria separata 11.44 mp, a doua baie de 4,25 mp dotata cu cada si geam pentru aerisire si 2 holuri de 4,76 mp unde poate fi pozitionat cuierul cu pantofar sau chiar un dressing si al doilea de 3.77 mp. Separat de suprafata utila a apartamentului acesta beneficiaza si de o terasa de 39.46 mp in care se poate face accesul atat din camera de zi cat si din dormitorul matrimonial si bucatarie iar ca si pozitionare intr-o zona de imobile cu regim redus de inaltime asigura atat intimitatea cat si o panorama deosebita asupra imprejurimilor cat si a muntilor Fagaras. Parcarea se realizeaza pe cele 2 locuri private de parcare. Locuinta beneficiaza de dotari moderne precum usa metalica de acces antiefractie placata cu panou MDF, centrala termica de apartament marca Vailant Ecotec cu o putere de 24 kW pentru incalzire si 28 kW pentru apa calda, sistem de incalzire in pardoseala marca Purmo cu termostatare individuala, tamplarie PVC cu 7 camere si geam tripan (3 foi de sticla) marca Kommerling, instalatie electrica din cupru montata prin copex cu tablou general si sigurante pentru consumatorii de putere, interfon, instalatie electrica pentru rulouri exterioare si instalatie pentru aer conditionat cu aparat montat de 12000 BTU. Apartamentul se preda complet finisat la cheie si include pereti tencuiti pe baza de var si ciment, gletuiti si zugraviti cu lavabila alba si gri, obiecte sanitare suspendate, parchet laminat de 10 mm in nuanta stejar, gresie, faianta, usi de interior din MDF marca Naturen si mobilier de baie. Din punct de vedere al localizarii acesta ofera o conexiune rapida cu orasul prin 3 puncte, magazine alimentare aflate la mai putin de 5 minute de mers pe jos de complex cat si complexul de supermarketuri Shopping City la 5-7 minute de condus, zona foarte linistita fiind populata de case iar caile de acces sunt deja asfaltate si iluminate. Valoarea de achizitie este de 200.000 euro, acesta poate fi achizitionat si prin accesarea unui credit bancar. ID intern: 2739. Confort: 1 sporit Tip imobil: Bloc de apartamente Numar Bai: 2 Posibilitate parcare: Da Nr. locuri parcare: 2
Citește mai mult Citește mai puțin
Decomandat Aer condiționat Centrală proprie

Detalii apartament

ID anunț: 458970 Actualizat în: 01 Aprilie 2026
Nr. camere: 3
Suprafață utilă: 85 mp
Suprafață utilă totală: 85 mp
Compartimentare: Decomandat
Etaj: Etaj 2 / 2
An construcție: 2025
Regim înălțime: P+2E

Istoric preț

Facilități

Pereți
Faianță Vopsea lavabilă
Podele
Gresie Parchet
Ușă intrare
Parchet Metal PVC
Izolații termice
Exterior
Ferestre cu geam termopan
PVC
Contorizare
Apometre Contor gaz
Alte spații utile
Terasă
Sistem încălzire
Centrală proprie
Climatizare
Aer condiționat
Amenajare străzi
Asfaltate Iluminat stradal

Puncte de interes

Mijloace transport
transport
Teatru
Mijloace transport aprox. 189 m
transport
Cofetarie Aida
Mijloace transport aprox. 209 m
transport
Politie
Mijloace transport aprox. 250 m
transport
Nufarul
Mijloace transport aprox. 274 m
Școală
education
Facultatea de Stiinte Economice (ULBS)
Învățământ aprox. 278 m
education
Facultatea de Litere si Arte
Învățământ aprox. 292 m
education
Scoala speciala
Învățământ aprox. 425 m
education
Laboratoare ULBS
Învățământ aprox. 496 m
Recreere
restaurants
Turkish Kebab
Restaurante aprox. 0 m
shopping
Magazinul Dumbrava
Supermarket/Mall aprox. 64 m
parks
Parc
Recreere aprox. 141 m
shopping
Galeriile Pacea
Supermarket/Mall aprox. 404 m

Proprietăți similare

Apartament cu 3 camere decomandat în Vasile Aaron
180.000 €
Sibiu, Vasile Aaron
3 camere
93 mp
Etaj 3 / 11
Apartament cu 4 camere decomandat, mobilat în Ultracentral
217.000 €
Sibiu, Ultracentral
4 camere
109 mp
Etaj 1
Apartament cu 3 camere, mobilat în Central
184.000 €
Sibiu, Central
3 camere
64 mp
Etaj 1
Apartament cu 2 camere în Ultracentral
195.000 €
Sibiu, Ultracentral
2 camere
65 mp
Apartament cu 5 camere decomandat în Turnișor
212.000 €
Sibiu, Turnișor
5 camere
131,17 mp
Etaj 2 / 2
Apartament cu 3 camere decomandat, mobilat în Ultracentral
185.000 €
Sibiu, Ultracentral
3 camere
72 mp
Etaj 2
Apartament cu 3 camere nedecomandat în Ultracentral
190.000 €
Sibiu, Ultracentral
3 camere
68 mp
Etaj 1
Apartament cu 3 camere decomandat în Ștrand
190.000 €
Sibiu, Ștrand
3 camere
84 mp
Etaj 2
Apartament cu 3 camere decomandat, mobilat în Turnișor
195.000 €
Sibiu, Turnișor
3 camere
64 mp
Parter

Abonează-te la newsletter să fii primul care primește cele mai noi recomandări de proprietăți și sfaturi de la experți.