COMISION 0, ap 2 cam, bucatarie separata, bloc lift, geam baie, incalz pardos

99.000 €

Tineretului, Sibiu

Nr. camere:
2
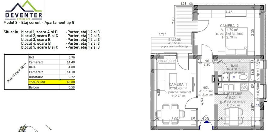
Suprafață utilă:
49 mp
Etaj:
1 / 4
An construcție:
2026
Nr. niveluri:
4

Descriere apartament

Comision 0. TVA inclus. Apartament decomandat NOU in bloc de caramida cu structura din fier-beton, izolat cu polistiren de 15 cm, disponibil la etaj 1, 2 si 3 in bloc cu lift. Este pozitionat in continuarea cartierului deja existent - Deventer 1 din mun. Sibiu. Accesul in ansamblu se poate face atat din str. Deventer cat si din str. Tractorului. Apartamentul se preda la stadiul "la alb" cu 2 straturi de vopsea lavabila de inalta calitate, prize și intrerupatoare Schneider, termopan Salamander tehnologie "stream-line" si feronierie Rotto, tamplarie PVC din aluminiu cu 6 camere si 3 foi de sticla, rulouri tip jaluzele din PVC cu spuma poliuretana ce asigura o bariera termica si fonica dinspre exterior, usi de interior din MDF, centrala termica BOSCH prin condensatie și un loc de parcare cu drept exclusiv de folosinta .Apartamentul este complet decomandat cu sistem incalzire prin pardoseala, cu termostat inclus in fiecare camera si se preda in Martie 2027. Se ofera garantie.
Citește mai mult Citește mai puțin
Confort 1 Decomandat Centrală proprie

Detalii apartament

Actualizat în: 18 Mai 2026 ID anunț: 946936
Nr. camere: 2
Suprafață utilă: 49 mp
Suprafață utilă totală: 49 mp
Compartimentare: Decomandat
Confort: 1
Etaj: Etaj 1 / 4
Nr. băi: 1
An construcție: 2026
Regim înălțime: P+4E

Istoric preț

Facilități

Jaluzele
Orizontale
Podele
Parchet
Rulouri/Obloane
PVC
Ușă intrare
Parchet PVC Metal
Ferestre cu geam termopan
PVC
Utilități
Curent Canalizare Apă Cablu
Sistem încălzire
Centrală proprie
Internet
Cablu Fibră optică
Amenajare străzi
Asfaltate Betonate
Facilități imobil
Interfon Acoperiș Videointerfon Lift Spații agrement

Puncte de interes

Mijloace transport
transport
Lisabona
Mijloace transport aprox. 147 m
transport
Lisabona
Mijloace transport aprox. 155 m
transport
Klagenfurt
Mijloace transport aprox. 486 m
transport
Landshut
Mijloace transport aprox. 503 m
Școală
education
Scoala Generala Nr. 23
Învățământ aprox. 638 m
education
Scoala Generala Nr. 18
Învățământ aprox. 1524 m
education
Scoala cu Clasele I - VIII NR. 12 Sibiu
Învățământ aprox. 1555 m
education
Gradinita Nr. 19
Învățământ aprox. 1563 m
Recreere
parks
Parc
Recreere aprox. 1058 m
shopping
PLUS Terezian
Supermarket/Mall aprox. 1518 m
restaurants
Pasha Kebab
Restaurante aprox. 1570 m
shopping
Profi
Supermarket/Mall aprox. 1571 m

Proprietăți similare

Apartament cu 3 camere decomandat, mobilat în Tineretului
93.000 €
Sibiu, Tineretului
3 camere
100 mp
2015
Apartament cu 2 camere decomandat, mobilat în Tineretului
103.500 €
Sibiu, Tineretului
2 camere
44 mp
Etaj 1 / 3
Apartament cu 3 camere semidecomandat în Mihai Viteazul
105.000 €
Sibiu, Mihai Viteazul
3 camere
57 mp
Etaj 3
Apartament cu 2 camere semidecomandat, mobilat în Terezian
95.000 €
Sibiu, Terezian
2 camere
54 mp
Parter
Apartament cu 3 camere decomandat în Terezian
92.000 €
Sibiu, Terezian
3 camere
77 mp
Etaj 3
Apartament cu 2 camere decomandat în Vasile Aaron
98.000 €
Sibiu, Vasile Aaron
2 camere
52 mp
Etaj 3
Apartament cu 3 camere semidecomandat în Terezian
101.000 €
Sibiu, Terezian
3 camere
74 mp
Etaj 3 / 3
Apartament cu 2 camere decomandat în Tineretului
97.500 €
Sibiu, Tineretului
2 camere
49 mp
2026
Apartament cu 2 camere decomandat în Tineretului
97.500 €
Sibiu, Tineretului
2 camere
49 mp
Etaj 3

Abonează-te la newsletter să fii primul care primește cele mai noi recomandări de proprietăți și sfaturi de la experți.