Apartament modern, aproape de natura - in Sibiu, langa lac -Comision 0

80.000 €

Ţiglari, Sibiu

Nr. camere:
2
Suprafață utilă:
36,4 mp
Etaj:
1 / 4
An construcție:
2025
Nr. niveluri:
4

Descriere apartament

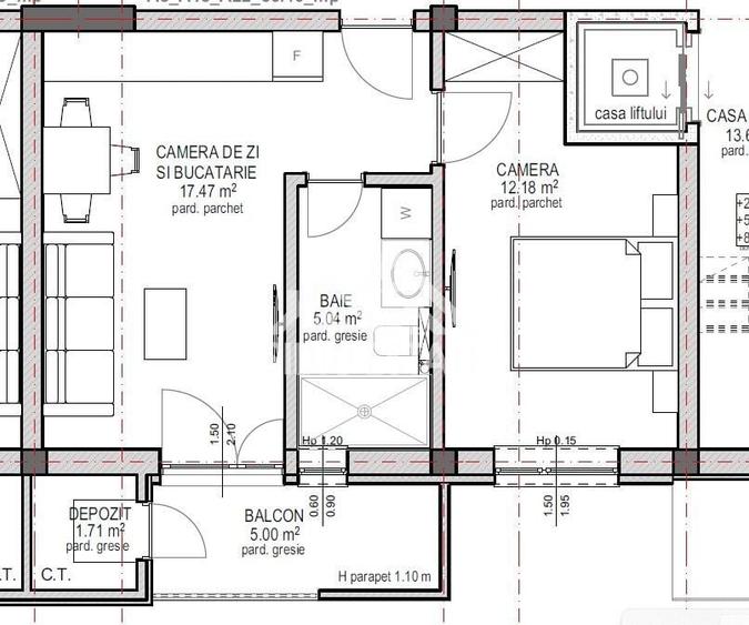
Apartament nou tip studio – Lacul lui Binder, Sibiu Descoperă un apartament modern și eficient, perfect pentru tineri sau investiție sigură! Situat într-un bloc nou P+4, dotat cu lift de ultimă generație, chiar lângă Lacul lui Binder, într-o zonă liniștită cu acces complet asfaltat. Suprafață utilă: 36,4 mp Living + bucatarie -17,47 mp Dormitor - 12,18 mp Baie - 5,04 mp Balcon - 5,00 mp Spatiu depozitare 1,71 mp Avantaje: Încălzire în pardoseală Balcon - Spațiu de depozitare exterior - inchis Lift modern Loc de parcare propriu Langa bază sportivă pentru practicarea sporturilor nautice, precum și zona de relaxare și petrecere a timpului liber - Complexul Lacul lui Binder Predare: Vara 2026 Locuința se predă la alb, dar exista posibilitate de finisare la cheie pe gustul dvs. Preț: 80 000 euro pret final (TVA inclus) Comision 0% Sibiu Estate – Casa ta, povestea noastră!
Citește mai mult Citește mai puțin
Confort 1 Decomandat Centrală proprie

Detalii apartament

ID anunț: 2308705 Actualizat în: 14 Aprilie 2026
Nr. camere: 2
Suprafață utilă: 36,4 mp
Suprafață utilă totală: 36,4 mp
Compartimentare: Decomandat
Confort: 1
Etaj: Etaj 1 / 4
Nr. băi: 1
An construcție: 2025
Regim înălțime: P+4E

Istoric preț

Facilități

Pereți
Vopsea lavabilă
Izolații termice
Exterior
Ferestre cu geam termopan
PVC
Utilități
Curent Apă Canalizare Gaze Cablu
Sistem încălzire
Centrală proprie
Internet
Cablu

Puncte de interes

Mijloace transport
transport
Lisabona
Mijloace transport aprox. 68 m
transport
Lisabona
Mijloace transport aprox. 76 m
transport
Klagenfurt
Mijloace transport aprox. 421 m
transport
Landshut
Mijloace transport aprox. 436 m
Școală
education
Scoala Generala Nr. 23
Învățământ aprox. 560 m
education
Scoala Generala Nr. 18
Învățământ aprox. 1446 m
education
Scoala cu Clasele I - VIII NR. 12 Sibiu
Învățământ aprox. 1497 m
education
Gradinita Nr. 19
Învățământ aprox. 1506 m
Recreere
parks
Parc
Recreere aprox. 982 m
shopping
PLUS Terezian
Supermarket/Mall aprox. 1439 m
restaurants
Pasha Kebab
Restaurante aprox. 1490 m
shopping
Profi
Supermarket/Mall aprox. 1491 m

Proprietăți similare

Apartament cu 3 camere semidecomandat, mobilat în Țiglari
74.900 €
Sibiu, Țiglari
3 camere
46 mp
Etaj 3
Apartament cu 3 camere semidecomandat în Țiglari
82.000 €
Sibiu, Țiglari
3 camere
42 mp
Parter
Apartament cu 3 camere semidecomandat, mobilat în Țiglari
75.000 €
Sibiu, Țiglari
3 camere
42 mp
Etaj 3
Apartament cu 3 camere semidecomandat, mobilat în Țiglari
73.900 €
Sibiu, Țiglari
3 camere
40 mp
Etaj 3
Apartament cu 2 camere decomandat în Țiglari
79.900 €
Sibiu, Țiglari
2 camere
36,4 mp
Etaj 1
Apartament cu 2 camere semidecomandat în Țiglari
73.500 € + TVA
Sibiu, Țiglari
2 camere
43 mp
Etaj 2
Apartament cu 2 camere decomandat în Țiglari
80.500 €
Sibiu, Țiglari
2 camere
43 mp
Etaj 1
Apartament cu 2 camere semidecomandat în Țiglari
74.900 €
Sibiu, Țiglari
2 camere
42 mp
Etaj 3
Apartament cu 2 camere nedecomandat, mobilat în Vasile Aaron
74.000 €
Sibiu, Vasile Aaron
2 camere
37 mp
Etaj 4

Abonează-te la newsletter să fii primul care primește cele mai noi recomandări de proprietăți și sfaturi de la experți.