Apartament nou 2 camere etaj 3 balcon si debara - zona Doamna Stanca

105.000 €

Mihai Viteazul, Sibiu

Nr. camere:
2
Suprafață utilă:
48,92 mp
Etaj:
3 / 3
An construcție:
2024
Nr. niveluri:
3

Descriere apartament

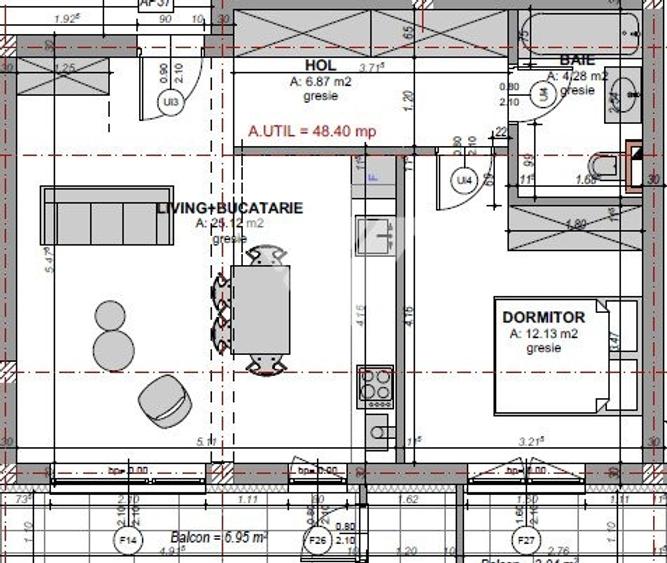
Ce spui de un apartament situat intr-o zona linistita, departe de agitatia orasului dar in acelasi timp cu toate beneficiile lui? Va propunem spre achizitie un apartament modern cu 2 camere foarte bine compartimentat, aflat la etaj 3 intr-un imobil cu doar 3 nivele situat intr-un ansamblu nou de blocuri de pe strada Doamna Stanca din Selimbar, zona Dedeman. Locuinta detine o suprafata utila de 48.4 mp+ balcon deschis de 7 mp, compus astfel: - hol de acces, living cu bucatarie tip openspace cu posibilitate de separare, dormitor, baie, balcon, debara izolata termic si inchisa cu usa ideala pentru depozitare - 1 loc de parcare privat inclus in pret Avantaje ale acestei proprietati: - pozitie insorita, distanta mare intre blocuri - ansamblu de blocuri noi cu arhitectura moderna si regim redus de inaltime - acces privat cu bariera Zona cu acces rapid spre strada Rahovei si Bvd. Mihai Viteazul, Centrele Comerciale, statii de transport in comun si institutii de invatamant. Se accepta plata inclusiv prin credit bancar. Pret: 105.000 EURO Informatii certificat energetic conform proiect: a) clasa energetica B; b) consumul total specific de energie primara: min 125.00 – max 201.00 kwh/m2an; c) indicele de emisii echivalent co_2: min 25.63 – max 41.21 kgco2/m2an; d) consum total specific de energie din surse regenerabile: 0 kwh/m2an. Abia asteptam sa-ti prezentam viitoarea ta casa!
Citește mai mult Citește mai puțin
Confort 1 Decomandat Nemobilat Centrală proprie Bine întreținut (Bună)

Detalii apartament

ID anunț: 237956 Actualizat în: 27 Martie 2026
Nr. camere: 2
Suprafață utilă: 48,92 mp
Suprafață utilă totală: 48,92 mp
Compartimentare: Decomandat
Confort: 1
Etaj: Etaj 3 / 3
Nr. băi: 1
An construcție: 2024
Regim înălțime: P+3E

Istoric preț

Facilități

Contorizare
Apometre Contor gaz
Mobilat
Nemobilat
Alte spații utile
Debara
Utilități
Curent Apă Canalizare
Sistem încălzire
Centrală proprie
Internet
Fibră optică
Ușă intrare
Metal PVC
Stare interior
Stare bună
Izolații termice
Exterior Bloc izolat termic
Ferestre cu geam termopan
PVC
Amenajare străzi
Asfaltate Iluminat stradal Mijloace de transport în comun

Puncte de interes

Mijloace transport
transport
Piata Rahova 2
Mijloace transport aprox. 492 m
transport
Piata Rahova 1
Mijloace transport aprox. 531 m
transport
Piata Rahova 3
Mijloace transport aprox. 573 m
transport
Mobexpert
Mijloace transport aprox. 615 m
Școală
education
Scoala generala nr. 21
Învățământ aprox. 678 m
education
Scoala Generala Nr. 9
Învățământ aprox. 755 m
education
Scoala Generala Nr. 6
Învățământ aprox. 950 m
education
Scoala Gimnaziala Nicolae Iorga Sibiu
Învățământ aprox. 960 m
Recreere
shopping
Lidl
Supermarket/Mall aprox. 286 m
parks
Teren sportiv
Recreere aprox. 385 m
shopping
Carrefour
Supermarket/Mall aprox. 385 m
restaurants
Pasha Kebab
Restaurante aprox. 461 m

Proprietăți similare

Apartament cu 2 camere decomandat în Mihai Viteazul
97.000 €
Sibiu, Mihai Viteazul
2 camere
52 mp
Etaj 10 / 10
Apartament cu 2 camere decomandat în Mihai Viteazul
106.000 €
Sibiu, Mihai Viteazul
2 camere
43 mp
Etaj 3
Apartament cu 3 camere decomandat în Mihai Viteazul
99.000 €
Sibiu, Mihai Viteazul
3 camere
76 mp
2009
Apartament cu 2 camere decomandat, mobilat în Mihai Viteazul
97.500 €
Sibiu, Mihai Viteazul
2 camere
58 mp
Etaj 3
Apartament cu 3 camere semidecomandat, mobilat în Mihai Viteazul
99.900 €
Sibiu, Mihai Viteazul
3 camere
52 mp
Etaj 1 / 4
Apartament cu 2 camere decomandat, mobilat în Mihai Viteazul
99.500 €
Sibiu, Mihai Viteazul
2 camere
63 mp
Etaj 9 / 17
Apartament cu 2 camere, mobilat în Mihai Viteazul
97.000 €
Sibiu, Mihai Viteazul
2 camere
46 mp
Etaj 10
Apartament cu 2 camere semidecomandat, mobilat în Mihai Viteazul
99.000 €
Sibiu, Mihai Viteazul
2 camere
59 mp
Etaj 4
Apartament cu 2 camere semidecomandat, mobilat în Mihai Viteazul
109.990 €
Sibiu, Mihai Viteazul
2 camere
53 mp
Etaj 5

Abonează-te la newsletter să fii primul care primește cele mai noi recomandări de proprietăți și sfaturi de la experți.