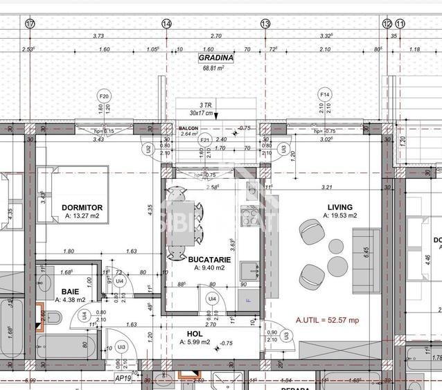
Apartament decomandat cu 2 camere-s.utila 52.57 mp, si gradina

124.500 €

Hipodrom 3, Sibiu

Nr. camere:
2
Suprafață utilă:
52,57 mp
Etaj:
Parter / 3
An construcție:
2025
Nr. niveluri:
3

Descriere apartament

Apartament de vanzare cu 2 camere, gradina, loc de parcare - Compartimentare ideala Avantaje - accesul se fac pe un drum privat prevazut cu bariera - constructie noua -loc de parcare inclus in pret -incalzire prin pardoseala Compartimentare -HOL s.u. 5.99 mp. -BAIE s.u. 4.38 mp. -LIVING s.u 19.53 mp. -DORMITOR s.u. 13..27 mp. -BALCON s.u. 2.40mp. - GRADINA 68.81 💡 Dotări moderne: ✔️ Încălzire în pardoseală ✔️ Geamuri termopan cu 3 foi de sticlă – izolație excelentă ✔️ Centrală termică în condensare – eficiență ridicată și consum redus Localizare: Zona foarte buna, langa Dedeman si Shopping City Acces rapid la magazine, transport, scoli, farmacii Avantaje: Compartimentare ideala Bloc modern, linistit Perfect pentru familie sau investitie Comision 0 Sibiu Estate- Casa ta, povestea noastra
Citește mai mult Citește mai puțin
Confort 1 Semidecomandat Centrală proprie

Detalii apartament

ID anunț: 2729829 Actualizat în: 06 Aprilie 2026
Nr. camere: 2
Suprafață utilă: 52,57 mp
Suprafață utilă totală: 52,57 mp
Compartimentare: Semidecomandat
Confort: 1
Etaj: Parter / 3
Nr. băi: 1
An construcție: 2025
Regim înălțime: P+3E

Istoric preț

Facilități

Contorizare
Apometre Contor gaz
Facilități imobil
Interfon
Utilități
Curent Apă Canalizare Gaze
Sistem încălzire
Centrală proprie
Podele
Dușumea
Ușă intrare
PVC Metal
Ferestre cu geam termopan
PVC
Amenajare străzi
Iluminat stradal Mijloace de transport în comun Asfaltate

Puncte de interes

Mijloace transport
transport
Interex
Mijloace transport aprox. 898 m
transport
Piata Rahova 1
Mijloace transport aprox. 930 m
transport
Piata Rahova 3
Mijloace transport aprox. 1030 m
transport
Piata Rahova 2
Mijloace transport aprox. 1043 m
Școală
education
Gradinita cu program prelungit nr. 43
Învățământ aprox. 985 m
education
Scoala Generala Nr. 9
Învățământ aprox. 1066 m
education
Scoala generala nr. 21
Învățământ aprox. 1265 m
education
Scoala Generala Nr. 6
Învățământ aprox. 1273 m
Recreere
restaurants
Yummi Yang
Restaurante aprox. 805 m
shopping
InterEx
Supermarket/Mall aprox. 835 m
shopping
Lidl
Supermarket/Mall aprox. 839 m
parks
Teren sportiv
Recreere aprox. 951 m

Proprietăți similare

Apartament cu 3 camere decomandat, mobilat în Hipodrom 3
127.000 €
Sibiu, Hipodrom 3
3 camere
82 mp
Etaj 2
Apartament cu 3 camere semidecomandat în Hipodrom 3
134.310 €
Sibiu, Hipodrom 3
3 camere
69 mp
Etaj 2
Apartament cu 3 camere decomandat, mobilat în Hipodrom 3
131.500 €
Sibiu, Hipodrom 3
3 camere
77 mp
Parter
Apartament cu 2 camere decomandat în Hipodrom 3
126.000 €
Sibiu, Hipodrom 3
2 camere
53,65 mp
Etaj 2
Apartament cu 3 camere decomandat în Hipodrom 3
127.000 €
Sibiu, Hipodrom 3
3 camere
73 mp
Etaj 3
Apartament cu 4 camere decomandat, mobilat în Hipodrom 3
125.000 €
Sibiu, Hipodrom 3
4 camere
75 mp
Etaj 3
Apartament cu 3 camere decomandat în Hipodrom 3
117.000 €
Sibiu, Hipodrom 3
3 camere
73 mp
Etaj 1
Apartament cu 2 camere nedecomandat în Hipodrom 3
126.000 €
Sibiu, Hipodrom 3
2 camere
54 mp
Etaj 3
Apartament cu 3 camere decomandat în Hipodrom 3
132.000 €
Sibiu, Hipodrom 3
3 camere
61 mp
Parter

Abonează-te la newsletter să fii primul care primește cele mai noi recomandări de proprietăți și sfaturi de la experți.