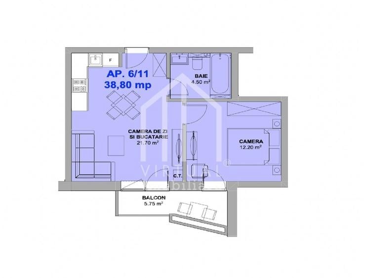
Apartament 2 camere, 40 mp si balcon - la cheie

97.000 €

Hipodrom 3, Sibiu

Nr. camere:
2
Suprafață utilă:
38,8 mp
Etaj:
3 / 3
An construcție:
2023
Nr. niveluri:
3

Descriere apartament

Va propunem spre vanzare un apartament cu 2 camere, 38.80 mp utili + balcon de 8 mp, amplasat in zona Doamna Stanca. Avantaje: - finisat la cheie; - centrala termica si incalzire in pardoseala; - constructie noua; - loc de parcare inclus in pret; - aproape de scoli, magazine, statii de autobuz. Compartimentare: - hol; - baie; - living cu bucatarie; - dormitor Apartamentul este finisat la cheie si se poate achizitiona atat din surse proprii, cat si cu credit. Iti doresti mai mult decat o simpla locuinta? Noi suntem aici pentru a-ți oferi cele mai bune soluții. Oferim servicii de DESIGN SI AMENAJARI INTERIOARE, PROPERTY MANAGEMENT, REGIM HOTELIER, HOME STAGING, VIRTUAL INVESTMENT, SERVICII DE CURATENIE.
Citește mai mult Citește mai puțin
Nedecomandat

Detalii apartament

ID anunț: 4053724 Actualizat în: 02 Aprilie 2026
Nr. camere: 2
Suprafață utilă: 38,8 mp
Suprafață utilă totală: 38,8 mp
Compartimentare: Nedecomandat
Etaj: Etaj 3 / 3
Nr. băi: 1
An construcție: 2023
Regim înălțime: P+3E

Istoric preț

Facilități

Utilități
Curent Apă Canalizare Gaze Cablu
Internet
Cablu
Amenajare străzi
Iluminat stradal Mijloace de transport în comun Asfaltate

Puncte de interes

Mijloace transport
transport
Interex
Mijloace transport aprox. 1059 m
transport
Piata Rahova 1
Mijloace transport aprox. 1075 m
transport
Shopping City
Mijloace transport aprox. 1157 m
transport
Piata Rahova 3
Mijloace transport aprox. 1172 m
Școală
education
Gradinita cu program prelungit nr. 43
Învățământ aprox. 1143 m
education
Scoala Generala Nr. 9
Învățământ aprox. 1221 m
education
Scoala generala nr. 21
Învățământ aprox. 1392 m
education
Scoala Generala Nr. 6
Învățământ aprox. 1429 m
Recreere
restaurants
Yummi Yang
Restaurante aprox. 794 m
shopping
Shopping City Sibiu
Supermarket/Mall aprox. 879 m
shopping
Auchan
Supermarket/Mall aprox. 913 m
parks
Teren sportiv
Recreere aprox. 1104 m

Proprietăți similare

Apartament cu 2 camere semidecomandat, mobilat în Hipodrom 3
102.500 €
Sibiu, Hipodrom 3
2 camere
53 mp
Parter
Apartament cu 2 camere semidecomandat, mobilat în Hipodrom 3
88.500 €
Sibiu, Hipodrom 3
2 camere
42 mp
Etaj 4 / 4
Apartament cu 2 camere decomandat în Hipodrom 3
105.000 €
Sibiu, Hipodrom 3
2 camere
55 mp
Etaj 2
Apartament cu 3 camere decomandat în Hipodrom 3
89.000 €
Sibiu, Hipodrom 3
3 camere
Apartament cu 2 camere decomandat, mobilat în Hipodrom 3
90.000 €
Sibiu, Hipodrom 3
2 camere
46 mp
Etaj 7 / 11
Apartament cu 3 camere decomandat, mobilat în Hipodrom 3
99.500 €
Sibiu, Hipodrom 3
3 camere
68,85 mp
Etaj 4
Apartament cu 3 camere decomandat, mobilat în Hipodrom 3
106.000 €
Sibiu, Hipodrom 3
3 camere
64 mp
Parter
Apartament cu 2 camere decomandat, mobilat în Hipodrom 3
89.999 €
Sibiu, Hipodrom 3
2 camere
48 mp
Etaj 7 / 10
Apartament cu 2 camere decomandat în Hipodrom 3
87.900 €
Sibiu, Hipodrom 3
2 camere
40 mp
Parter

Abonează-te la newsletter să fii primul care primește cele mai noi recomandări de proprietăți și sfaturi de la experți.