Apartament 3 camere, complet renovat situat intr-o zona buna

130.000 €

Aeroport, Sibiu

Nr. camere:
3
Suprafață utilă:
64,5 mp
Etaj:
8 / 10
An construcție:
1985
Nr. niveluri:
10

Descriere apartament

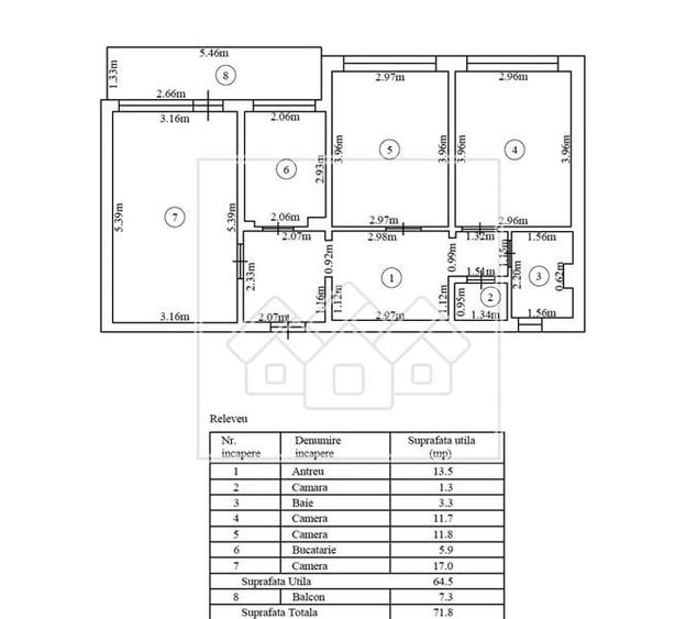
Apartament de vanzare in Sibiu – 3 camere - decomandat, complet renovat – B-dul Mihai Viteazu New Concept Living ofera spre vanzare un apartament cu 3 camere, decomandat, situat intr-una dintre cele mai cautate zone din Sibiu – Bulevardul Mihai Viteazu. Locuinta este complet renovata, iar bucataria si baia sunt mobilate si utilate modern. Avantaje apartament: decomandat complet renovat, finisat la cheie bucatarie si baie mobilate si utilate etaj intermediar (8 10) baie cu geam de aerisire zona foarte buna, aproape de puncte de interes Descriere apartament: suprafata utila: 64,5 mp balcon: 7,3 mp compartimentare: hol de acces (13,50 mp), 3 camere (17 mp, 11,80 mp, 11,70 mp), bucatarie separata (5,90 mp) + camara (1,30 mp), baie cu geam de aerisire, debara si balcon spatios. Stadiul de predare: Apartamentul este disponibil imediat si se preda finisat la cheie, exact ca in imagini. Instalatie electrica noua cu prize, internet si cablu TV in fiecare camera Coloana de apa schimbata Tamplarie PVC cu geam termopan (2 straturi) Usa metalica la intrare Lift nou, modern Locatie: Imobilul este amplasat pe Bulevardul Mihai Viteazu, cu acces rapid catre 3 artere principale: strada Nicolae Iorga, Calea Dumbravii si strada Rahovei. 15 minute de mers pe jos pana in Centrul Vechi 10 minute pana la Parcul Sub Arini 5 minute pana la Piata Agroalimentara Rahova acces rapid catre Centrul Comercial Selimbar ID intern: 18759
Citește mai mult Citește mai puțin
Confort 1 Decomandat Centrală proprie Bine întreținut (Bună)

Detalii apartament

ID anunț: 538532 Actualizat în: 30 Ianuarie 2026
Nr. camere: 3
Suprafață utilă: 64,5 mp
Suprafață utilă totală: 64,5 mp
Compartimentare: Decomandat
Confort: 1
Etaj: Etaj 8 / 10
Nr. băi: 1
An construcție: 1985
Regim înălțime: P+10E

Istoric preț

Facilități

Pereți
Vopsea lavabilă
Ușă intrare
Metal
Stare interior
Stare bună
Izolații termice
Exterior
Utilități
Apă Curent Gaze Canalizare
Sistem încălzire
Centrală proprie
Amenajare străzi
Asfaltate

Puncte de interes

Mijloace transport
transport
Interex
Mijloace transport aprox. 928 m
transport
Piata Rahova 1
Mijloace transport aprox. 1001 m
transport
Piata Rahova 3
Mijloace transport aprox. 1105 m
transport
Piata Rahova 2
Mijloace transport aprox. 1130 m
Școală
education
Gradinita cu program prelungit nr. 43
Învățământ aprox. 986 m
education
Scoala Generala Nr. 9
Învățământ aprox. 1120 m
education
Scoala Gimnaziala Nicolae Iorga Sibiu
Învățământ aprox. 1321 m
education
Scoala Generala Nr. 6
Învățământ aprox. 1323 m
Recreere
shopping
InterEx
Supermarket/Mall aprox. 841 m
restaurants
Yummi Yang
Restaurante aprox. 915 m
shopping
Lidl
Supermarket/Mall aprox. 932 m
parks
Teren sportiv
Recreere aprox. 937 m

Proprietăți similare

Apartament cu 3 camere semidecomandat în Aeroport
139.000 €
Sibiu, Aeroport
3 camere
82 mp
Etaj 3 / 3
Apartament cu 3 camere semidecomandat, mobilat în Aeroport
120.000 €
Sibiu, Aeroport
3 camere
56 mp
Parter
Apartament cu 3 camere decomandat, mobilat în Aeroport
123.000 €
Sibiu, Aeroport
3 camere
54 mp
Etaj 2
Apartament cu 3 camere decomandat, mobilat în Aeroport
130.000 €
Sibiu, Aeroport
3 camere
57 mp
Etaj 3
Apartament cu 2 camere decomandat, mobilat în Aeroport
139.000 €
Sibiu, Aeroport
2 camere
59 mp
Parter / 2
Apartament cu 2 camere semidecomandat în Aeroport
119.000 €
Sibiu, Aeroport
2 camere
63 mp
Etaj 5 / 7
Apartament cu 2 camere decomandat în Aeroport
117.000 €
Sibiu, Aeroport
2 camere
50 mp
Etaj 1 / 3
Apartament cu 3 camere decomandat, mobilat în Aeroport
135.000 €
Sibiu, Aeroport
3 camere
55 mp
Etaj 1 / 3
Apartament cu 3 camere decomandat, mobilat în Aeroport
125.000 €
Sibiu, Aeroport
3 camere
60 mp
Parter

Abonează-te la newsletter să fii primul care primește cele mai noi recomandări de proprietăți și sfaturi de la experți.