Apartament 2 camere 58 mpu mobilat si utilat premium Doamna Stanca

134.500 €

Şelimbăr, Judeţul Sibiu

Nr. camere:
2
Suprafață utilă:
58 mp
Etaj:
8

Descriere apartament

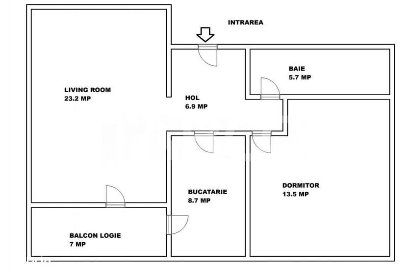
Apartament 2 camere de vanzare, decomandat, 58 mpu, zona Doamna Stanca, Sibiu. Avantaje majore ale acestui apartament: Camerele decomandate cu bucataria separata Etajul 8 cu balcon tip logie, vedere spre munti Balcon tip logie TABOO Imobiliare propune un apartament de vanzare cu 2 camere, decomandat, situat in localitatea Sibiu, zona Doamna Stanca, aflat la etajul 8 intr -un imobil tip bloc cu regim de inaltime pe Parter + 9 Etaje; anul constructiei 2023, structura caramida. Suprafata utila de 58 mp + balcon de 7 mp. Apartamentul este structurat astfel: Hol de compartimentare; Bucatarie separata; Baie cu dus; Living cu balcon; Dormitor; Dressing; Finisajele interioare sunt de lux: Usa intrare: metal; Usi interioare: celulare; Tamplarie ferestre: pvc, termopan; Pereti: vopsea lavabila, faianta; Podele: parchet, gresie. Utilitati si dotari: Bucatarie: mobilata, utilata; Mobilat: complet; Utilitati: curent electric, apa, canalizare, gaz, catv, telefon, acces internet, fibra optica; Izolatii: exterior, bloc izolat termic; Contorizare: apometre, contor gaz, contor curent electric; Caracteristici bloc: videointerfon, supraveghere video, lift. Apartamentul se vinde mobilat si utilat cu: plita electrica, cuptor, hota, frigider cu congelator. Incalzirea se realizeaza prin centrala proprie, calorifere si dispune de sistem de climatizare (A.C.). Se accepta ca si modalitate de plata surse proprii sau credit bancar. Pret: 134.500 Cod oferta / ID: P26337 Suna-ne acum si afla detalii despre aceasta proprietate de vanzare din Sibiu, dar si despre alte proprietati potrivite pentru tine.
Citește mai mult Citește mai puțin
Decomandat

Detalii apartament

ID anunț: 4061967 Actualizat în: 02 Aprilie 2026
Nr. camere: 2
Suprafață utilă: 58 mp
Suprafață utilă totală: 58 mp
Compartimentare: Decomandat
Etaj: Etaj 8

Istoric preț

Puncte de interes

Mijloace transport
transport
Cofetaria Narcisa
Mijloace transport aprox. 213 m
transport
Liceul Energetic
Mijloace transport aprox. 280 m
transport
Piata V. Aaron 1
Mijloace transport aprox. 332 m
transport
Piata V. Aaron 2
Mijloace transport aprox. 436 m
Școală
education
Scoala Generala Nr. 24
Învățământ aprox. 349 m
education
Liceul Energetic
Învățământ aprox. 415 m
education
Gradinita Nr. 14
Învățământ aprox. 461 m
education
Scoala generala nr. 21
Învățământ aprox. 1124 m
Recreere
restaurants
Narcisa
Restaurante aprox. 168 m
parks
Parcul Vasile Aaron
Recreere aprox. 305 m
shopping
Profi Vasile Aaron
Supermarket/Mall aprox. 407 m
shopping
XXL
Supermarket/Mall aprox. 423 m

Proprietăți similare

Apartament cu 2 camere decomandat, mobilat în Șelimbăr
134.500 €
Județul Sibiu, Șelimbăr
2 camere
57,8 mp
Etaj 8
Apartament cu 3 camere decomandat în Șelimbăr
129.900 €
Județul Sibiu, Șelimbăr
3 camere
70 mp
Parter / 4
Apartament cu 3 camere semidecomandat în Șelimbăr
125.000 €
Județul Sibiu, Șelimbăr
3 camere
54 mp
Etaj 2
Apartament cu 3 camere decomandat, mobilat în Șelimbăr
147.000 €
Județul Sibiu, Șelimbăr
3 camere
82 mp
Etaj 1 / 2
Apartament cu 3 camere în Șelimbăr
130.000 €
Județul Sibiu, Șelimbăr
3 camere
61,2 mp
Parter
Apartament cu 3 camere decomandat, mobilat în Șelimbăr
145.000 €
Județul Sibiu, Șelimbăr
3 camere
64 mp
Etaj 2 / 5
Apartament cu 2 camere decomandat în Șelimbăr
124.000 €
Județul Sibiu, Șelimbăr
2 camere
60 mp
2E
Apartament cu 3 camere decomandat în Șelimbăr
127.400 €
Județul Sibiu, Șelimbăr
3 camere
67,9 mp
Etaj 1 / 6
Apartament cu 3 camere decomandat, mobilat în Șelimbăr
129.000 €
Județul Sibiu, Șelimbăr
3 camere
57 mp
Etaj 1

Abonează-te la newsletter să fii primul care primește cele mai noi recomandări de proprietăți și sfaturi de la experți.