Apartament duplex 5 camere – 131 mp – Metrou Păcii – proprietar

209.000 €

Păcii, Bucureşti

Nr. camere:
5
Suprafață utilă:
117 mp
Etaj:
2 / 5
An construcție:
1992
Nr. niveluri:
5

Descriere apartament

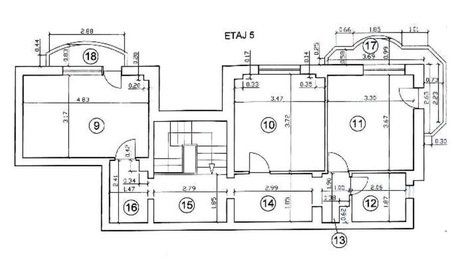
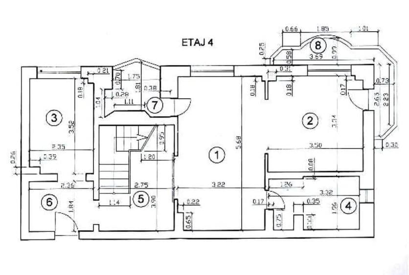
Se vinde direct de către proprietar apartament duplex de 5 camere, decomandat, cu suprafață utilă de 116 mp (131 mp total), situat la etajele 4 și 5 într-un bloc construit în 1992, reabilitat termic în 2024, la aproximativ 3 minute de metrou Păcii, zona Militari – Iuliu Maniu. Apartamentul este luminos, spațios și foarte bine compartimentat, ideal pentru o familie numeroasă sau pentru cei care își doresc separare clară între zona de zi și zona de noapte. Nivelul 4 hol de acces bucătărie separată living generos (unit cu un dormitor) baie cu duș și geam logie + balcon Nivelul 5 scară interioară din lemn hol spațios 3 dormitoare decomandate baie cu cadă și geam 2 balcoane boxă pe palier (~6 mp) spațiu suplimentar de depozitare sub casa scării Dotări și îmbunătățiri renovat complet instalație electrică și sanitară schimbate parchet din lemn masiv recondiționat 4 aparate aer condiționat (3 noi) calorifere noi ușă metalică antiefracție Motura sistem alarmă geamuri termopan uși interioare din lemn Apartamentul este situat stradal, cu vedere pe Bd. Iuliu Maniu, într-un bloc curat, cu scară întreținută și ferestre la fiecare palier. Blocul nu are lift. Se vinde mobilat și utilat complet, gata de mutare. Acces rapid la: metrou Păcii (3 minute) magazine și supermarketuri școli și grădinițe transport STB Autogara Militari
Citește mai mult Citește mai puțin
Confort 1 Decomandat Mobilat Aer condiționat Termoficare Renovat

Detalii apartament

ID anunț: 3140919 Actualizat în: 22 Martie 2026
Nr. camere: 5
Suprafață utilă: 117 mp
Suprafață utilă totală: 117 mp
Compartimentare: Decomandat
Confort: 1
Etaj: Etaj 2 / 5
Nr. băi: 2
An construcție: 1992
Regim înălțime: P+5E

Istoric preț

Facilități

Utilități
Apă Canalizare Gaze
Sistem încălzire
Termoficare
Climatizare
Aer condiționat
Mobilat
Mobilat
Stare interior
Renovat
Servicii imobil
Administrare

Puncte de interes

Mijloace transport
transport
Statia Imprimeria Nationala, linia 137, 178, 236, 138, N116,
Mijloace transport aprox. 24 m
transport
Statia Imprimeria nationala, linia 61,62
Mijloace transport aprox. 38 m
transport
Metrorex. Staţia Păcii (M3).
Mijloace transport aprox. 169 m
transport
Cesarom
Mijloace transport aprox. 229 m
Școală
education
Liceul Tehnologic Petru Poni
Învățământ aprox. 876 m
education
Gradinita nr. 195
Învățământ aprox. 885 m
education
Gradinita de copii nr 195 "Prichindel"
Învățământ aprox. 889 m
education
Grupul Şcolar Industrial "Petru Poni" (nr. 7).
Învățământ aprox. 901 m
Recreere
restaurants
Turbotequila
Restaurante aprox. 98 m
parks
Parc
Recreere aprox. 133 m
shopping
Lidl
Supermarket/Mall aprox. 465 m
shopping
kaufland Valea Cascadelor
Supermarket/Mall aprox. 470 m

Proprietăți similare

Apartament cu 4 camere decomandat în Păcii
210.000 €
București, Păcii
4 camere
95 mp
Etaj 4
Apartament cu 4 camere decomandat în Păcii
218.409 € + TVA
București, Păcii
4 camere
277 mp
Etaj 8 / 9
Apartament cu 5 camere decomandat, mobilat în Păcii
209.000 €
București, Păcii
5 camere
116 mp
Etaj 4 / 5
Apartament cu 4 camere decomandat în Păcii
209.990 €
București, Păcii
4 camere
107 mp
Etaj 4
Apartament cu 4 camere decomandat, mobilat în Gorjului
195.000 €
București, Gorjului
4 camere
80 mp
Etaj 3 / 4
Apartament cu 2 camere decomandat în Drumul Taberei
190.000 €
București, Drumul Taberei
2 camere
59 mp
Apartament cu 3 camere decomandat, mobilat în Militari
219.900 €
București, Militari
3 camere
67,45 mp
Etaj 10
Apartament cu 2 camere decomandat în Lujerului
200.000 €
București, Lujerului
2 camere
54 mp
Etaj 3
Apartament cu 3 camere decomandat, mobilat în Giulești
190.000 €
București, Giulești
3 camere
70 mp
Parter / 2

Abonează-te la newsletter să fii primul care primește cele mai noi recomandări de proprietăți și sfaturi de la experți.